Appartement T3 Nancy à vendre

Favoriz
1 / 13

161 000 €

A partir de ... € / mois

61 m² • 3 pièces • 2 chambres

Caractéristiques

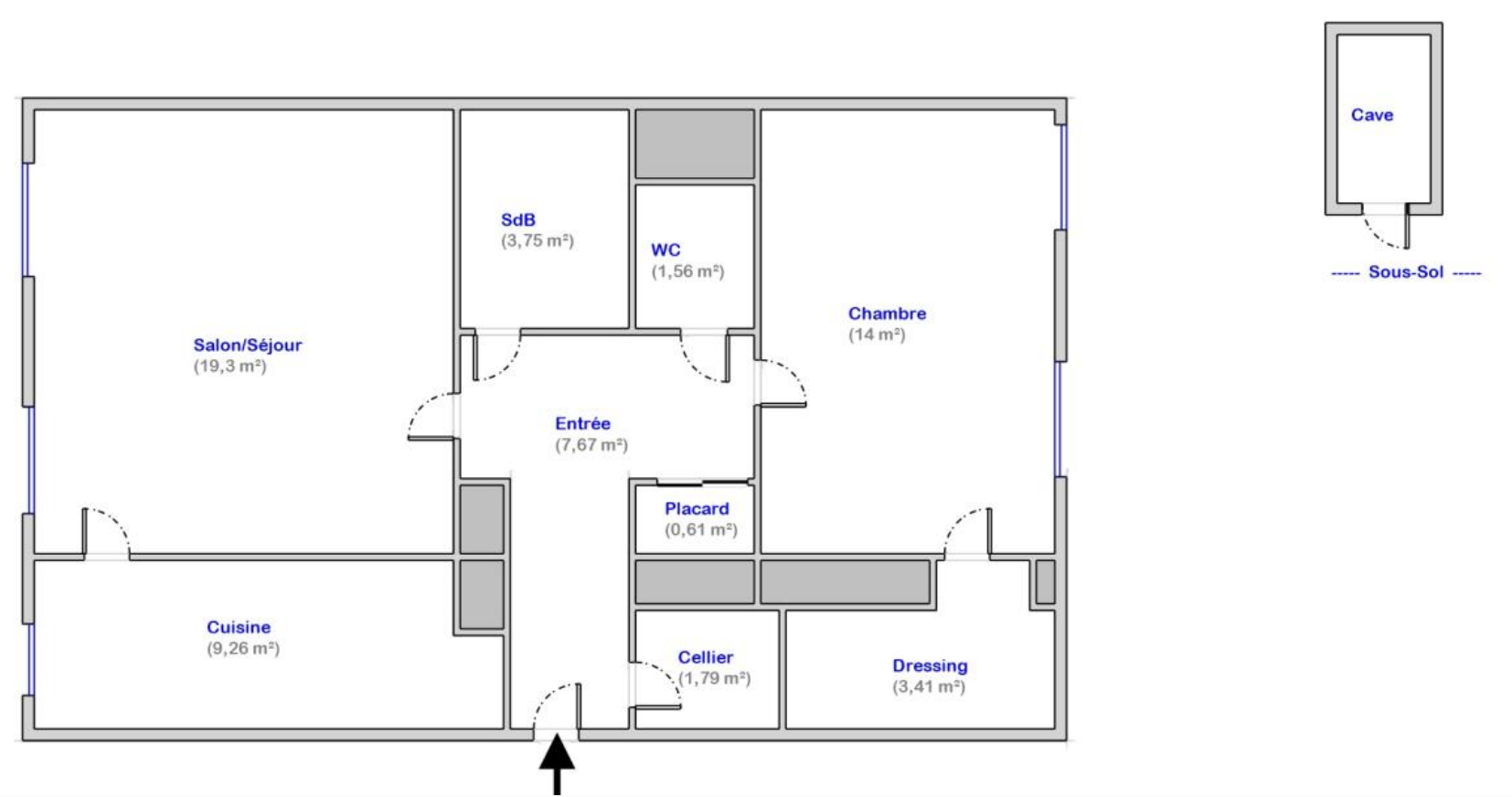
Surface et espace de vie

3 pièces
Surface : 61.35 m²
Surf. séj : 19.3 m²
2 chbres
1 salle de bain

Intérieur

Cuisine Indépendante
Chauffage Electrique
1 cave

Extérieur

1 place ext.
Extérieur

Autres

Soumis à la copropriété

Description

NANCY Centre -Quartier Gare : Au calme : Appartement traversant et lumineux en très bon état de 3 pièces -61.35 m2

ICI ET NULLE PART AILLEURS : Encore une exclusivité LAFORET Poincaré !

NANCY A Deux pas de la Gare !

Dans la très recherchée RESIDENCE DU GRAND VERGER rue Raymond Poincaré ,cet appartement en très bon état est lumineux et traversant : il est situé au 3ième et dernier étage et offre une vue dégagée .

Il dispose d'un bel espace jour avec parquet, d'une grande chambre lumineuse avec parquet également et d' une pièce dressing équipée, d'une cuisine indépendante équipée ainsi que d'une salle de bains équipée, d'un cellier aménagé, d'un WC séparé et de nombreux placards.
Il est à noter que le dressing et le cellier sont séparés d'une simple cloison et pourraient se transformer en une deuxième chambre au besoin.

Les murs de la copropriété sont en pierre de taille .

Les fenêtres en oscillo-battantes PVC ont été changées en 2020 : elles sont en double vitrages avec une lame d'argon de 16 mm à isolation renforcée et équipées de volets roulants en PVC.

Le chauffage individuel est électrique avec programmateur pièce par pièce et un ballon de 150 litres.

Le DPE est en E et B est passe facilement en C au besoin avec des travaux entre 2200 et 3400 euros.

Il n'y a pas d'amiante dans l'appartement.

Que demander de plus ?
Un parking privatif numéroté avec un portail télécommandé vous permettra de vous garer facilement

La résidence DU GRAND VERGER est très agréable avec ses espaces verts entretenus, elle est sécurisée et bénéficie des services d'un gardien.
Une cave saine privative vient compléter ce lot.

Pour de plus amples renseignements, merci de contacter sans tarder
votre agence LAFORET POINCARE au 03 83 25 02 00

Honoraires à la charge du vendeur

Montant moyen des charges annuelles : 1 412,20 €

Référence web : 22644892
Référence Agence : 5181

Performance énergétique

DPE 2021

Les coûts sont estimés en fonction des caractéristiques de votre logement et pour une utilisation standard. Montant estimé des dépenses annuelles d'énergie pour un usage standard entre 1 260,00 € et 1 750,00 € indexées aux années 2021, 2022 et 2023 (abonnement compris).

Les informations sur les risques auxquels ce bien est exposé sont disponibles sur le site Géorisques : https://www.georisques.gouv.fr.

Simulateur de crédit immobilier

A propos de l'agence

Agence Laforêt NANCY POINCARE

83 rue Raymond Poincaré, 54000 Nancy

Téléphone

Horaires d'ouverture de l'agence

 Lundi 09:00 - 12:00 · 14:00 - 18:00
 Mardi 09:00 - 12:00 · 14:00 - 18:00
 Mercredi 09:00 - 12:00 · 14:00 - 18:00
 Jeudi 09:00 - 12:00 · 14:00 - 18:00
 Vendredi 09:00 - 12:00 · 14:00 - 18:00
 Samedi Fermé
 Dimanche Fermé

Aux alentours

Appartement

144 000 €
Nancy (54000)
82 m² • 4 pièces • 3 chambres
Ascenseur
Appeler
Favoriz
0 /  0

Appartement

162 000 €
Nancy (54000)
87 m² • 4 pièces • 3 chambres
Ascenseur
Appeler

Appartement

149 000 €
Nancy (54000)
47 m² • 2 pièces • 1 chambre
Terrasse • Ascenseur • Garage • 1 salle d'eau
Appeler
0 /  0

Appartement

149 900 €
Nancy (54000)
37 m² • 2 pièces • 1 chambre
1 salle d'eau
Appeler
Appeler