132 500 €
A partir de ... € / mois
418 m²
Caractéristiques
Surface et espace de vie
Surface : 418 m²
Surf. terrain : 418 m²
Description
Découvrez ce terrain à bâtir situé dans un environnement calme, idéal pour concrétiser votre projet de construction.
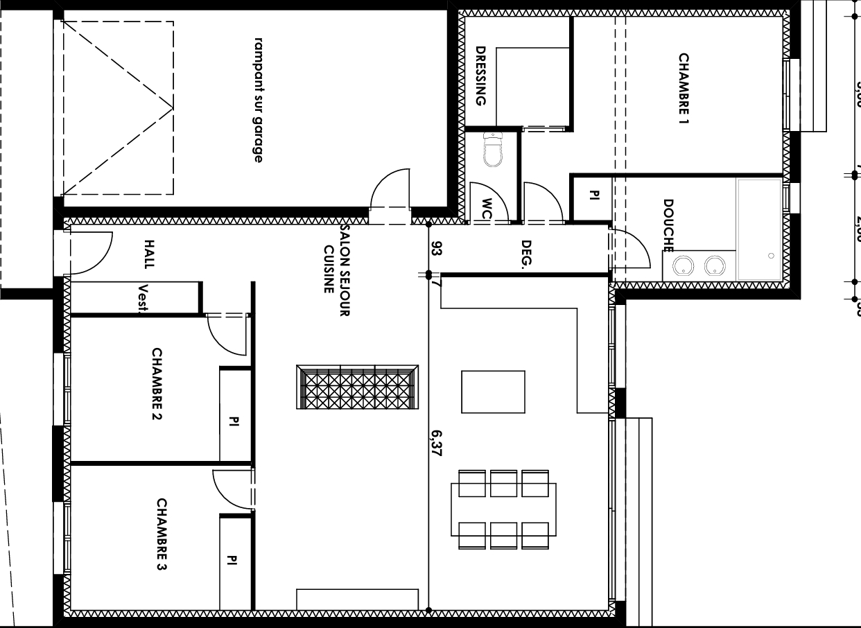
La première image présente une simulation de maison réalisable par le constructeur partenaire, afin de vous aider à visualiser le potentiel du terrain. Seule la parcelle est proposée à la vente.
Le prix indiqué concerne uniquement le terrain ; le coût de construction sera défini avec le constructeur.
Selon vos envies, une maison de plain-pied ou un R+1, en 3 faces, peut être envisagée, dans le respect des règles de prospects en vigueur : 3 m de longueur et 8 m de hauteur.
Un cadre agréable, proche des commodités, parfait pour un projet personnalisé et accompagné.
Envie de trouver votre futur bien ? Contactez nous au 04.68.82.52.80 ! Explorez toutes nos offres de vente et de location sur notre site Laforêt Argelès-sur-Mer ou passez nous voir en agence. Votre projet mérite le meilleur !
La première image présente une simulation de maison réalisable par le constructeur partenaire, afin de vous aider à visualiser le potentiel du terrain. Seule la parcelle est proposée à la vente.
Le prix indiqué concerne uniquement le terrain ; le coût de construction sera défini avec le constructeur.
Selon vos envies, une maison de plain-pied ou un R+1, en 3 faces, peut être envisagée, dans le respect des règles de prospects en vigueur : 3 m de longueur et 8 m de hauteur.
Un cadre agréable, proche des commodités, parfait pour un projet personnalisé et accompagné.
Envie de trouver votre futur bien ? Contactez nous au 04.68.82.52.80 ! Explorez toutes nos offres de vente et de location sur notre site Laforêt Argelès-sur-Mer ou passez nous voir en agence. Votre projet mérite le meilleur !
Honoraires à la charge du vendeur
Référence web : 52269969
Référence Agence : 14338
Référence Agence : 14338
Vidéo et 3D
Performance énergétique
DPE NON SOUMIS
Simulateur de crédit immobilier
A propos de l'agence
Horaires d'ouverture de l'agence
Lundi
09:00 -
19:00
Mardi
09:00 -
19:00
Mercredi
09:00 -
19:00
Jeudi
09:00 -
19:00
Vendredi
09:00 -
19:00
Samedi
09:00 -
12:00
Dimanche
Fermé