Maison T8 Roquebrune-Cap-Martin à vendre

Favoriz
1 / 18

2 500 000 €

A partir de ... € / mois

167 m² • 8 pièces • 4 chambres

Caractéristiques

Surface et espace de vie

8 pièces
Surface : 167 m²
Surf. terrain : 955 m²
Surf. séj : 34 m²
4 chbres

Intérieur

Cuisine Indépendante
Chauffage Fuel
Balcon
Terrasse
Cheminée
1 cave
Sous-sol
Garage

Extérieur

Parking
GarageFerme, Extérieur
Piscine

Autres

1
Ann. const. : 1968

Description

Votre agence Laforêt Roquebrune Cap Martin vous propose :

Une magnifique villa de 6 pièces, située dans un environnement calme et verdoyant, à seulement quelques kilomètres de Monaco ? Monte-Carlo.

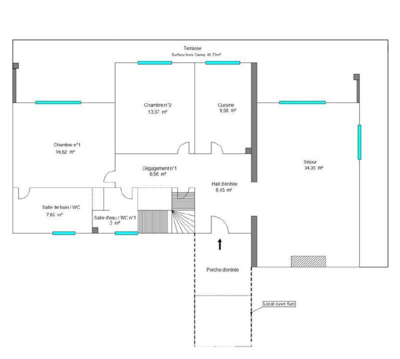
La maison se compose, au niveau principal, d'une entrée, d'un séjour lumineux exposé sud-ouest, d'une cuisine indépendante, ainsi que de deux chambres ouvrant sur une terrasse avec vue dégagée sur la mer et le Cap Martin. Ce niveau comprend également deux salles de bains avec WC, dont une attenante à une chambre.

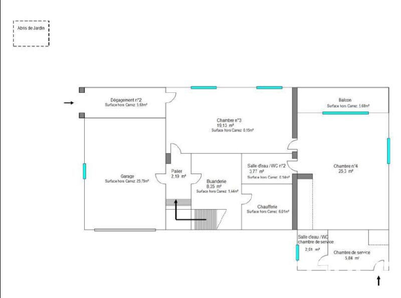
En rez-de-jardin, vous trouverez une chambre de 11 m², une seconde chambre spacieuse de 25 m², une salle de bains, une buanderie et une chaufferie. Une autre chambre avec sa propre salle d'eau et un accès indépendant par l'arrière de la maison offre une flexibilité d'usage (chambre d'amis, bureau, etc.).

À l'extérieur, vous profiterez d'une piscine dans un cadre discret et paisible.

À noter : un potentiel d'agrandissement est envisageable, sous réserve des règles d'urbanisme en vigueur (PLU), offrant ainsi une belle opportunité d'optimisation ou d'évolution du bien selon vos projets.

L'avis Laforêt : Un emplacement privilégié, offrant de nombreuses possibilités d'aménagement pour un acquéreur souhaitant valoriser le potentiel du bien.

C'est seulement chez Laforêt !

www.laforet.com/capmartin

Honoraires à la charge du vendeur

Référence web : 21723747
Référence Agence : 18878

Performance énergétique

DPE 2021

Les coûts sont estimés en fonction des caractéristiques de votre logement et pour une utilisation standard. Montant estimé des dépenses annuelles d'énergie pour un usage standard entre 5 599,00 € et 7 575,00 € indexées aux années 2021, 2022 et 2023 (abonnement compris).

Logement à consommation énergétique excessive.

Les informations sur les risques auxquels ce bien est exposé sont disponibles sur le site Géorisques : https://www.georisques.gouv.fr.

Simulateur de crédit immobilier

A propos de l'agence

Agence Laforêt ROQUEBRUNE CAP MARTIN

3 avenue Victor Hugo - Résidence Hernani, 06190 Roquebrune-Cap-Martin

Téléphone

Horaires d'ouverture de l'agence

 Lundi 09:00 - 12:00 · 14:00 - 18:30
 Mardi 09:00 - 12:00 · 14:00 - 18:30
 Mercredi 09:00 - 12:00 · 14:00 - 18:30
 Jeudi 09:00 - 12:00 · 14:00 - 18:30
 Vendredi 09:00 - 12:00 · 14:00 - 18:30
 Samedi Fermé
 Dimanche Fermé

Aux alentours

Appeler