330 000 €
A partir de ... € / mois
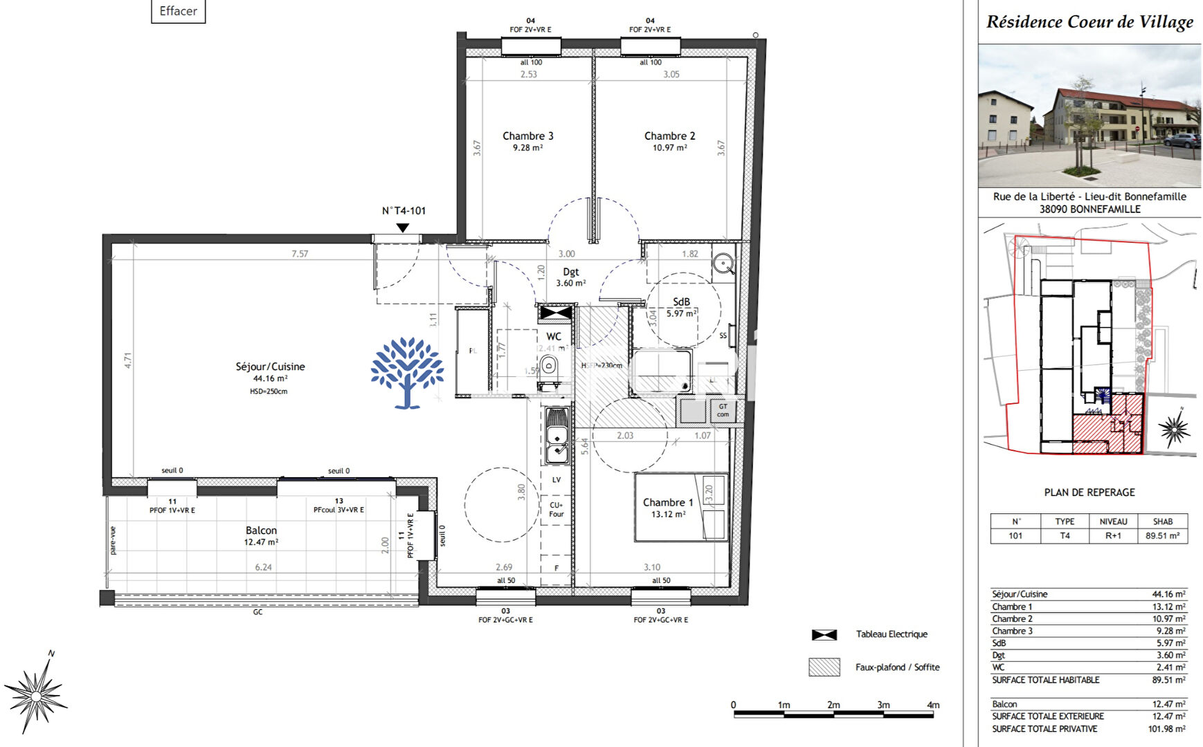
90 m² • 4 pièces • 3 chambres
Caractéristiques
Surface et espace de vie
4 pièces
Surface : 89.51 m²
3 chbres
Intérieur
Chauffage Pompe à chaleur
Ascenseur
Terrasse
Sous-sol
Garage
Extérieur
Parking
GarageSimple, SousSol
Autres
Ann. const. : 2025
Nb lots copro : 13
Description
Situé au centre du village de Bonnefamille, découvrez cet appartement neuf de type T4, idéal pour une famille en quête de confort et de tranquillité. Niché dans une résidence à taille humaine, cet appartement vous offre une surface généreuse de 89,51 m², dans un cadre calme et verdoyant, à proximité immédiate des commodités.
Le salon/séjour/cuisine de 44,16 m² constitue un espace de vie spacieux et lumineux, idéal pour des moments de convivialité. L'appartement est baigné de lumière grâce à son balcon de 12,4 m², exposé plein sud, parfait pour profiter de belles journées ensoleillées.
Côté nuit, trois chambres confortables, ainsi qu'une salle d'eau moderne, vous garantissent des nuits paisibles dans une atmosphère chaleureuse. L'appartement, situé au premier étage avec ascenseur, vous assure un cadre de vie agréable et pratique au quotidien.
Emplacement au centre du village avec toutes les commodités à proximité.
Grand balcon de 12,4 m² exposé sud, pour profiter de l'extérieur.
Fenêtres et portes-fenêtres en PVC avec double vitrage isolant.
Volets roulants motorisés.
Garage ferme et place de parking en sous-sol inclus.
Local vélo/poussette à disposition.
La commune de Bonnefamille, aux portes de l'Isère, vous garantit une qualité de vie exceptionnelle à la campagne, tout en restant proche des écoles, commerces et transports.
Contactez-nous dès aujourd'hui, 04/72/18/03/33
Le salon/séjour/cuisine de 44,16 m² constitue un espace de vie spacieux et lumineux, idéal pour des moments de convivialité. L'appartement est baigné de lumière grâce à son balcon de 12,4 m², exposé plein sud, parfait pour profiter de belles journées ensoleillées.
Côté nuit, trois chambres confortables, ainsi qu'une salle d'eau moderne, vous garantissent des nuits paisibles dans une atmosphère chaleureuse. L'appartement, situé au premier étage avec ascenseur, vous assure un cadre de vie agréable et pratique au quotidien.
Emplacement au centre du village avec toutes les commodités à proximité.
Grand balcon de 12,4 m² exposé sud, pour profiter de l'extérieur.
Fenêtres et portes-fenêtres en PVC avec double vitrage isolant.
Volets roulants motorisés.
Garage ferme et place de parking en sous-sol inclus.
Local vélo/poussette à disposition.
La commune de Bonnefamille, aux portes de l'Isère, vous garantit une qualité de vie exceptionnelle à la campagne, tout en restant proche des écoles, commerces et transports.
Contactez-nous dès aujourd'hui, 04/72/18/03/33
Honoraires à la charge du vendeur
Référence web : 22389929
Référence Agence : 592
Référence Agence : 592
Performance énergétique
DPE NON SOUMIS
Simulateur de crédit immobilier
A propos de l'agence
Horaires d'ouverture de l'agence
Lundi
9:30 -
12:30
·
13:30 -
19:
Mardi
9:30 -
12:30
·
13:30 -
19:
Mercredi
9:30 -
12:30
·
13:30 -
19:
Jeudi
9:30 -
12:30
·
13:30 -
19:
Vendredi
9:30 -
12:30
·
13:30 -
19:
Samedi
9:30 -
12:30
Dimanche
Fermé