Appartement T3 Choisy-le-Roi à louer

Nouveauté
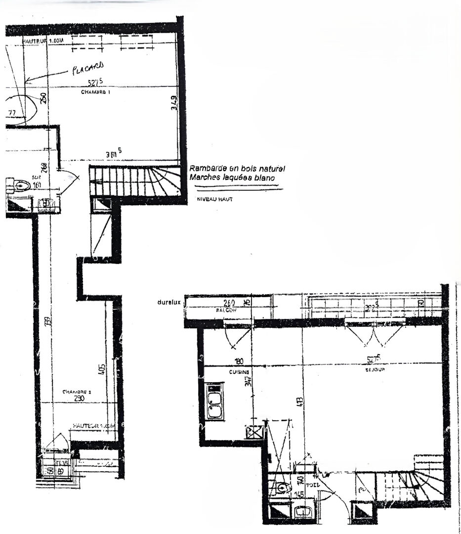
1 / 7

1 600 €/mois

Charges comprises

73 m² • 3 pièces • 2 chambres

Caractéristiques

Surface et espace de vie

3 pièces
Surface : 73 m²
Surf. séj : 27 m²
2 chbres
1 salle d'eau

Intérieur

Chauffage Gaz
Ascenseur
Balcon

Extérieur

SousSol, GarageFerme

Autres

Ann. const. : 2000
Soumis à la copropriété
Nb lots copro : 221

Description

Découvrez ce magnifique appartement de 73 m² en duplex, dans une résidence récente et de grand standing, proche des transports, commerces et des écoles.

Situé au 8ème et dernier étage, il vous ravira par sa luminosité : vous pourrez passer d'agréables moments ensoleillés grâce à ses terrasses et ses deux expositions (SUD et OUEST).

L'appartement se compose au 1er niveau : d'une entrée avec placards, de WC indépendants, d'un grand séjour donnant sur une terrasse et un balcon, d'un placard sous escalier et d'une cuisine aménagée et équipée.
A l'étage, un espace de dégagement distribuant une chambre avec un dressing aménagé et un deuxième chambre donnant sur une dernière terrasse, ainsi qu'une jolie salle d'eau moderne.
Calme, modernisme, volumes et grands espaces extérieurs font de cet appartement un logement exquis.

Afin de parfaire le tout, l'appartement dispose d'un parking en sous-sol.

Loyer hors charges 1 500,00 € par mois, provision charges 100,00 € par mois, loyer charges comprises 1 600,00 € par mois

Dépôt de garantie : 1 500,00 €

Honoraires TTC charge locataire : 956,19 € TTC**, dont 220,83 € au titre de la réalisation de l'état des lieux

1 600,00 € CC par mois*

Référence web : 52584673
Référence Agence : 6585

Performance énergétique

DPE 2021

Les coûts sont estimés en fonction des caractéristiques de votre logement et pour une utilisation standard. Montant estimé des dépenses annuelles d'énergie pour un usage standard entre 720,00 € et 1 030,00 € indexées aux années 2021, 2022 et 2023 (abonnement compris).

Les informations sur les risques auxquels ce bien est exposé sont disponibles sur le site Géorisques : https://www.georisques.gouv.fr.

A propos de l'agence

Agence Laforêt CHOISY LE ROI

3 boulevard des Alliés, 94600 CHOISY-LE-ROI

Téléphone

Horaires d'ouverture de l'agence

 Lundi 09:30 - 12:30 · 14:00 - 18:00
 Mardi 09:30 - 12:30 · 14:00 - 19:00
 Mercredi 09:30 - 12:30 · 14:00 - 19:00
 Jeudi 09:30 - 12:30 · 14:00 - 19:00
 Vendredi 09:30 - 12:30 · 14:00 - 19:00
 Samedi 09:30 - 12:30 · 14:00 - 18:00
 Dimanche Fermé

Aux alentours

Constituer votre dossier de location
Appeler