Appartement T3 Thiais à louer

Nouveauté
1 / 12

1 400 €/mois

Charges comprises

62 m² • 3 pièces • 2 chambres

Caractéristiques

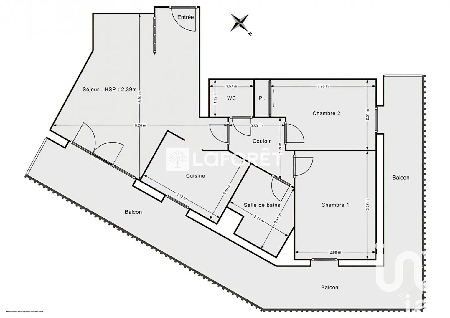
Surface et espace de vie

3 pièces
Surface : 62.11 m²
Surf. séj : 32 m²
2 chbres
1 salle de bain

Intérieur

Cuisine Indépendante
Chauffage Gaz
Ascenseur
Terrasse
Sous-sol
Meublé

Extérieur

Parking
SousSol

Autres

Ann. const. : 2018
Accès handicapé
Soumis à la copropriété
Nb lots copro : 95

Description

Dans une petite copropriété récente de 2018, découvrez ce bel appartement F3 de 63 m², situé au 3ème et dernier étage avec ascenseur, offrant confort, luminosité et tranquillité.
Il se compose d'un séjour agréable, d'une cuisine séparée, aménagée et entièrement équipée, de deux chambres, d'un WC indépendant et d'une salle de bains. Vous profiterez d'un grand balcon filant faisant le tour de l'appartement, avec une vue dégagée, sans vis-à-vis direct, ne donnant pas sur l'avenue, garantissant calme et intimité. Situation idéale à Thiais :
- À proximité immédiate du tramway T7
- À 10 minutes à pied du centre-ville de Thiais
- Une place de parking en sous-sol complète ce bien.

Loyer hors charges 1 255,00 € par mois, provision charges 145,00 € par mois, loyer charges comprises 1 400,00 € par mois

Dépôt de garantie : 2 510,00 €

Honoraires à la charge du vendeur

Honoraires TTC charge locataire : 814,89 € TTC**, dont 188,20 € au titre de la réalisation de l'état des lieux

1 400,00 € CC par mois*

*Délégation de mandat : Informations sur les honoraires disponibles en agence

Référence web : 52537836
Référence Agence : 6541

Performance énergétique

DPE 2021

Les coûts sont estimés en fonction des caractéristiques de votre logement et pour une utilisation standard. Montant estimé des dépenses annuelles d'énergie pour un usage standard entre 720,00 € et 1 030,00 € indexées aux années 2021, 2022 et 2023 (abonnement compris).

Les informations sur les risques auxquels ce bien est exposé sont disponibles sur le site Géorisques : https://www.georisques.gouv.fr.

A propos de l'agence

Agence Laforêt CHOISY LE ROI

3 boulevard des Alliés, 94600 CHOISY-LE-ROI

Téléphone

Horaires d'ouverture de l'agence

 Lundi 09:30 - 12:30 · 14:00 - 18:00
 Mardi 09:30 - 12:30 · 14:00 - 19:00
 Mercredi 09:30 - 12:30 · 14:00 - 19:00
 Jeudi 09:30 - 12:30 · 14:00 - 19:00
 Vendredi 09:30 - 12:30 · 14:00 - 19:00
 Samedi 09:30 - 12:30 · 14:00 - 18:00
 Dimanche Fermé

Aux alentours

Constituer votre dossier de location
Appeler