219 000 €
A partir de ... € / mois
83 m² • 4 pièces • 3 chambres
Caractéristiques
Surface et espace de vie
4 pièces
Surface : 83 m²
Surf. séj : 20 m²
3 chbres
2 salles de bain
Intérieur
Terrasse
Extérieur
Parking
Extérieur
Description
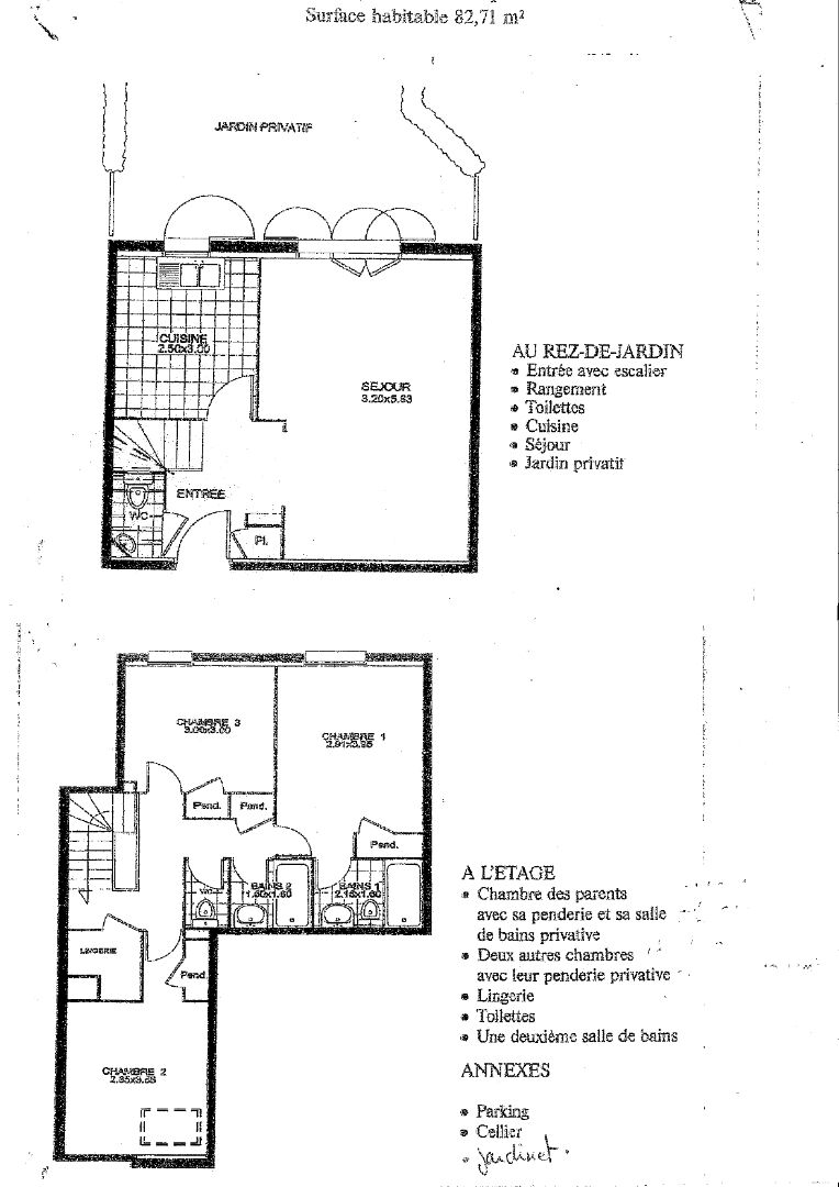
Laforêt Fosses vous propose cet investissement locatif qui se compose d'un appartement en duplex avec jardin, cave et parking.
rdc : entrée, cuisine, w-c, placard, séjour.
A l'étage : dégagement, suite parentale avec chambre, sdb et penderie, deux chambres, dressing, sdb, wc ainsi que de nombreux placards.
Le loyer perçu est d'un montant de 1444,84 € charges incluses. Le bail prend fin en décembre 2026.
rdc : entrée, cuisine, w-c, placard, séjour.
A l'étage : dégagement, suite parentale avec chambre, sdb et penderie, deux chambres, dressing, sdb, wc ainsi que de nombreux placards.
Le loyer perçu est d'un montant de 1444,84 € charges incluses. Le bail prend fin en décembre 2026.
Honoraires à la charge du vendeur
Référence web : 22542893
Référence Agence : 3829
Référence Agence : 3829
Performance énergétique
Les coûts sont estimés en fonction des caractéristiques de votre logement et pour une utilisation standard. Montant estimé des dépenses annuelles d'énergie pour un usage standard entre 1 450,00 € et 2 010,00 € indexées aux années 2021, 2022 et 2023 (abonnement compris).
Les informations sur les risques auxquels ce bien est exposé sont disponibles sur le site Géorisques : https://www.georisques.gouv.fr.
Simulateur de crédit immobilier
A propos de l'agence
Horaires d'ouverture de l'agence
Lundi
Fermé
Mardi
09:30 -
12:00
·
14:00 -
19:00
Mercredi
09:30 -
12:00
·
14:00 -
19:00
Jeudi
09:30 -
12:00
·
14:00 -
19:00
Vendredi
09:30 -
12:00
·
14:00 -
19:00
Samedi
09:30 -
12:00
·
14:00 -
18:00
Dimanche
Fermé