79 700 €
A partir de ... € / mois
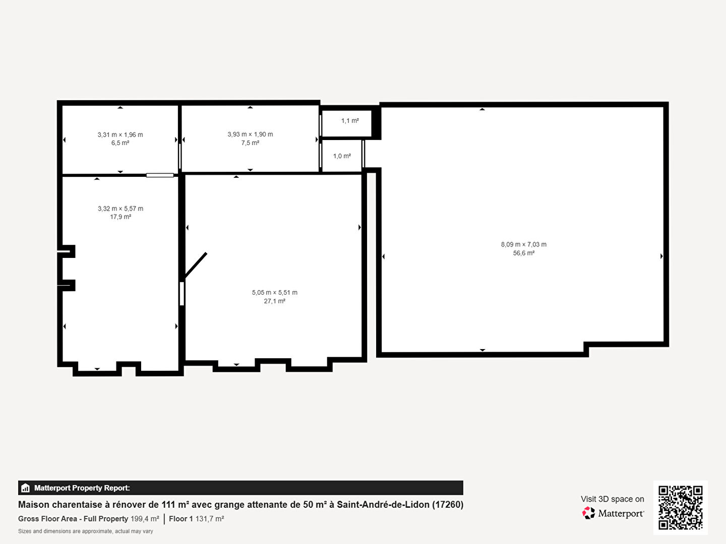
111 m² • 4 pièces • 2 chambres
Caractéristiques
Surface et espace de vie
4 pièces
Surface : 111 m²
Surf. terrain : 158 m²
2 chbres
Autres
Ann. const. : 1870
Description
À 20 minutes de Royan et des plages de l'Atlantique,
Maison charentaise à rénover de 111 m² avec grange attenante de 50 m² à Saint-André-de-Lidon (17260)
Cette maison ancienne en pierre offre un cadre paisible au coeur de la campagne charentaise. Idéale pour une résidence secondaire sans entretien extérieur (pied-à-terre) ou pour un investisseur du bâtiment, ce bien présente un fort potentiel de valorisation.
Visite immersive disponible Pour une première découverte en 3D, une visite virtuelle immersive est proposée. Il suffit de contacter notre agence pour obtenir le mot de passe de connexion.
Caractéristiques principales
Surface habitable : 111 m²
Trois pièces dont deux chambres
Grange attenante de 50 m² pouvant accueillir la filière d'assainissement et être aménagée en patio couvert végétalisé avec terrasse lumineuse
Pas de jardin, mais possibilité de créer un patio agréable et privatif
Construction en pierre de 1870, style charentais, mitoyenne.
Fenêtres bois simple vitrage, volets bois
Travaux et diagnostics
Assainissement à refaire (étude technique disponible)
Travaux à prévoir : isolation, chauffage, menuiseries, électricité, cuisine, peintures
Diagnostics amiante, plomb, termites, électricité réalisés
Présence de termites identifiée : devis et solutions de traitement disponibles
État général : habitable sommairement, idéal pour rénovation progressive
Toiture et charpente en bon état
Intérieur à rafraîchir
Localisation et commodités
Commerces à 1,5 km
École à 5 minutes
Accès autoroute à 16 km
Contact et visite Pour plus d'informations ou organiser une visite, contactez votre agence Laforêt Gémozac
Retrouvez toutes nos annonces sur : www.laforet.com/gemozac
Maison charentaise à rénover de 111 m² avec grange attenante de 50 m² à Saint-André-de-Lidon (17260)
Cette maison ancienne en pierre offre un cadre paisible au coeur de la campagne charentaise. Idéale pour une résidence secondaire sans entretien extérieur (pied-à-terre) ou pour un investisseur du bâtiment, ce bien présente un fort potentiel de valorisation.
Visite immersive disponible Pour une première découverte en 3D, une visite virtuelle immersive est proposée. Il suffit de contacter notre agence pour obtenir le mot de passe de connexion.
Caractéristiques principales
Surface habitable : 111 m²
Trois pièces dont deux chambres
Grange attenante de 50 m² pouvant accueillir la filière d'assainissement et être aménagée en patio couvert végétalisé avec terrasse lumineuse
Pas de jardin, mais possibilité de créer un patio agréable et privatif
Construction en pierre de 1870, style charentais, mitoyenne.
Fenêtres bois simple vitrage, volets bois
Travaux et diagnostics
Assainissement à refaire (étude technique disponible)
Travaux à prévoir : isolation, chauffage, menuiseries, électricité, cuisine, peintures
Diagnostics amiante, plomb, termites, électricité réalisés
Présence de termites identifiée : devis et solutions de traitement disponibles
État général : habitable sommairement, idéal pour rénovation progressive
Toiture et charpente en bon état
Intérieur à rafraîchir
Localisation et commodités
Commerces à 1,5 km
École à 5 minutes
Accès autoroute à 16 km
Contact et visite Pour plus d'informations ou organiser une visite, contactez votre agence Laforêt Gémozac
Retrouvez toutes nos annonces sur : www.laforet.com/gemozac
Honoraires à la charge de l'acquéreur inclus : 9,18% soit 73 000,00 € honoraires exclus.
Référence web : 52273265
Référence Agence : 4199
Référence Agence : 4199
Vidéo et 3D
Performance énergétique
DPE NON SOUMIS
Simulateur de crédit immobilier
A propos de l'agence
Horaires d'ouverture de l'agence
Lundi
09:30 -
12:30
·
14:00 -
18:00
Mardi
0930 -
12:30
·
14:00 -
18:00
Mercredi
09:30 -
12:30
·
14:00 -
18:00
Jeudi
09:30 -
12:30
·
14:00 -
18:00
Vendredi
09:30 -
12:30
·
14:00 -
18:00
Samedi
09:30 -
12:30
Dimanche
Fermé