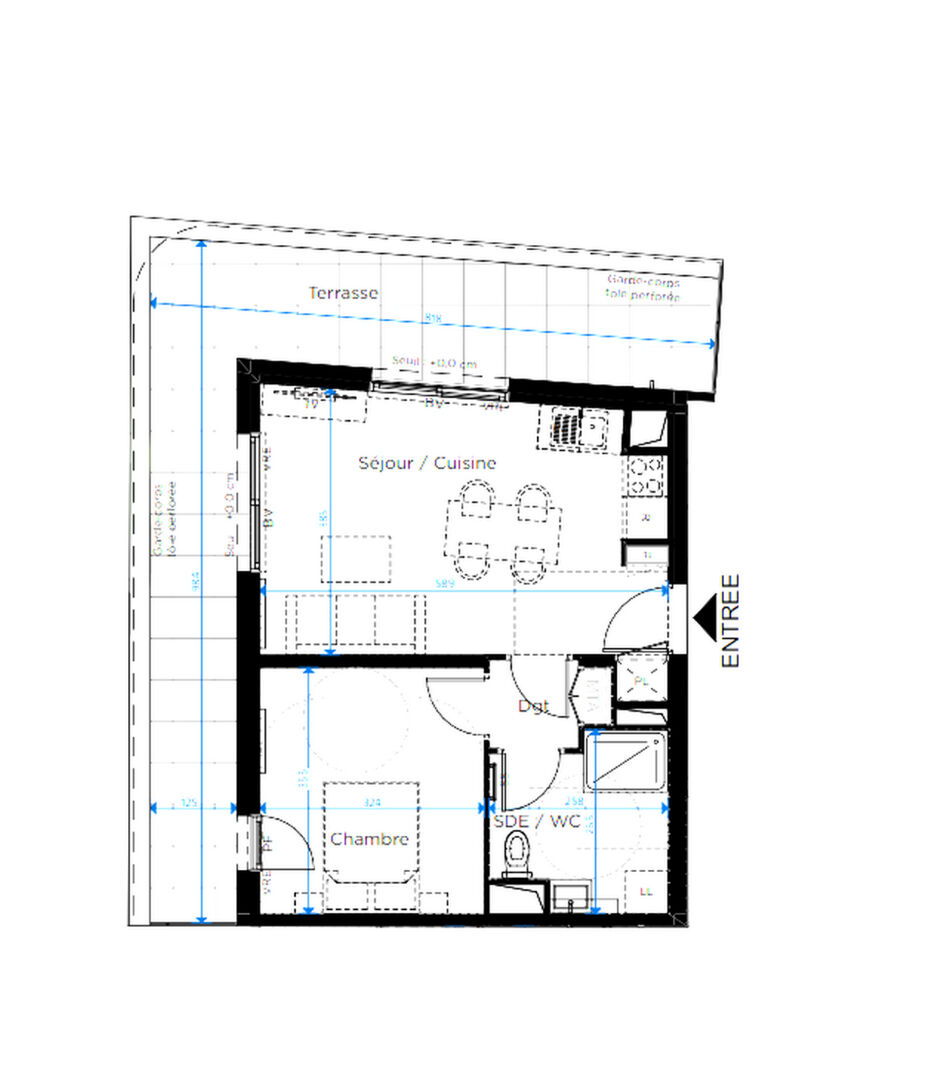
Dans l'un des quartiers les plus prisés de Montpellier , Parc Marianne, réservez votre appartement au RDC de type T2 avec terrasse. D'une superficie de 41 m², il vous offrira une grande pièce à vivre et une chambre de 11m². Livré avec sa place de parking privative, dans un cadre de vie paisible, moderne et connecté à tout, c'est l'appartement idéal pour les actifs, les familles et les investisseurs. Livraison prévue 4ème trimestre 2027. Appartements allant du T2 au T5*
Honoraires à la charge du vendeur.
*Voir conditions et disponibilités en agence.
Agence Laforêt La Grande-Motte
L2R IMMOBILIER Laforêt LA GRANDE MOTTE
Capital social : 10000 €
Siège social : 282 QUAI GEORGES POMPIDOU 34280 LA GRANDE-MOTTE
Carte(s) professionnelle(s) n° CPI 3402 2024 000 000 061 délivré par CCI HERAULT
Caisse de garantie Transaction : GALLIAN - SMABTP - 110.000 € € - 89 Rue de la Boétie 75008 PARIS- Caisse de garantie Gestion : GALLIAN - SMABTP - 110.000 € € - 89 Rue de la Boétie 75008 PARIS- N° TVA intra-communautaire : FR28933108060
Activité(s) : Transaction immobilière, Location immobilière, Immobilier d'entreprise, Gestion/administration de biens, Location saisonnière, Location meublée, Vente de NEUF, Locaux commerciaux, Fonds de commerce
Ne peut percevoir d'autres fonds, effets ou valeurs que ceux représentatifs de sa rémunération.
Chaque agence est une entité juridiquement et financièrement indépendante.
Les informations que je consens transmettre à partir de ce formulaire
sont indispensables afin d'être recontacté. Elles sont destinées à
Laforêt France et sont conservées 3 ans. Je dispose du droit de demander
l'accès, la rectification, la portabilité ou l'effacement de mes données
mais également la limitation ou l'opposition au traitement de celles-ci,
ainsi que la liste de leurs destinataires, au délégué à la protection
des données (donneespersonnelles@laforet.com). Je peux introduire à tout
moment une réclamation auprès de la CNIL et définir le sort de mes
données après ma mort. Pour plus d'informations, je peux me reporter à
la politique de confidentialité.