Local commercial Le Mesnil-Esnard à louer

1 / 10

829 €/mois HT HC

Charges comprises

72 m²

Caractéristiques

Surface et espace de vie

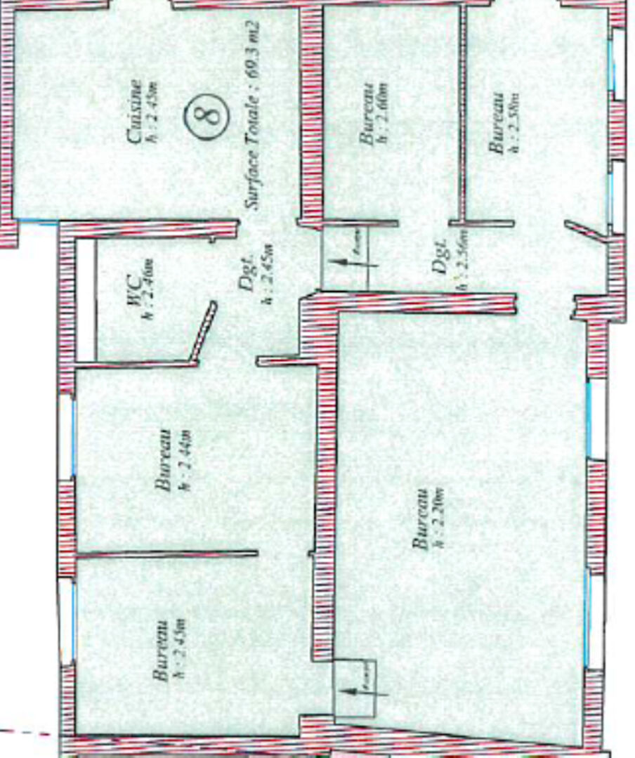
Surface : 71.94 m²

Extérieur

Parking
Extérieur

Description

L'agence LAFORET LE MESNIL-ESNARD vous propose à la location un espace fonctionnel et de qualité pour lancer et développer votre activité ? Ne cherchez plus !

Ce local commercial idéalement situé sur la route principale du Mesnil Esnard est prêt à accueillir votre entreprise dans les meilleures conditions.
Il se compose de deux bureaux dont 1 avec wc, d'une salle d'attente, d'une cuisine et d'un dégagement avec wc et placard.
2 places de parking complètent ce bien.

Disponible dès maintenant, n'hésitez pas à appeler votre agence LAFORET LE MESNIL-ESNARD pour plus d'information ou pour organiser une visite !

Loyer hors charges 829,27 € par mois, provision charges 100,00 € par mois, loyer charges comprises 929,27 € par mois

Dépôt de garantie : 829,27 €

Honoraires TTC charge locataire : 2 487,81 € TTC**, dont 0,00 € au titre de la réalisation de l'état des lieux

829,27 € HT par mois*

Référence web : 22677049
Référence Agence : 4098

Performance énergétique

DPE 2021

Les coûts sont estimés en fonction des caractéristiques de votre logement et pour une utilisation standard. Montant estimé des dépenses annuelles d'énergie pour un usage standard entre - et - indexées aux années 2021, 2022 et 2023 (abonnement compris).

Les informations sur les risques auxquels ce bien est exposé sont disponibles sur le site Géorisques : https://www.georisques.gouv.fr.

A propos de l'agence

Agence Laforêt LE MESNIL ESNARD

68 route de Paris, 76240 Le Mesnil-Esnard

Téléphone

Horaires d'ouverture de l'agence

 Lundi 09:00 - 12:00 · 14:00 - 19:00
 Mardi 09:00 - 12:00 · 14:00 - 19:00
 Mercredi 09:00 - 12:00 · 14:00 - 19:00
 Jeudi 09:00 - 12:00 · 14:00 - 19:00
 Vendredi 09:00 - 12:00 · 14:00 - 19:00
 Samedi 09:00 - 12:00 · 14:00 - 18:00
 Dimanche Fermé

Aux alentours

Constituer votre dossier de location
Appeler