Appartement T2 Levallois-Perret à vendre

Favoriz Nouveauté
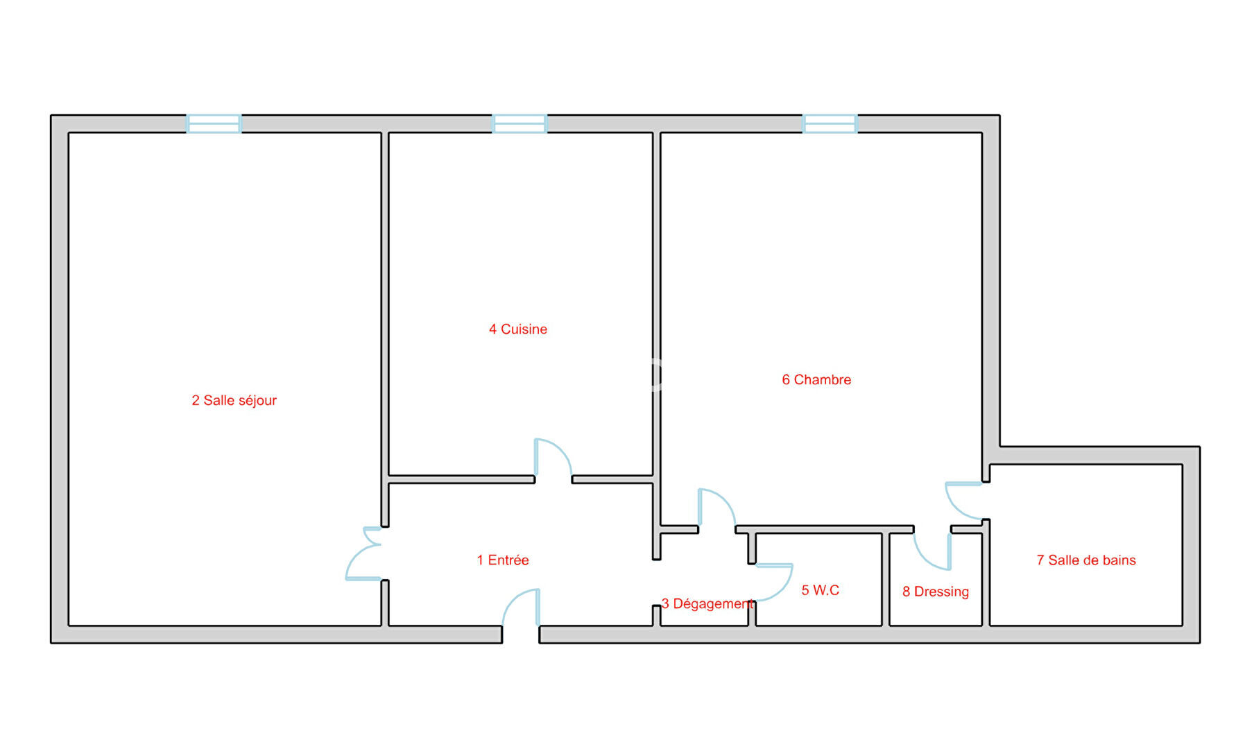
1 / 5

499 000 €

A partir de ... € / mois

52 m² • 2 pièces • 1 chambre

Caractéristiques

Surface et espace de vie

2 pièces
Surface : 52.31 m²
1 chbre
1 salle d'eau

Intérieur

Chauffage Gaz
Ascenseur
1 cave

Autres

Ann. const. : 1956
Soumis à la copropriété
Nb lots copro : 25
Charges mensuelles copro : 240 €

Description

Laforêt Levallois est à vos côtés depuis 28 ans pour tous vos projets immobiliers !

À découvrir : un charmant 2 pièces plein soleil au coeur d'un bel immeuble ancien !

Situé au 3ème étage avec ascenseur, cet appartement se compose de :
- 1 séjour lumineux
- 1 cuisine aménagée séparée
- 1 chambre confortable
- 1 salle de bains
- 1 WC séparé

En plus, vous bénéficierez d'une cave pour vos affaires et d'un magnifique parquet au sol qui apporte du cachet !

Et pour les automobilistes, possibilité de parking à seulement 50m.

Parfait état, il ne reste plus qu'à poser vos valises !

Intéressé(e) ? Contactez-nous dès maintenant !
Soumis aux statuts de la copropriété.
Pas de procédure en cours

Honoraires à la charge de l'acquéreur inclus : 3,63% soit 481 500,00 € honoraires exclus.

Montant moyen des charges annuelles : 2 880,00 €

Référence web : 52623753
Référence Agence : 7840

Performance énergétique

DPE 2021

Les coûts sont estimés en fonction des caractéristiques de votre logement et pour une utilisation standard. Montant estimé des dépenses annuelles d'énergie pour un usage standard entre 790,00 € et 1 120,00 € indexées aux années 2021, 2022 et 2023 (abonnement compris).

Les informations sur les risques auxquels ce bien est exposé sont disponibles sur le site Géorisques : https://www.georisques.gouv.fr.

Simulateur de crédit immobilier

A propos de l'agence

Agence Laforêt LEVALLOIS

63 rue du Président Wilson, 92300 LEVALLOIS-PERRET

Téléphone

Horaires d'ouverture de l'agence

 Lundi 09:30 - 14:00 · 14:00 - 19:30
 Mardi 09:30 - 14:00 · 14:00 - 19:30
 Mercredi 09:30 - 14:00 · 14:00 - 19:30
 Jeudi 09:30 - 14:00 · 14:00 - 19:30
 Vendredi 09:30 - 14:00 · 14:00 - 19:30
 Samedi 09:30 - 14:00 · 14:00 - 19:00
 Dimanche Fermé

Aux alentours

Appeler