Local commercial T3 Levallois-Perret à vendre

Favoriz Nouveauté
1 / 7

575 000 € HT HC

A partir de ... € / mois

61 m² • 3 pièces

Caractéristiques

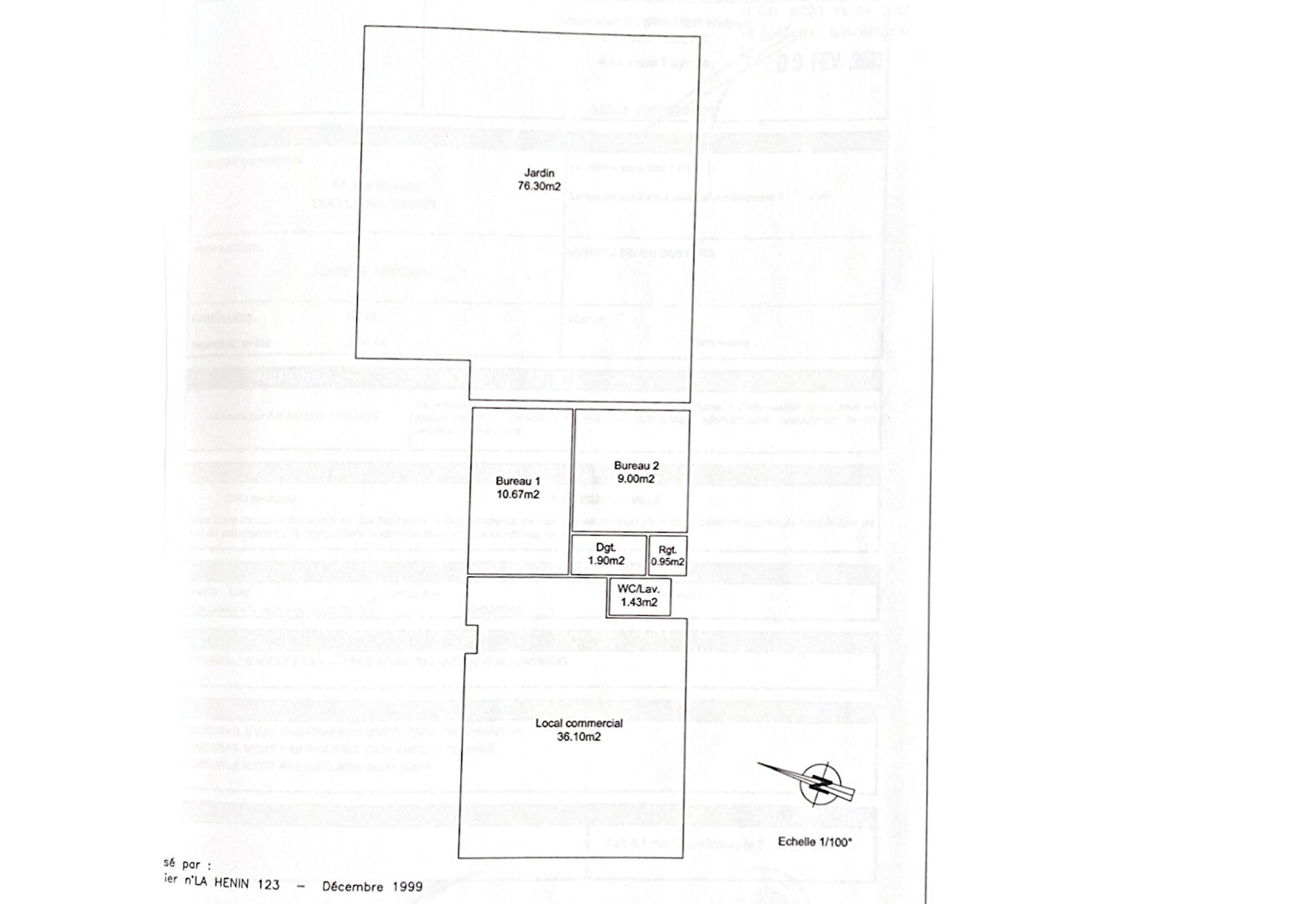
Surface et espace de vie

3 pièces
Surface : 60.58 m²

Intérieur

Chauffage Electrique
Ascenseur
1 cave

Extérieur

Parking
SousSol

Autres

Ann. const. : 1980
Accès handicapé
Soumis à la copropriété
Nb lots copro : 25

Description

Espace idéal pour diverses activités (hors nuisances), convenant parfaitement à des commerces, bureaux ou professions libérales. Il offre une kitchenette, des sanitaires, un sous-sol avec une cave et une place de stationnement. Belle visibilité avec sa vitrine sur rue et un spacieux jardin privé.

Honoraires à la charge de l'acquéreur inclus : 3,6% soit 555 000,00 € honoraires exclus.

Montant moyen des charges annuelles : 1 900,00 €

Référence web : 52599761
Référence Agence : 7788

Performance énergétique

DPE 2021

Les coûts sont estimés en fonction des caractéristiques de votre logement et pour une utilisation standard. Montant estimé des dépenses annuelles d'énergie pour un usage standard entre 1 120,00 € et 1 530,00 € indexées aux années 2021, 2022 et 2023 (abonnement compris).

Les informations sur les risques auxquels ce bien est exposé sont disponibles sur le site Géorisques : https://www.georisques.gouv.fr.

Simulateur de crédit immobilier

A propos de l'agence

Agence Laforêt LEVALLOIS

63 rue du Président Wilson, 92300 LEVALLOIS-PERRET

Téléphone

Horaires d'ouverture de l'agence

 Lundi 09:30 - 14:00 · 14:00 - 19:30
 Mardi 09:30 - 14:00 · 14:00 - 19:30
 Mercredi 09:30 - 14:00 · 14:00 - 19:30
 Jeudi 09:30 - 14:00 · 14:00 - 19:30
 Vendredi 09:30 - 14:00 · 14:00 - 19:30
 Samedi 09:30 - 14:00 · 14:00 - 19:00
 Dimanche Fermé

Aux alentours

Appeler