Appartement T2 Lyon 02 à vendre

Favoriz
1 / 8

348 000 €

A partir de ... € / mois

62 m² • 2 pièces • 1 chambre

Caractéristiques

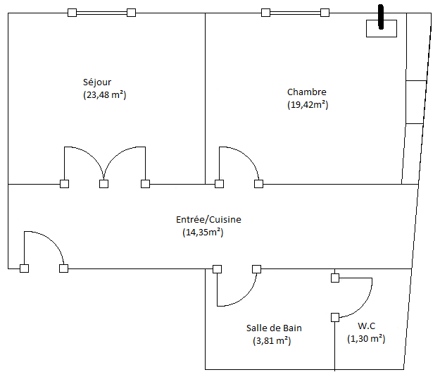
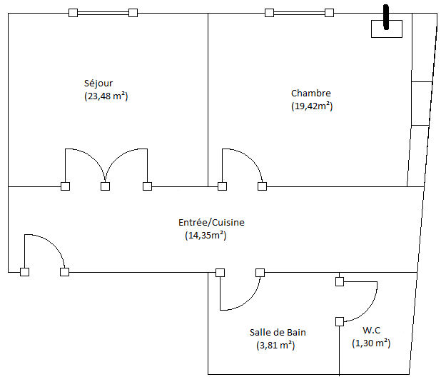
Surface et espace de vie

2 pièces
Surface : 62.36 m²
Surf. séj : 23.48 m²
1 chbre
1 salle de bain

Intérieur

Cuisine Aménagée/équipée
Chauffage Gaz
Cheminée

Autres

Soumis à la copropriété
Nb lots copro : 24
Charges mensuelles copro : 64 €

Description

En plein coeur de la Presqu'île, appartement 2 pièces de 62,36 m² au 2ème étage sans ascenseur offrant une entrée, un séjour, une cuisine aménagée et équipée, une grande chambre de 19 m², une salle de bains et un WC indépendant. Vous serez séduits par sa fonctionnalité, son cachet, et son emplacement central à proximité des transports, des gares et de toutes commodités.

EXCLUSIVITE LAFORET BELLECOUR 04.78.42.25.25

Honoraires à la charge du vendeur

Montant moyen des charges annuelles : 768,00 €

Référence web : 22287079
Référence Agence : 3545

Vidéo et 3D

Performance énergétique

DPE 2021

Les coûts sont estimés en fonction des caractéristiques de votre logement et pour une utilisation standard. Montant estimé des dépenses annuelles d'énergie pour un usage standard entre 760,00 € et 1 070,00 € indexées aux années 2021, 2022 et 2023 (abonnement compris).

Les informations sur les risques auxquels ce bien est exposé sont disponibles sur le site Géorisques : https://www.georisques.gouv.fr.

Simulateur de crédit immobilier

A propos de l'agence

Agence Laforêt LYON 2 BELLECOUR

24 bis Place Bellecour, 69002 LYON 2EME

Téléphone

Horaires d'ouverture de l'agence

 Lundi 09:15 - 12:30 · 14: - 18:30
 Mardi 09:15 - 12:30 · 14: - 18:30
 Mercredi 09:15 - 12:30 · 14: - 18:30
 Jeudi 09:15 - 12:30 · 14: - 18:30
 Vendredi 09:15 - 12:30 · 14: - 18:30
 Samedi Fermé
 Dimanche Fermé

Aux alentours

Appeler