Appartement T1 Lyon 04 à vendre

Favoriz
1 / 13

170 000 €

A partir de ... € / mois

49 m² • 1 pièce • 1 chambre

Caractéristiques

Surface et espace de vie

1 pièce
Surface : 48.98 m²
1 chbre
1 salle de bain

Intérieur

Chauffage Electrique
1 cave

Autres

Ann. const. : 1850
Soumis à la copropriété
Nb lots copro : 31
Charges mensuelles copro : 50 €

Description

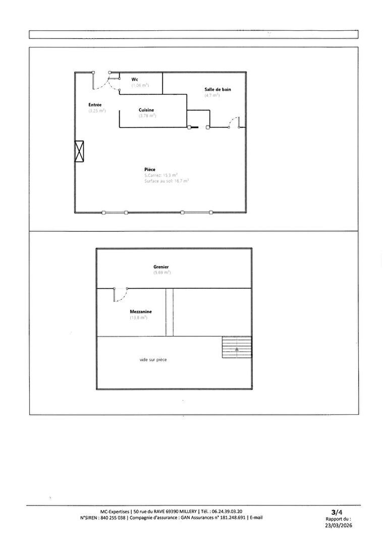
Coeur Croix-Rousse sur la Grande Rue, au pied de toutes les commodités, JOLI APPARTEMENT CANUT T1 Bis de 49 m² (28,09 m² carrez) bénéficiant d'un superbe emplacement et d'une belle luminosité. Idéal primo accédant ou investisseur.
Composé d'une entrée, d'un WC séparé, d'une pièce de vie avec cuisine US de 20 m² ( HSP 3,84 m²) ,d'une mezzanine de 13.8 m² (HSP 1m74) ainsi qu'un dressing La copropriété est en excellent état , pas de travaux importants .
Cave sécurisée de 5.4 m² , cour avec possibilité de garer son vélo.
Pour tout renseignement et visite , je reste à votre disposition Catherine HAGELIN 06 86 55 90 59 LAFORET CROIX ROUSSE

Honoraires à la charge du vendeur

Montant moyen des charges annuelles : 600,00 €

Référence web : 52549946
Référence Agence : 2832

Performance énergétique

DPE 2021

Les coûts sont estimés en fonction des caractéristiques de votre logement et pour une utilisation standard. Montant estimé des dépenses annuelles d'énergie pour un usage standard entre 860,00 € et 1 200,00 € indexées aux années 2021, 2022 et 2023 (abonnement compris).

Les informations sur les risques auxquels ce bien est exposé sont disponibles sur le site Géorisques : https://www.georisques.gouv.fr.

Simulateur de crédit immobilier

A propos de l'agence

Agence Laforêt LYON 4 CROIX-ROUSSE

37 Grande Rue de la Croix Rousse, 69004 LYON 4EME

Téléphone

Horaires d'ouverture de l'agence

 Lundi 09:00 - 12:00 · 14:00 - 18:00
 Mardi 09:00 - 12:00 · 14:00 - 18:00
 Mercredi 09:00 - 12:00 · 14:00 - 18:00
 Jeudi 09:00 - 12:00 · 14:00 - 18:00
 Vendredi 09:00 - 12:00 · 14:00 - 18:00
 Samedi Fermé
 Dimanche Fermé

Aux alentours

Appeler