CROIX-ROUSSE. À deux pas du métro Hénon, des commerces, des écoles et de l'effervescence du quartier, découvrez un bien d'exception : une maison de ville neuve (2025) aux prestations haut de gamme, nichée au calme absolu, au sein d'une copropriété sécurisée et verdoyante.
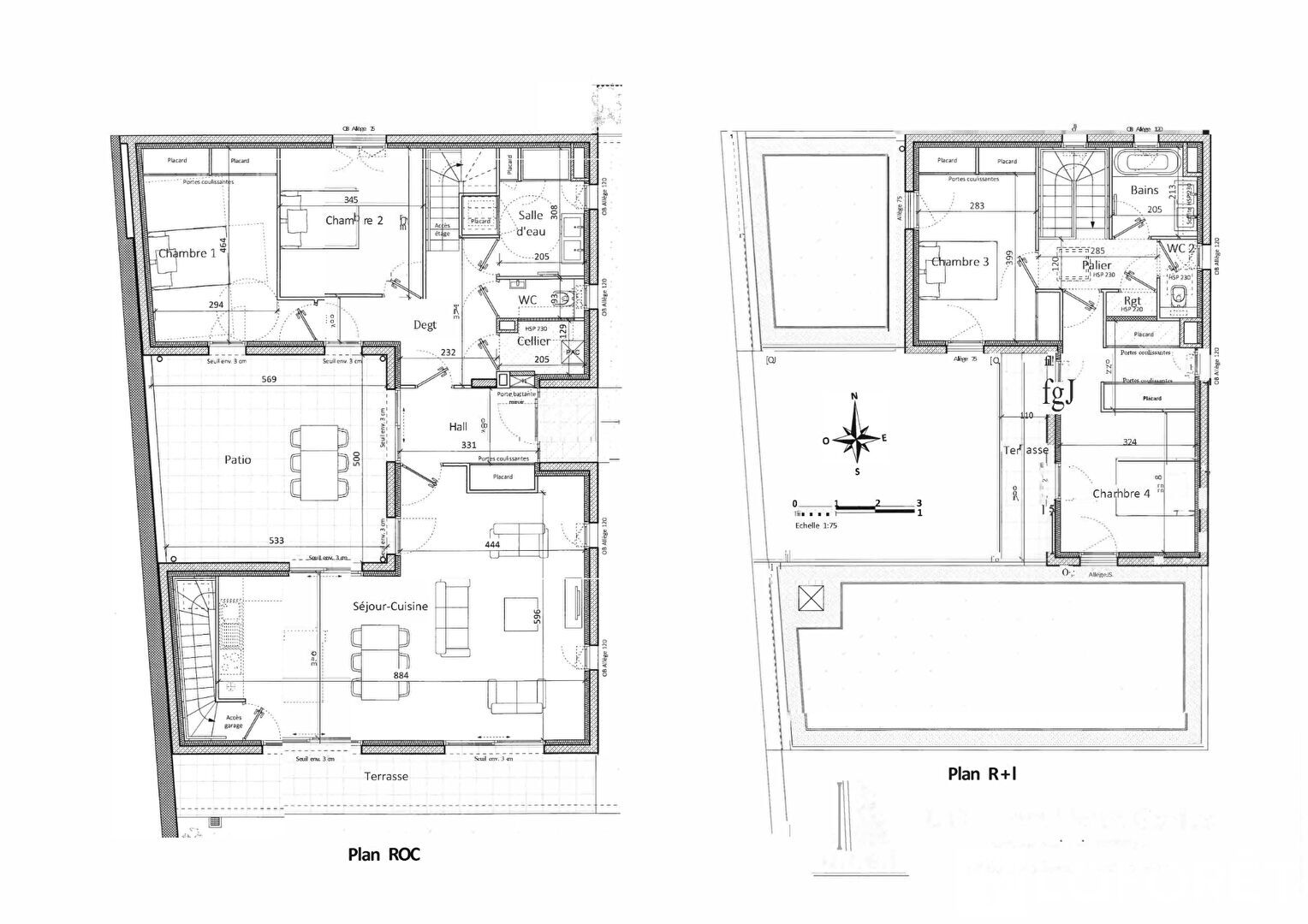
Cette maison aux lignes élégantes propose une superbe pièce de vie de 45 m² baignée de lumière, ouverte sur un jardin intimiste et un PATIO à l'abri des regards ; un véritable cocon en pleine ville !
Elle se compose de 4 chambres, d'une salle de bain, d'une salle d'eau, et de nombreux rangements. Confort moderne assuré avec une pompe à chaleur, des matériaux de qualité et une isolation performante.
En complément :
- Garage double en sous-sol avec accès privatif et porte électrique
- Cave privative
- Locaux vélos
- Proximité immédiate des transports, écoles, et commerces
- À pied du marché, des terrasses et de la vie de village typique de la Croix-Rousse
Un bien rare, alliant design contemporain, confort et vie de quartier. Coup de coeur assuré !
Contactez-nous pour plus d'informations ou pour organiser une visite. LAFORET CROIX-ROUSSE au 04.72.00.00.30.
Honoraires à la charge du vendeur
Agence Laforêt Lyon 04
L'IMMOBILIERE DE LA CROIX-ROUSSE Laforêt LYON 4 CROIX-ROUSSE
Capital social : 5000 €
Siège social : 37 Grande Rue de la Croix Rousse 69004 LYON 4EME
Assurance responsabilité civile professionnelle délivrée par GENERALI Transaction.
Titre(s) professionnel(s) : Agent immobilier
Carte(s) professionnelle(s) n° CPI 69012016000012708 délivré par CCI de Lyon
Caisse de garantie Transaction : CEGC - 115000 € - 16 Rue Hoche-Tour Kupka 92919 LA DEFENSE- Caisse de garantie Gestion : CEGC - 110000 € - 16 Rue Hoche-Tour Kupka 92919 LA DEFENSE- N° TVA intra-communautaire : FR22822201653
Activité(s) : Transaction immobilière, Location immobilière, Gestion/administration de biens, Location meublée, Locaux commerciaux, Investissement locatif
Ne peut percevoir d'autres fonds, effets ou valeurs que ceux représentatifs de sa rémunération.
Chaque agence est une entité juridiquement et financièrement indépendante.
Les informations que je consens transmettre à partir de ce formulaire
sont indispensables afin d'être recontacté. Elles sont destinées à
Laforêt France et sont conservées 3 ans. Je dispose du droit de demander
l'accès, la rectification, la portabilité ou l'effacement de mes données
mais également la limitation ou l'opposition au traitement de celles-ci,
ainsi que la liste de leurs destinataires, au délégué à la protection
des données (donneespersonnelles@laforet.com). Je peux introduire à tout
moment une réclamation auprès de la CNIL et définir le sort de mes
données après ma mort. Pour plus d'informations, je peux me reporter à
la politique de confidentialité.