69 000 € HT HC
A partir de ... € / mois
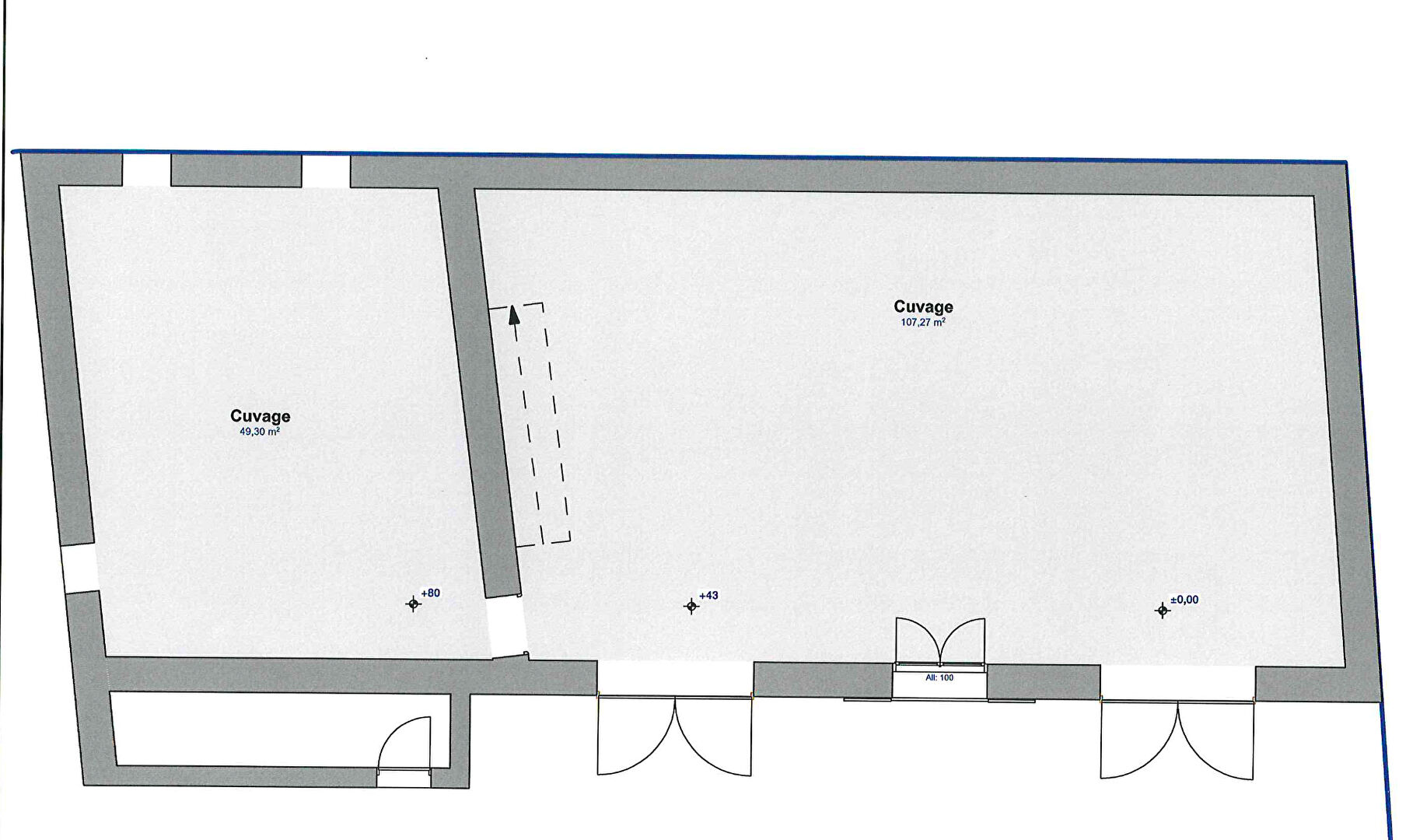
140 m²
Caractéristiques
Surface et espace de vie
Surface : 140 m²
Intérieur
1 cave
Extérieur
Couvert
Autres
Soumis à la copropriété
Nb lots copro : 4
Description
À vendre ancien cuvage situé au rez-de-chaussée d'une maison, dans le village de Chénas, au coeur du Beaujolais.
Ce bien offre de beaux volumes et un fort potentiel d'aménagement.
Idéal pour : garage, local artisanal, atelier, stockage ou autre projet professionnel ou personnel (selon autorisations).
Le charme de l'ancien (cachet, authenticité) séduira les amateurs de lieux atypiques à transformer selon leurs besoins.
Rez-de-chaussée - Accès facile - grande hauteur sous plafonds - Usage multiple possible - Bien rare sur le secteur
Ce bien offre de beaux volumes et un fort potentiel d'aménagement.
Idéal pour : garage, local artisanal, atelier, stockage ou autre projet professionnel ou personnel (selon autorisations).
Le charme de l'ancien (cachet, authenticité) séduira les amateurs de lieux atypiques à transformer selon leurs besoins.
Rez-de-chaussée - Accès facile - grande hauteur sous plafonds - Usage multiple possible - Bien rare sur le secteur
Honoraires à la charge du vendeur
Montant moyen des charges annuelles : 500,00 €
Référence web : 52444757
Référence Agence : 12859
Référence Agence : 12859
Performance énergétique
DPE NON SOUMIS
Simulateur de crédit immobilier
A propos de l'agence
Horaires d'ouverture de l'agence
Lundi
09:00 -
12:00
·
14:00 -
18:00
Mardi
09:00 -
12:00
·
14:00 -
18:00
Mercredi
09:00 -
12:00
·
14:00 -
18:00
Jeudi
09:00 -
12:00
·
14:00 -
18:00
Vendredi
09:00 -
12:00
·
14:00 -
18:00
Samedi
Fermé
Dimanche
Fermé