Maison T3 Monthyon à vendre

Favoriz Nouveauté
1 / 3

119 000 €

A partir de ... € / mois

95 m² • 3 pièces • 2 chambres

Caractéristiques

Surface et espace de vie

3 pièces
Surface : 94.77 m²
Surf. terrain : 100 m²
2 chbres
3 salles d'eau

Intérieur

Cuisine Américaine
Terrasse

Extérieur

Parking
Extérieur

Description

LAFORÊT MEAUX
A MONTHYON

Maison mitoyenne déjà bâtie, intégralement à réhabiliter.
Sans système de chauffage

À seulement 15 minutes de Meaux, au coeur d'une cour commune calme et arborée, venez découvrir cette maison pleine de possibilités.

Vous trouverez ci dessous le projet :
Au rez-de-chaussée : une entrée, une cuisine - salle à manger, un W.C indépendant et un salon.
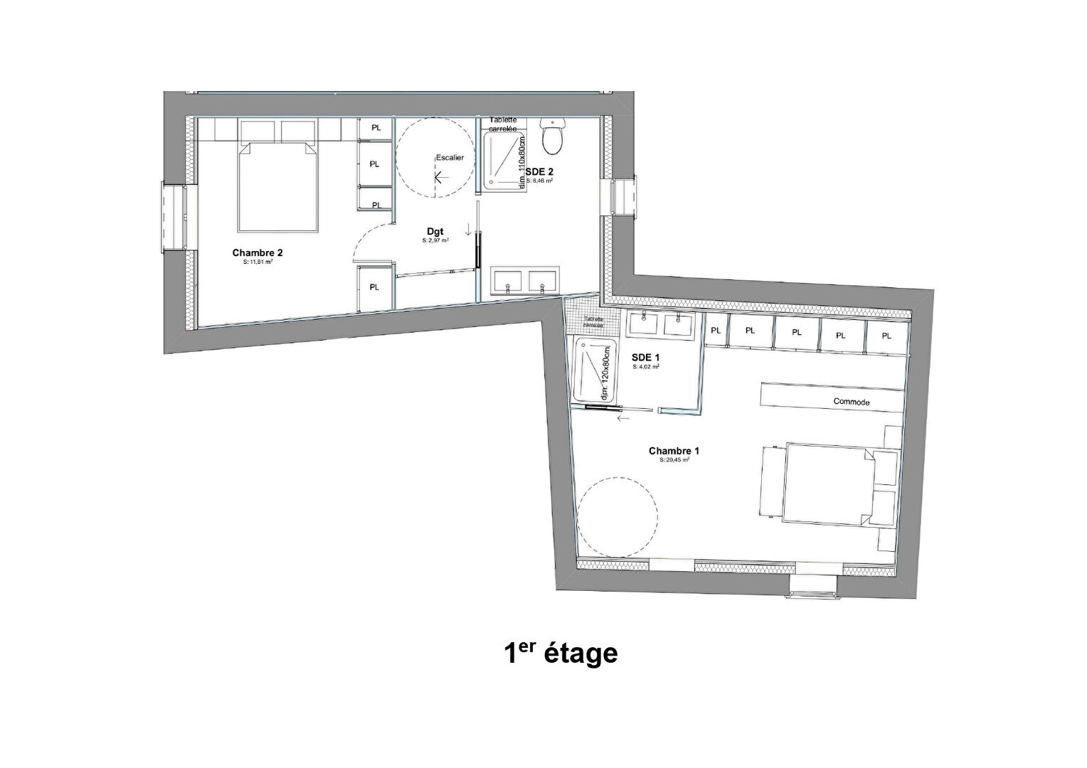
À l'étage : un palier, deux chambres avec salle d'eau.
À l'extérieur : un jardin, deux emplacements de parking dont l'entrée se fait via la cour commune.

Construite sur deux niveaux, parfaite pour être aménagés selon vos envies.

Son jardin exposé sud-ouest, vous offrira une vue imprenable sur la plaine : un cadre rare, verdoyant et paisible.

Un bien idéal pour un projet de rénovation personnalisée : résidence principale, maison secondaire ou investissement locatif.

Trois places de stationnement privées complètent ce bien.

Respirez, vous passez par Laforêt !!!

Honoraires à la charge du vendeur

Référence web : 52423652
Référence Agence : 2226

Performance énergétique

DPE 2021

Les coûts sont estimés en fonction des caractéristiques de votre logement et pour une utilisation standard. Montant estimé des dépenses annuelles d'énergie pour un usage standard entre 3 960,00 € et 5 380,00 € indexées aux années 2021, 2022 et 2023 (abonnement compris).

Logement à consommation énergétique excessive.

Les informations sur les risques auxquels ce bien est exposé sont disponibles sur le site Géorisques : https://www.georisques.gouv.fr.

Simulateur de crédit immobilier

A propos de l'agence

Agence Laforêt MEAUX

2 rue Aristide Briand, 77100 Meaux

Téléphone

Horaires d'ouverture de l'agence

 Lundi 09:00 - 18:00
 Mardi 09:30 - 18:30
 Mercredi 09:30 - 18:30
 Jeudi 09:30 - 18:30
 Vendredi 09:30 - 18:30
 Samedi 09:00 - 18:00
 Dimanche Fermé

Aux alentours

Appeler