Appartement T3 Scy-Chazelles à vendre

Favoriz
1 / 5

370 000 €

A partir de ... € / mois

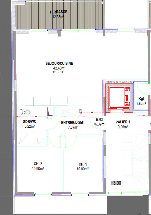
76 m² • 3 pièces • 2 chambres

Caractéristiques

Surface et espace de vie

3 pièces
Surface : 76.39 m²
2 chbres

Description

Sur les hauteurs de Scy-Chazelles, une opportunité unique vous attend pour investir dans l'immobilier !

Bénéficiez d'un emplacement privilégié qui saura maximiser la valeur de votre investissement.

Le Clos Robert Schuman vous invite à profiter d'un environnement boisé offrant une tranquillité incomparable.

Ce projet immobilier à échelle humaine s'engage en faveur de l'environnement en réhabilitant le site de l'ancien groupe scolaire, intégrant ainsi des dispositifs éco-responsables.

Le Clos Robert Schuman propose 5 résidences comprenant au total 31 logements allant du T2 au T6, ainsi que 3 maisons T6, offrant une variété d'options pour répondre à vos besoins et à vos envies.

Ne manquez pas cette occasion exceptionnelle d'investir dans un lieu où le confort de vie et le respect de l'environnement cohabitent.

Contactez-nous dès maintenant pour en savoir plus et réaliser votre projet immobilier à Scy-Chazelles !

Cet appartement T3 fait 76.39² et possède une terrasse de 12.35m².
Deux emplacements de stationnement sont réservés pour ce bien.

Livraison premier semestre 2026
Frais de notaire réduits 3%
Référence web : 22134553
Référence Agence : 29372

Performance énergétique

DPE 2021

Les coûts sont estimés en fonction des caractéristiques de votre logement et pour une utilisation standard. Montant estimé des dépenses annuelles d'énergie pour un usage standard entre 100,00 € et 1 000,00 € indexées aux années 2021, 2022 et 2023 (abonnement compris).

Les informations sur les risques auxquels ce bien est exposé sont disponibles sur le site Géorisques : https://www.georisques.gouv.fr.

Simulateur de crédit immobilier

A propos de l'agence

Agence Laforêt METZ

3 place Raymond Mondon, 57000 Metz

Téléphone

Horaires d'ouverture de l'agence

 Lundi 09:00 - 12:00 · 14:00 - 18:00
 Mardi 09:00 - 12:00 · 14:00 - 18:00
 Mercredi 09:00 - 12:00 · 14:00 - 18:00
 Jeudi 09:00 - 12:00 · 14:00 - 18:00
 Vendredi 09:00 - 12:00 · 14:00 - 18:00
 Samedi Fermé
 Dimanche Fermé

Aux alentours

Appeler