330 000 €
A partir de ... € / mois
1102 m²
Caractéristiques
Surface et espace de vie
Surface : 1102 m²
Surf. terrain : 1102 m²
Description
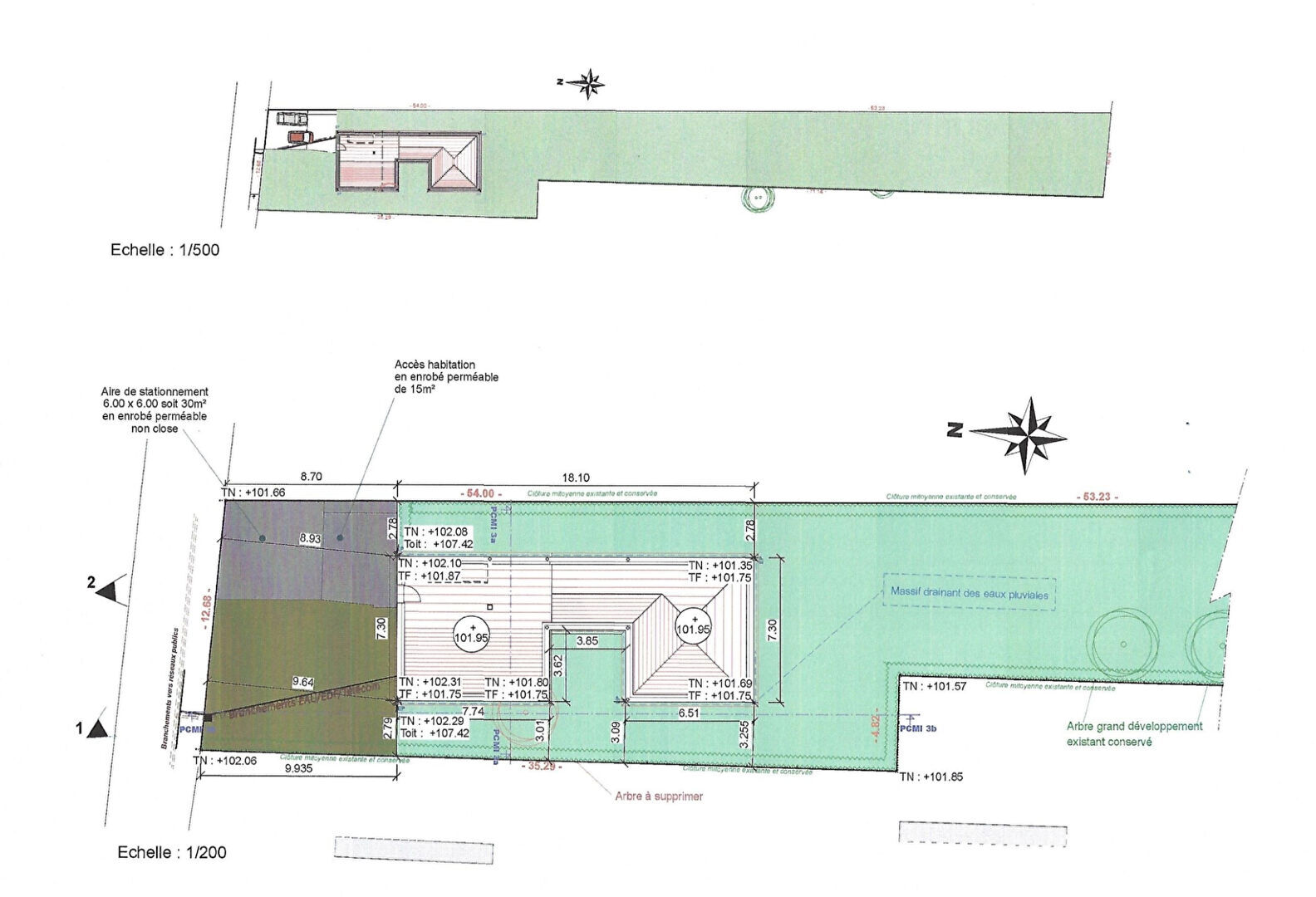
Situé dans un environnement pavillonnaire de Montmorency, ce terrain d'environ 1 100 m² constitue une opportunité concrète pour réaliser un projet de maison familiale.
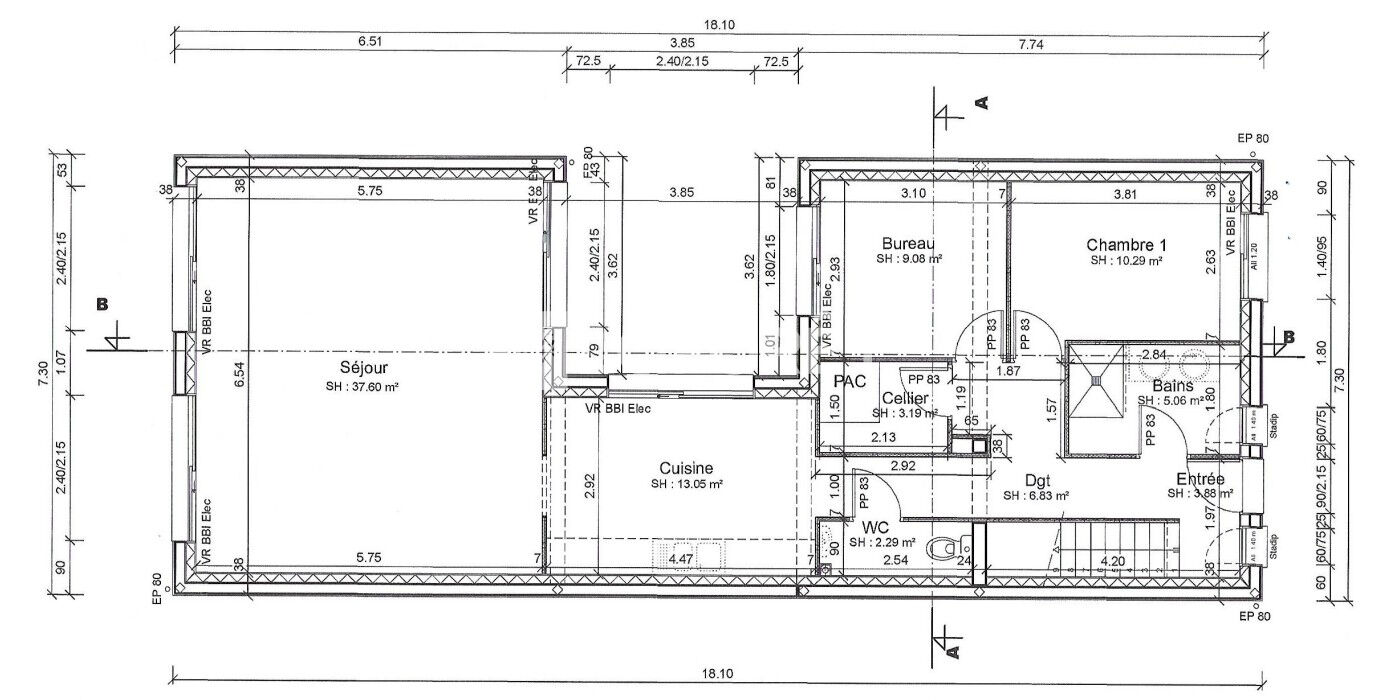
La parcelle est classée en zone UCb du Plan Local d'Urbanisme, correspondant à un secteur résidentiel à dominante pavillonnaire. Un permis de construire déjà accordé et prêt à être mis en oeuvre prévoit une maison d'environ 132 m² habitables comprenant un séjour de près de 38 m², une chambre et un bureau au rez-de-chaussée avec salle de bains, ainsi que trois chambres et une seconde salle de bains à l'étage.
La profondeur du terrain permet de profiter d'un vaste jardin à l'arrière, à l'écart de la rue, propice à de nombreux aménagements selon vos envies : espace de jeux, piscine, potager ou aménagement paysager plus naturel.
On aime
- Le permis déjà accordé, prêt à être exploité
- Le grand jardin arrière préservé
- La surface rare sur le secteur
- Un projet de maison familiale avec une chambre et bureau au rez-de-chaussée
La parcelle est classée en zone UCb du Plan Local d'Urbanisme, correspondant à un secteur résidentiel à dominante pavillonnaire. Un permis de construire déjà accordé et prêt à être mis en oeuvre prévoit une maison d'environ 132 m² habitables comprenant un séjour de près de 38 m², une chambre et un bureau au rez-de-chaussée avec salle de bains, ainsi que trois chambres et une seconde salle de bains à l'étage.
La profondeur du terrain permet de profiter d'un vaste jardin à l'arrière, à l'écart de la rue, propice à de nombreux aménagements selon vos envies : espace de jeux, piscine, potager ou aménagement paysager plus naturel.
On aime
- Le permis déjà accordé, prêt à être exploité
- Le grand jardin arrière préservé
- La surface rare sur le secteur
- Un projet de maison familiale avec une chambre et bureau au rez-de-chaussée
Honoraires à la charge du vendeur
Référence web : 52217833
Référence Agence : 570
Référence Agence : 570
Performance énergétique
DPE NON SOUMIS
Simulateur de crédit immobilier
A propos de l'agence
Horaires d'ouverture de l'agence
Lundi
14:00 -
19:00 Sur rendez-vous
Mardi
09:30 -
12:30
·
14:00 -
19:00
Mercredi
09:30 -
12:30
·
14:00 -
19:00
Jeudi
09:30 -
12:30
·
14:00 -
19:00
Vendredi
09:30 -
12:30
·
14:00 -
19:00
Samedi
09:30 -
12:30
·
14:00 -
19:00
Dimanche
Fermé