PROGRAMME NEUF AppartementT3 EN VEFA à GENAY
Livraison prévue : Été 2026
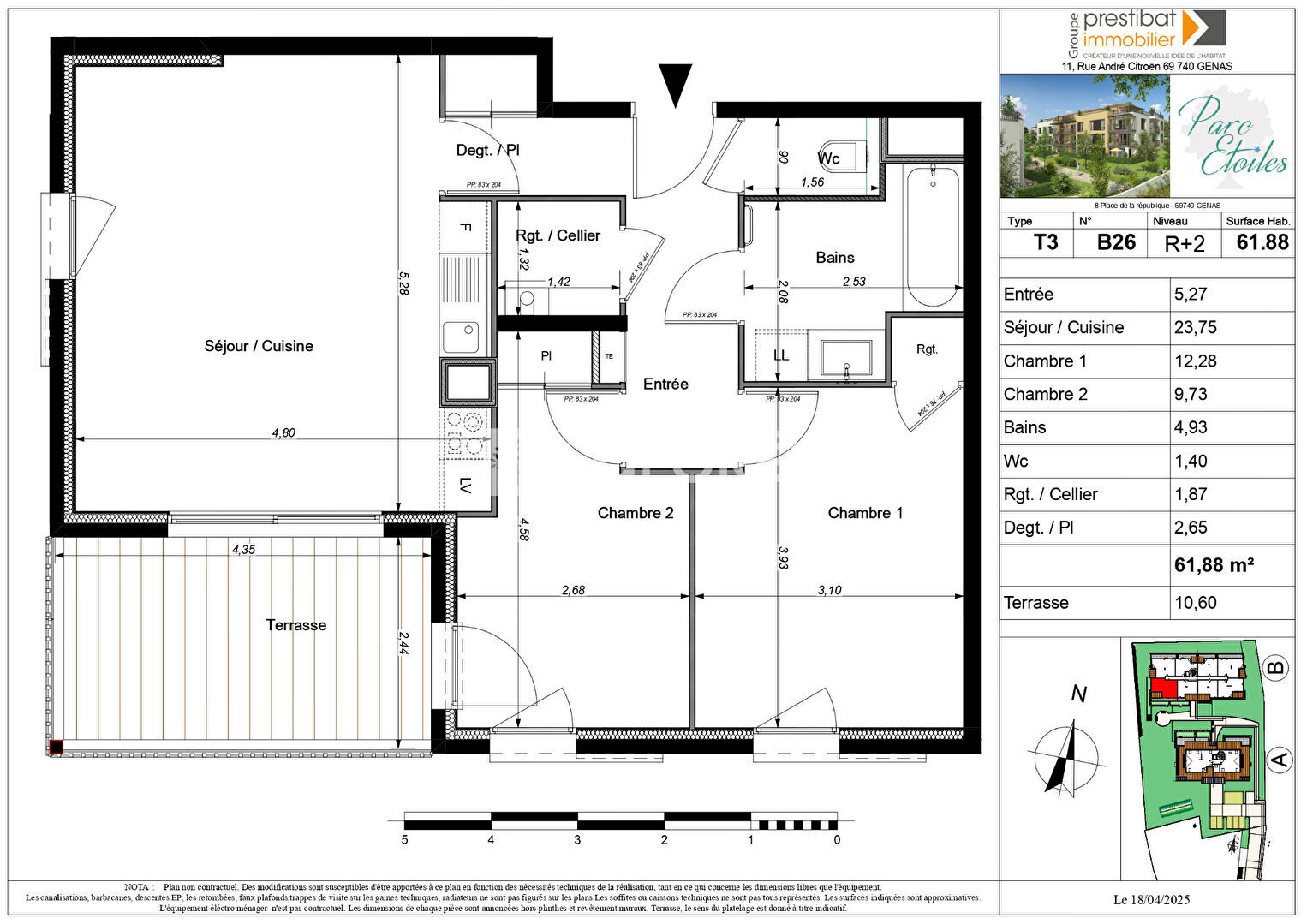
À découvrir dans un nouveau programme immobilier à Genay, ce bel appartement T3 de 62 m² situé au sein d'une résidence moderne et intimiste, sa terrasse de 10.6 m² .
Les atouts du bien : 2ème étage avec ascenseur belles expositions Sud et Ouest
Surface habitable : 61.89 m²
2 chambres lumineuses avec rangement et une avec accès à la terrasse
Séjour lumineux avec accès direct à la terrasse .
Cave incluse
Résidence neuve aux normes RE2012
Proximité immédiate des commodités : commerces, écoles, transports
Ce logement neuf vous offre un cadre de vie agréable dans un secteur calme et recherché de Genay, à seulement quelques minutes de Lyon.
Emplacement idéal pour habiter ou investir.
Opportunité à saisir en avant-première ! Frais de notaire réduits, garanties constructeur
N'hésitez pas à me contacter Stéphanie Clémenceau, tel: 06.70.13.76.01
Honoraires à la charge du vendeur
Agence Laforêt Neuville-sur-Saône
I.R.C. IMMO REPUBLIQUE ET CONSEILS Laforêt NEUVILLE-SUR-SAONE
Capital social : 10000 €
Siège social : RFC - 4 rue de la République 69250 NEUVILLE-SUR-SAONE
Assurance responsabilité civile professionnelle délivrée par AXA FRANCE IARD 10516628004.
Titre(s) professionnel(s) : Agent immobilier
Carte(s) professionnelle(s) n° CPI69012020000044868 délivré par CCI de LYON Métropole SAINT -ETIENNE ROANNE
Caisse de garantie Gestion : AXA FRANCE IARD - 110 000 € € - 313Les Terrasses de k'Arche 92727- N° TVA intra-communautaire : FR14881907349
Activité(s) : Transaction immobilière, Location immobilière, Immobilier d'entreprise, Gestion/administration de biens, Location meublée, Vente de NEUF, Locaux commerciaux, Fonds de commerce, Viager, Investissement locatif
Ne peut percevoir d'autres fonds, effets ou valeurs que ceux représentatifs de sa rémunération.
Chaque agence est une entité juridiquement et financièrement indépendante.
Les informations que je consens transmettre à partir de ce formulaire
sont indispensables afin d'être recontacté. Elles sont destinées à
Laforêt France et sont conservées 3 ans. Je dispose du droit de demander
l'accès, la rectification, la portabilité ou l'effacement de mes données
mais également la limitation ou l'opposition au traitement de celles-ci,
ainsi que la liste de leurs destinataires, au délégué à la protection
des données (donneespersonnelles@laforet.com). Je peux introduire à tout
moment une réclamation auprès de la CNIL et définir le sort de mes
données après ma mort. Pour plus d'informations, je peux me reporter à
la politique de confidentialité.