76 200 €
A partir de ... € / mois
500 m² • 6 pièces • 4 chambres
Caractéristiques
Surface et espace de vie
6 pièces
Surface : 500 m²
Surf. terrain : 500 m²
4 chbres
Description
Situé à 4 minutes du bourg de Petit-Mars et 5 minutes de Nort-sur-Erdre, au coeur de son paisible hameau.
Venez réalisé ce projet de maison NEUVE sur un terrain de 500m².
Permis validé pour une maison de 100m² conforme aux normes RT 2012. (Projet Non libre de constructeur). Possibilité de modifications.
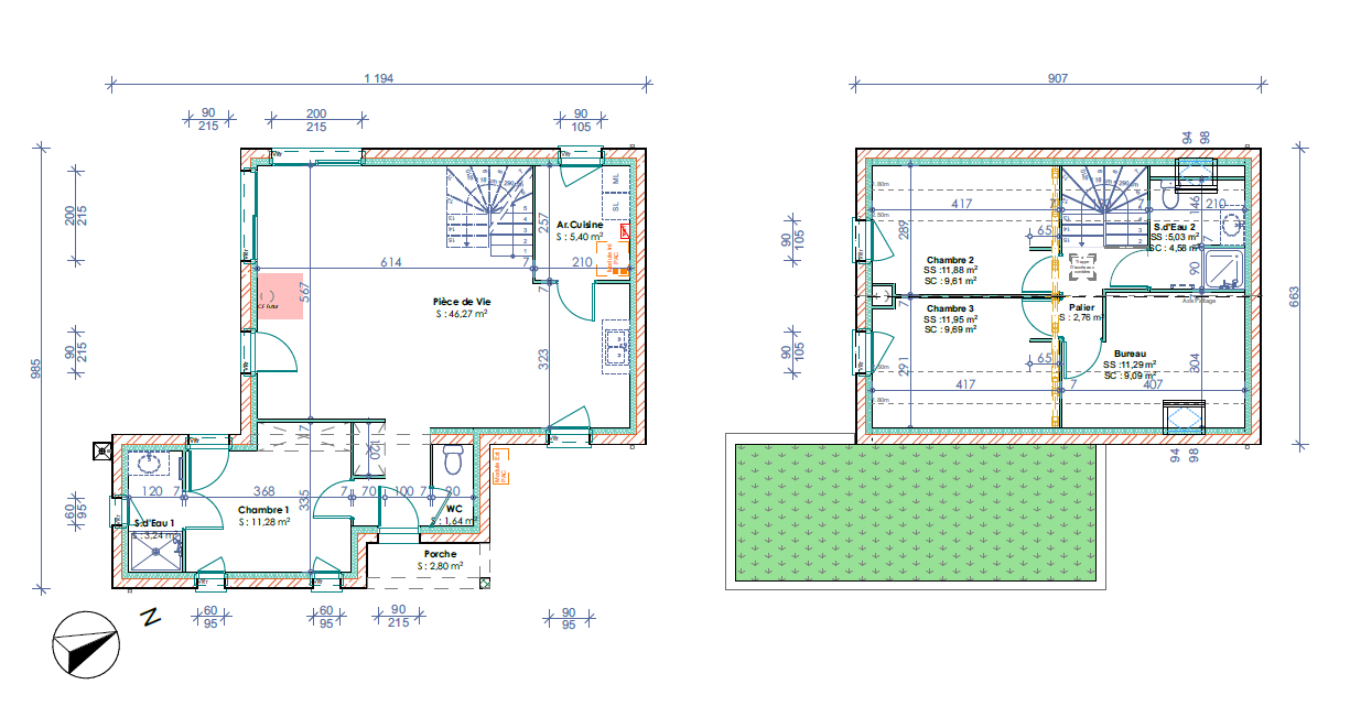
Le projet est fait pour une maison de 105m² comprenant trois chambres, bureau et pièce de vie de plus de 45m².
Projet de construction à 203 000€ hors cuisines, peintures, sol des chambres et assainissement.
Totalité pour moins de 300 000€
Surface habitable 105.80m²
RDC : 67.83m²
Etage : 37.97m²
Venez réalisé ce projet de maison NEUVE sur un terrain de 500m².
Permis validé pour une maison de 100m² conforme aux normes RT 2012. (Projet Non libre de constructeur). Possibilité de modifications.
Le projet est fait pour une maison de 105m² comprenant trois chambres, bureau et pièce de vie de plus de 45m².
Projet de construction à 203 000€ hors cuisines, peintures, sol des chambres et assainissement.
Totalité pour moins de 300 000€
Surface habitable 105.80m²
RDC : 67.83m²
Etage : 37.97m²
Bien proposé par Margot JOULAIN (RSAC n° 911875896) - Agent Commercial
Honoraires à la charge de l'acquéreur inclus : 8,86% soit 70 000,00 € honoraires exclus.
Référence web : 22676614
Référence Agence : 8915
Référence Agence : 8915
Performance énergétique
DPE NON SOUMIS
Simulateur de crédit immobilier
A propos de l'agence
Horaires d'ouverture de l'agence
Lundi
09:15 -
12:00
·
14:00 -
19:00
Mardi
09:15 -
12:00
·
14:00 -
19:00
Mercredi
09:15 -
12:00
·
14:00 -
19:00
Jeudi
09:15 -
12:00
·
14:00 -
19:00
Vendredi
09:15 -
12:00
·
14:00 -
19:00
Samedi
09:15 -
12:00
·
14:00 -
17:00
Dimanche
Fermé