Appartement T2 Paris 10 à vendre

Nouveauté
1 / 14

262 000 €

A partir de ... € / mois

25 m² • 2 pièces • 1 chambre

Caractéristiques

Surface et espace de vie

2 pièces
Surface : 24.58 m²
1 chbre
1 salle d'eau

Intérieur

Cuisine Ouverte
Chauffage Electrique
1 cave

Autres

Soumis à la copropriété
Nb lots copro : 40
Charges mensuelles copro : 125.41 €

Description

BONNE NOUVELLE - STRASBOURG SAINT-DENIS

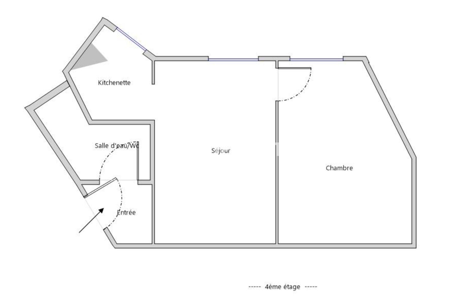
Au 4ème étage sur cour d'un immeuble ancien, Laforêt vous propose cet appartement 2 pièces de 24,5m2 calme et lumineux se composant d'une entrée, d'une salle d'eau avec wc, un séjour avec coin cuisine ouverte et une chambre.
Proximité des commerces et transports, à la lisière du 2ème et 9ème arrondissement.

Une cave complète ce bien

Honoraires à la charge du vendeur

Montant moyen des charges annuelles : 1 505,00 €

*Délégation de mandat : Informations sur les honoraires disponibles en agence

Référence web : 52591940
Référence Agence : 11014

Vidéo et 3D

Performance énergétique

DPE 2021

Les coûts sont estimés en fonction des caractéristiques de votre logement et pour une utilisation standard. Montant estimé des dépenses annuelles d'énergie pour un usage standard entre 840,00 € et 1 170,00 € indexées aux années 2021, 2022 et 2023 (abonnement compris).

Les informations sur les risques auxquels ce bien est exposé sont disponibles sur le site Géorisques : https://www.georisques.gouv.fr.

Simulateur de crédit immobilier

A propos de l'agence

Agence Laforêt PARIS 10 SAINT-DENIS

50 rue du Faubourg Saint-Denis, 75010 PARIS 10EME

Téléphone

Horaires d'ouverture de l'agence

 Lundi 09:30 - 19:00
 Mardi 09:30 - 19:00
 Mercredi 09:30 - 19:00
 Jeudi 09:30 - 19:00
 Vendredi 09:30 - 19:00
 Samedi 10:00 - 18:00
 Dimanche Fermé

Aux alentours

Appeler