Appartement T2 PARIS à vendre

Nouveauté
1 / 12

287 000 €

A partir de ... € / mois

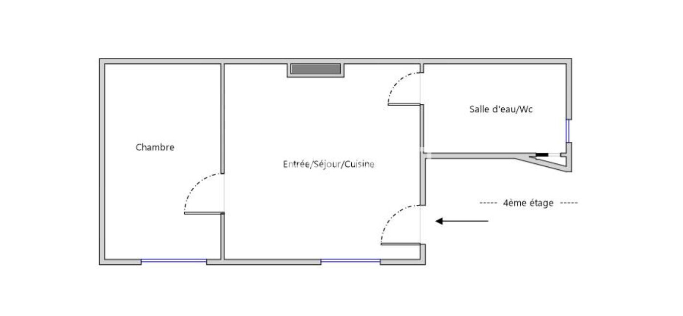
28 m² • 2 pièces • 1 chambre

Caractéristiques

Surface et espace de vie

2 pièces
Surface : 28 m²
1 chbre

Intérieur

1 cave

Autres

Ann. const. : 1750
Soumis à la copropriété
Nb lots copro : 39
Charges mensuelles copro : 102.33 €

Description

Paris 10ème - Porte Saint-Martin
Au 4ème étage sans ascenseur côté cour, Laforêt vous propose en exclusivité un appartement de 28m2 avec un plan sans perte de place.
Il se compose d'un séjour avec cuisine ouverte, une salle d'eau avec wc et d'une chambre. L'appartement est calme, exposé EST.
Emplacement idéal emplacement : à la lisière du 2ème et 3ème arrondissement, a proximité immédiate des transports et commerces de la rue du Faubourg Saint-Denis et du Village Saint-Martin.
Une rénovation est à prévoir.
Le DPE est passé en E au 1er janvier 2026

Honoraires à la charge du vendeur

Montant moyen des charges annuelles : 1 227,00 €

*Délégation de mandat : Informations sur les honoraires disponibles en agence

Référence web : 52640353
Référence Agence : 11134

Vidéo et 3D

Performance énergétique

DPE 2021

Les coûts sont estimés en fonction des caractéristiques de votre logement et pour une utilisation standard. Montant estimé des dépenses annuelles d'énergie pour un usage standard entre 1 027,00 € et 4 585,00 € indexées aux années 2021, 2022 et 2023 (abonnement compris).

Les informations sur les risques auxquels ce bien est exposé sont disponibles sur le site Géorisques : https://www.georisques.gouv.fr.

Simulateur de crédit immobilier

A propos de l'agence

Agence Laforêt PARIS 10 SAINT-DENIS

50 rue du Faubourg Saint-Denis, 75010 PARIS 10EME

Téléphone

Horaires d'ouverture de l'agence

 Lundi 09:30 - 19:00
 Mardi 09:30 - 19:00
 Mercredi 09:30 - 19:00
 Jeudi 09:30 - 19:00
 Vendredi 09:30 - 19:00
 Samedi 10:00 - 18:00
 Dimanche Fermé

Aux alentours

Appeler