Appartement T3 Paris 11 à vendre

Favoriz Nouveauté
1 / 13

570 000 €

A partir de ... € / mois

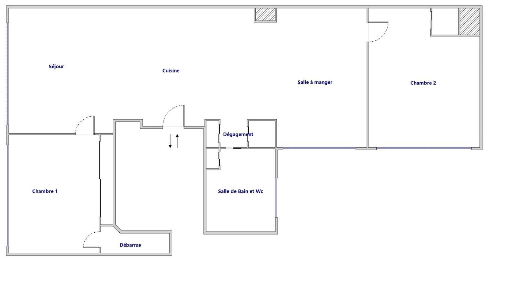
74 m² • 3 pièces • 2 chambres

Caractéristiques

Surface et espace de vie

3 pièces
Surface : 74 m²
2 chbres
1 salle de bain

Intérieur

Chauffage Electrique
1 cave

Autres

Ann. const. : 1800
Soumis à la copropriété
Nb lots copro : 32
Charges mensuelles copro : 129.17 €

Description

Proche Métro Voltaire, dans un immeuble ancien bien entretenu, nous vous proposons un appartement trois pièces de 74m². Situé au 1er étage, celui-ci se compose d'une belle pièce de vie traversante, avec salle à manger, cuisine américaine aménagée et salon, de deux chambres et d'une salle de bains avec WC. Le bien saura vous séduire par son calme, sa luminosité, son plan sans perte de place et son très bon état général. A visiter rapidement. Une cave en complément.

Honoraires à la charge de l'acquéreur inclus : 3,64% soit 550 000,00 € honoraires exclus.

Montant moyen des charges annuelles : 1 550,12 €

Référence web : 52415529
Référence Agence : 18071

Performance énergétique

DPE 2021

Les coûts sont estimés en fonction des caractéristiques de votre logement et pour une utilisation standard. Montant estimé des dépenses annuelles d'énergie pour un usage standard entre 2 920,00 € et 3 990,00 € indexées aux années 2021, 2022 et 2023 (abonnement compris).

Logement à consommation énergétique excessive.

Les informations sur les risques auxquels ce bien est exposé sont disponibles sur le site Géorisques : https://www.georisques.gouv.fr.

Simulateur de crédit immobilier

A propos de l'agence

Agence Laforêt PARIS 11 VOLTAIRE

148 boulevard Voltaire, 75011 Paris 11

Téléphone

Horaires d'ouverture de l'agence

 Lundi 09:30 - 19:00
 Mardi 09:30 - 19:00
 Mercredi 09:30 - 19:00
 Jeudi 09:30 - 19:00
 Vendredi 09:30 - 19:00
 Samedi 10:00 - 18:00
 Dimanche Fermé

Aux alentours

Appeler