Appartement T3 Paris 16 à vendre

Nouveauté
1 / 8

460 000 €

A partir de ... € / mois

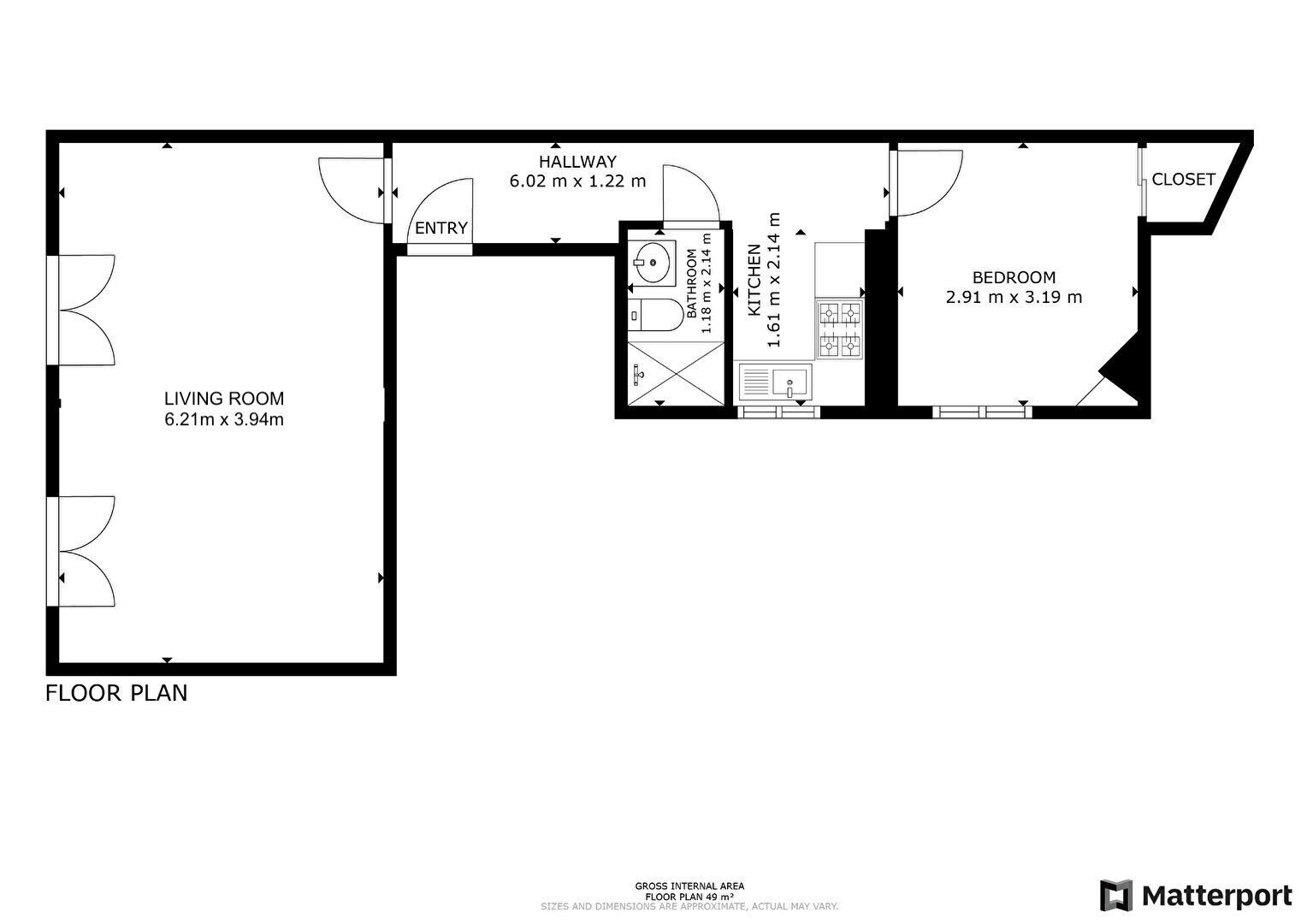
45 m² • 3 pièces • 1 chambre

Caractéristiques

Surface et espace de vie

3 pièces
Surface : 45 m²
1 chbre
1 salle d'eau

Intérieur

Chauffage Electrique
Ascenseur
1 cave

Autres

Ann. const. : 1893
Nb lots copro : 12
Charges mensuelles copro : 135 €

Description

Au sein d'un immeuble ancien, un charmant appartement de 45 m², trois pièces composé d'une entrée, d'un double séjour de 23 m² sur rue calme, d'une chambre sur cour d'environ 10 m², d'une cuisine indépendante, d'une salle d'eau avec toilettes.
Une cave complète ce bien. Possibilité professions libérales.
CALME - LUMINEUX - PROCHE COMMERCES - RANGEMENTS
simulation DPE 2026 - DPE E

Honoraires à la charge de l'acquéreur inclus : 4,55% soit 440 000,00 € honoraires exclus.

Référence web : 52455472
Référence Agence : 23899

Performance énergétique

DPE 2021

Les coûts sont estimés en fonction des caractéristiques de votre logement et pour une utilisation standard. Montant estimé des dépenses annuelles d'énergie pour un usage standard entre 1 220,00 € et 1 680,00 € indexées aux années 2021, 2022 et 2023 (abonnement compris).

Les informations sur les risques auxquels ce bien est exposé sont disponibles sur le site Géorisques : https://www.georisques.gouv.fr.

Simulateur de crédit immobilier

A propos de l'agence

Agence Laforêt PARIS 16 AUTEUIL

72 rue d'Auteuil, 75016 Paris 16

Téléphone

Horaires d'ouverture de l'agence

 Lundi 09:00 - 19:00
 Mardi 09:00 - 19:00
 Mercredi 09:00 - 19:00
 Jeudi 09:00 - 19:00
 Vendredi 09:00 - 19:00
 Samedi 10:00 - 14:00
 Dimanche Fermé

Aux alentours

Appeler