Appartement T5 Paris 02 à vendre

Nouveauté
1 / 15

1 390 000 €

A partir de ... € / mois

109 m² • 5 pièces • 3 chambres

Caractéristiques

Surface et espace de vie

5 pièces
Surface : 109 m²
3 chbres
1 salle de bain
1 salle d'eau

Intérieur

Cuisine Indépendante
Chauffage Autres
1 cave

Autres

Ann. const. : 1820
Soumis à la copropriété
Nb lots copro : 23

Description

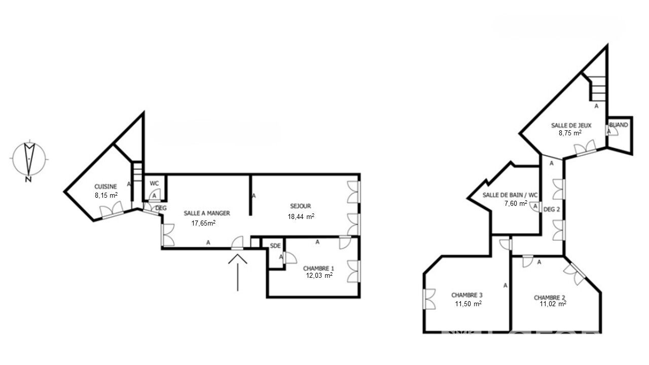
L'agence LAFORÊT PARIS 1&2 a le plaisir de vous proposer, au 3ème étage d'une copropriété de standing à proximité de la Bourse et des Grands Boulevards ce magnifique appartement familial rénové avec modernité et charme de l'ancien, d'une surface de 107,33 m² loi Carrez et 109,73 m² au sol, offrant un véritable esprit de maison.

Il se compose, au premier niveau : d'une salle à manger / séjour traversant de 36m² exposé EST/ Ouest, une suite parentale avec sa salle d'eau attenante, un W.C. séparé, une cuisine indépendante entièrement aménagée/équipée. (2.70 hauteur sous plafond)

Au second niveau : Un espace jeux/bureau, une buanderie avec son SAUNA, une grande salle de bain avec DOUCHE / BAIGNOIRE / W.C., et deux belles chambres spacieuses sur cour intérieure avec de nombreux rangements.

La CLIMATISATION réversible est présente dans tout l'appartement ainsi que des volets électriques - aucun travaux à prévoir, habitable de suite.

L'appartement bénéficie d'une très belle luminosité ainsi que d'une remarquable hauteur sous plafond, offrant des volumes élégants et une atmosphère particulièrement agréable.

Une cave complète le bien. Un local vélo est également à disposition au sein de la copropriété.

À proximité des nombreux transports (MÉTRO L3 ; L4 ; L8 ; L9 / BUS...), écoles, restaurants et commodités du Centre de Paris.

Ce bien est parfaitement adapté à une famille en quête d'un cadre de vie privilégié ou à l'acquisition d'un élégant pied-à-terre familial.

Appartement très RARE dans le quartier, venez VITE le découvrir !

Bien proposé par Antonin SERAFINO (RSAC n° 929740017) - Agent Commercial

Honoraires à la charge du vendeur

Montant moyen des charges annuelles : 4 100,00 €

Référence web : 52524103
Référence Agence : 4706

Performance énergétique

DPE 2021

Les coûts sont estimés en fonction des caractéristiques de votre logement et pour une utilisation standard. Montant estimé des dépenses annuelles d'énergie pour un usage standard entre 1 470,00 € et 2 000,00 € indexées aux années 2021, 2022 et 2023 (abonnement compris).

Les informations sur les risques auxquels ce bien est exposé sont disponibles sur le site Géorisques : https://www.georisques.gouv.fr.

Simulateur de crédit immobilier

A propos de l'agence

Agence Laforêt PARIS 1&2

52 rue Montmartre, 75002 Paris 02

Téléphone

Horaires d'ouverture de l'agence

 Lundi 09:30 - 13:00 · 14:00 - 19:00
 Mardi 09:30 - 13:00 · 14:00 - 19:00
 Mercredi 09:30 - 13:00 · 14:00 - 19:00
 Jeudi 09:30 - 13:00 · 14:00 - 19:00
 Vendredi 09:30 - 13:00 · 14:00 - 19:00
 Samedi 10:00 - 13:00 · 14:00 - 18:00
 Dimanche Fermé

Aux alentours

Appeler