Appartement T2 Paris 04 à vendre

Favoriz Nouveauté
1 / 11

499 000 €

A partir de ... € / mois

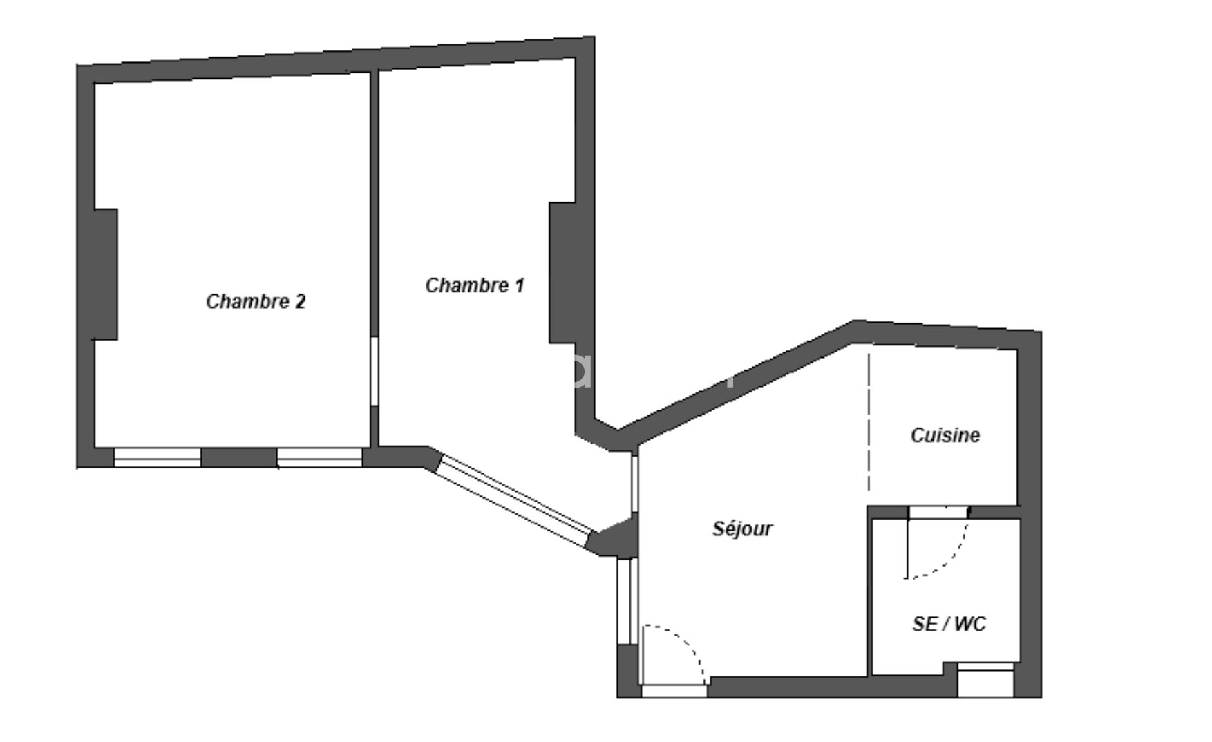
41 m² • 2 pièces • 1 chambre

Caractéristiques

Surface et espace de vie

2 pièces
Surface : 41 m²
1 chbre
1 salle d'eau

Intérieur

Chauffage Electrique
1 cave

Autres

Charges mensuelles copro : 105 €

Description

En exclusivité chez Laforêt Paris Marais, rue du Temple, à deux pas du BHV, découvrez cet appartement deux/trois pièces entièrement rénové, au calme sur cour.

Il se compose actuellement de deux chambres, avec la possibilité de repenser l'agencement pour créer une grande chambre ou une chambre avec coin bureau, selon les besoins. La pièce de vie lumineuse intègre une cuisine ouverte, moderne et fonctionnelle.

L'immeuble bénéficie de travaux importants déjà votés : ravalement côté rue et cour, réfection de la toiture, rénovation des caves et du sol de cour.

Adresse très recherchée au coeur du Marais, à proximité immédiate des commerces et des transports. Un bien idéal pour un premier achat ou un pied-à-terre modulable.

Honoraires à la charge de l'acquéreur inclus : 5,05% soit 475 000,00 € honoraires exclus.

Référence web : 52547802
Référence Agence : 5955

Performance énergétique

DPE 2021

Les coûts sont estimés en fonction des caractéristiques de votre logement et pour une utilisation standard. Montant estimé des dépenses annuelles d'énergie pour un usage standard entre 640,00 € et 910,00 € indexées aux années 2021, 2022 et 2023 (abonnement compris).

Les informations sur les risques auxquels ce bien est exposé sont disponibles sur le site Géorisques : https://www.georisques.gouv.fr.

Simulateur de crédit immobilier

A propos de l'agence

Agence Laforêt PARIS 04

19 rue Rambuteau, 75004 PARIS 4EME

Téléphone

Horaires d'ouverture de l'agence

 Lundi 09:30 - 19:00
 Mardi 09:30 - 19:00
 Mercredi 09:30 - 19:00
 Jeudi 09:30 - 19:00
 Vendredi 09:30 - 19:00
 Samedi 10:00 - 14:00
 Dimanche Fermé

Aux alentours

Appeler