Local commercial Paris 03 à louer

1 / 9

17 550 €/mois HT HC

Charges comprises

490 m²

Caractéristiques

Surface et espace de vie

Surface : 490 m²

Intérieur

Chauffage Gaz
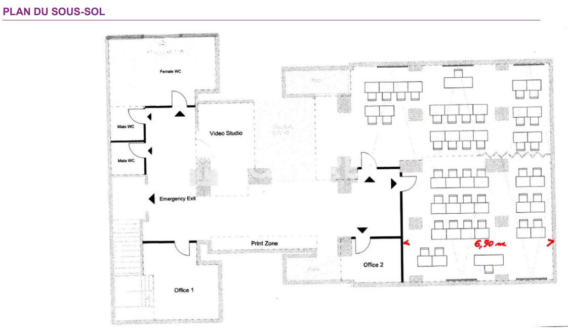
Sous-sol

Autres

Soumis à la copropriété

Description

Laforêt Paris Marais vous propose , rue du Perche, dans un cadre haussmannien, un local commercial d'exception. Il se compose d'un rez-de-chaussée de 290 m² avec une belle hauteur sous plafond, lumineux grâce à sa verrière de toiture style Eiffel ainsi que d'un sous-sol de 200 m² . Cet espace offre une grande flexibilité d'aménagement (bureaux / salle de réunion).
Provision sur taxe foncière : 10440€

Loyer hors charges 17 550,00 € par mois, provision charges 1 305,00 € par mois, loyer charges comprises 18 855,00 € par mois

17 550,00 € HT par mois*

Référence web : 52367467
Référence Agence : 5629

Performance énergétique

DPE NON SOUMIS

A propos de l'agence

Agence Laforêt PARIS 04

19 rue Rambuteau, 75004 PARIS 4EME

Téléphone

Horaires d'ouverture de l'agence

 Lundi 09:30 - 19:00
 Mardi 09:30 - 19:00
 Mercredi 09:30 - 19:00
 Jeudi 09:30 - 19:00
 Vendredi 09:30 - 19:00
 Samedi 10:00 - 14:00
 Dimanche Fermé
Constituer votre dossier de location
Appeler