Maison T10 Landudec à vendre

1 / 28

299 000 €

A partir de ... € / mois

204 m² • 10 pièces • 6 chambres

Caractéristiques

Surface et espace de vie

10 pièces
Surface : 204 m²
Surf. terrain : 903 m²
6 chbres
1 salle de bain

Intérieur

Cuisine Aménagée/équipée
Chauffage Fuel
Cheminée
Garage

Extérieur

Parking

Autres

Ann. const. : 1967

Description

LANDUDEC - Agence LAFORET - vous propose cette grande et belle bâtisse en pierres, charme des années 60. Elle vous offre la possibilité d'avoir deux logements séparés distincts, ou bien sa maison d'habitation et des bureaux pour une activité professionnelle.
Cette jolie maison d'habitation en plein bourg et proche des commerces, vous offre une vie de plain pieds.
Au rez-de-chaussée vous trouverez un spacieux hall d'entrée desservant : 3 belles chambres, une salle de bains, des WC, une cuisine et un grand salon-séjour avec une cheminée avec insert.
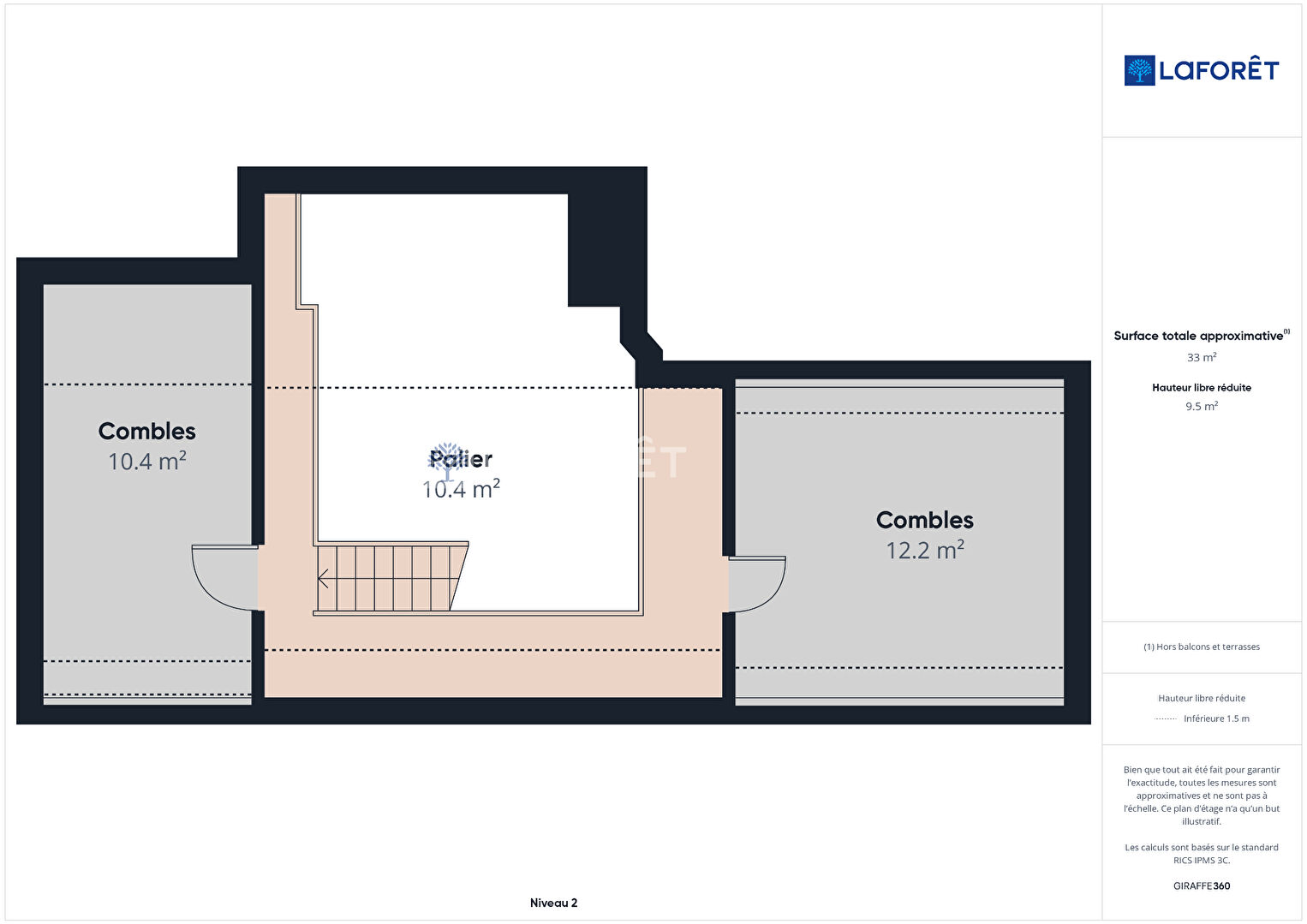
A l'étage : un grenier, une chambre.
L'étage communique avec la seconde partie de l'habitation : on y trouve une belle pièce à vivre et son plafond cathédrale, 2 chambres, un bureau, des WC. Un escalier extérieur permet un accès séparé.
Au dernier étage : l'accès mène à deux greniers aménageables.
Jardin, double garage et appentis complètent cet ensemble.
Visite virtuelle sur demande, Mandat 13418

Bien proposé par Virginie Chapeleau (RSAC n° 890 666 217) - Agent Commercial

Honoraires à la charge de l'acquéreur inclus : 3,1% soit 290 000,00 € honoraires exclus.

Référence web : 22240383
Référence Agence : 14448

Vidéo et 3D

Performance énergétique

DPE 2021

Les coûts sont estimés en fonction des caractéristiques de votre logement et pour une utilisation standard. Montant estimé des dépenses annuelles d'énergie pour un usage standard entre 4 560,00 € et 6 220,00 € indexées aux années 2021, 2022 et 2023 (abonnement compris).

Logement à consommation énergétique excessive.

Les informations sur les risques auxquels ce bien est exposé sont disponibles sur le site Géorisques : https://www.georisques.gouv.fr.

Simulateur de crédit immobilier

A propos de l'agence

Agence Laforêt PLOZEVET

83ter rue d'Audierne, 29710 Plozévet

Téléphone

Horaires d'ouverture de l'agence

 Lundi 09:00 - 12:00 · 14:00 - 18:00
 Mardi 09:00 - 12:00 · 14:00 - 18:00
 Mercredi 09:00 - 12:00 · 14:00 - 18:00
 Jeudi 09:00 - 12:00 · 14:00 - 18:00
 Vendredi 09:00 - 12:00 · 14:00 - 18:00
 Samedi 09:00 - 12:00 · 14:00 - 18:00
 Dimanche Fermé

Aux alentours

Appeler