Appartement T2 Pontault-Combault à louer

Favoriz
1 / 9

802 €/mois

Charges comprises

30 m² • 2 pièces • 1 chambre

Caractéristiques

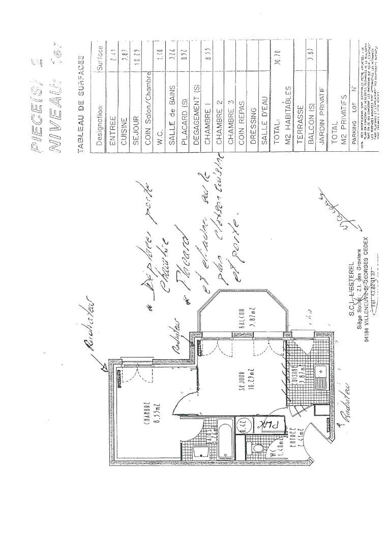
Surface et espace de vie

2 pièces
Surface : 29.94 m²
1 chbre

Autres

Ann. const. : 1989

Description

L 'AGENCE LOFORET VOUS PROPROSE EN LOCATION :
Un appartement de deux pièces comprenant : une entrée, un séjour, une
chambre, une cuisine, une salle de bains avec baignoire et lavabo, un water-closets, deux placards, un balcon.
Avec un box fermé en sous sol
« Les informations sur les risques auxquels ce bien est exposé sont disponibles sur le site Géorisques : www.georisques.gouv.fr ».
Vous pouvez envoyer directement votre dossier par mail à l'agence de Pontault Combault voir dernière photos sur l'annonce

Loyer hors charges 732,00 € par mois, provision charges 70,00 € par mois, loyer charges comprises 802,00 € par mois

Dépôt de garantie : 732,00 €

Honoraires TTC charge locataire : 389,22 € TTC**, dont 89,82 € au titre de la réalisation de l'état des lieux

802,00 € CC par mois*

Référence web : 52295024
Référence Agence : 3256

Performance énergétique

DPE 2011 GES 2011

Les coûts sont estimés en fonction des caractéristiques de votre logement et pour une utilisation standard. Montant estimé des dépenses annuelles d'énergie pour un usage standard - indexées aux années 2021, 2022 et 2023 (abonnement compris).

Les informations sur les risques auxquels ce bien est exposé sont disponibles sur le site Géorisques : https://www.georisques.gouv.fr.

A propos de l'agence

Agence Laforêt PONTAULT COMBAULT

9-bis avenue de la République, 77340 Pontault-Combault

Téléphone

Horaires d'ouverture de l'agence

 Lundi 09:00 - 12:00 · 14:00 - 19:00
 Mardi 09:00 - 12:00 · 14:00 - 19:00
 Mercredi 09:00 - 12:00 · 14:00 - 19:00
 Jeudi 09:00 - 12:00 · 14:00 - 19:00
 Vendredi 09:00 - 12:00 · 14:00 - 19:00
 Samedi 09:00 - 12:00 · 14:00 - 19:00
 Dimanche Fermé

Aux alentours

Constituer votre dossier de location
Appeler