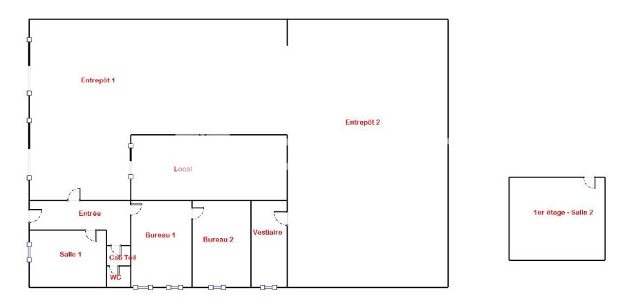
Idéalement situé sur la commune de Saint Loubès venez découvrir ce local commercial avec bureaux et entrepôt d'une superficie d'environ 1012 m² sur une parcelle de 2789 m². Le bâtiment est composé d'une partie bureau, cuisine, salle d'eau, wc, showroom ainsi qu'une partie entrepôt / stockage. À l'extérieur vous profiterez également d'un grand parking avec quai de chargement d'environ 940 m². Plan intérieur détaillé à disposition en agence. Libre immédiatement.
Dépôt de garantie : 14 000,00 €
Honoraires TTC charge locataire : 8 676,00 € TTC**, dont 0,00 € au titre de la réalisation de l'état des lieux
7 230,00 € HT par mois*
Agence Laforêt Saint-Loubès
SAS AQU'INVEST 3 Laforêt SAINT LOUBES
Capital social : 1000 €
Siège social : 1 Rue Saint-Aignan 33450 SAINT-LOUBES
Les informations que je consens transmettre à partir de ce formulaire
sont indispensables afin d'être recontacté. Elles sont destinées à
Laforêt France et sont conservées 3 ans. Je dispose du droit de demander
l'accès, la rectification, la portabilité ou l'effacement de mes données
mais également la limitation ou l'opposition au traitement de celles-ci,
ainsi que la liste de leurs destinataires, au délégué à la protection
des données (donneespersonnelles@laforet.com). Je peux introduire à tout
moment une réclamation auprès de la CNIL et définir le sort de mes
données après ma mort. Pour plus d'informations, je peux me reporter à
la politique de confidentialité.