1 350 €/mois HT HC
Charges comprises
105 m² • 2 pièces
Caractéristiques
Surface et espace de vie
2 pièces
Surface : 105 m²
Extérieur
Parking
Extérieur
Autres
Soumis à la copropriété
Nb lots copro : 15
Description
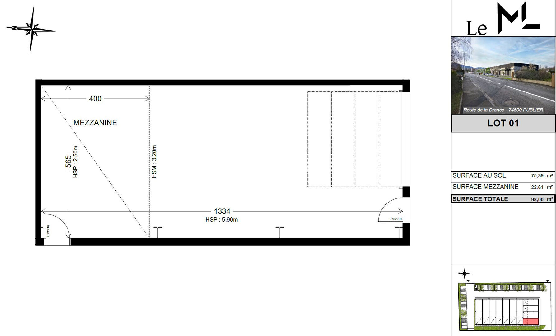
A LOUER PUBLIER / Amphion-les-Bains
POUR LES PROFESSIONNELS - Prix de la location : 1400€/ mois HT
LOT n°1: Entrepôt d'une surface de 82 m² + Mezzanine 23m² (soit 105 m² au total).
Les locaux sont livrés Brut de finitions et d'aménagements intérieurs.
Livré et disponible de suite.
Hauteur sous plafond 5.90 m et porte sectionnelle motorisé.
Localisation attractive de la Plaine d'Amphion-les-Bains en zone artisanale.
POUR LES PROFESSIONNELS - Prix de la location : 1400€/ mois HT
LOT n°1: Entrepôt d'une surface de 82 m² + Mezzanine 23m² (soit 105 m² au total).
Les locaux sont livrés Brut de finitions et d'aménagements intérieurs.
Livré et disponible de suite.
Hauteur sous plafond 5.90 m et porte sectionnelle motorisé.
Localisation attractive de la Plaine d'Amphion-les-Bains en zone artisanale.
Loyer hors charges 1 350,00 € par mois, provision charges 50,00 € par mois, loyer charges comprises 1 400,00 € par mois
Dépôt de garantie : 1 400,00 €
1 350,00 € HT par mois*
Référence web : 21669494
Référence Agence : 2829
Référence Agence : 2829
Performance énergétique
DPE NON SOUMIS
A propos de l'agence
Horaires d'ouverture de l'agence
Lundi
14:00 -
18:00
Mardi
09:00 -
12:00
·
14:00 -
19:00
Mercredi
09:00 -
12:00
·
14:00 -
19:00
Jeudi
09:00 -
12:00
·
14:00 -
19:00
Vendredi
09:00 -
12:00
·
14:00 -
19:00
Samedi
09:00 -
12:00
Dimanche
Fermé