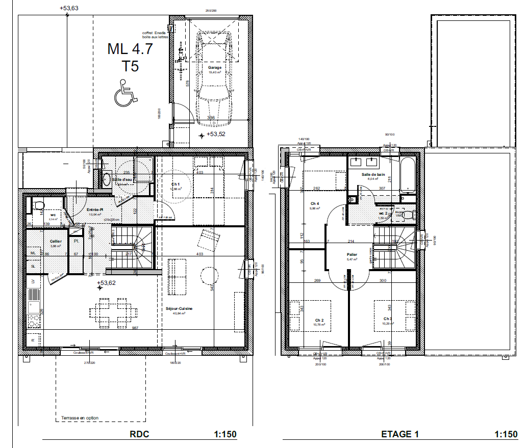
Laforêt vous propose un programme neuf dans la commune de LAIZE-CLINCHAMPS à 8mn du périphérique de Caen, une maison T4 basse consommation avec jardin comprenant au rez-de-chaussée : une entrée, avec placard, un séjour cuisine ouvrant sur le jardin, une chambre, un cellier, une salle d'eau, un WC. A l'étage, un palier desservant 3 chambres, une salle de bains et un WC. Un garage de 19.40 m² complète ce bien. Très bon niveau d'équipement, finitions peintures et sols en option.
Honoraires à la charge du vendeur
Agence Laforêt Villers-sur-Mer
ACT'IN+ Laforêt VILLERS SUR MER
Capital social : 1500 €
Siège social : 14 rue du Maréchal Leclerc 14640 VILLERS-SUR-MER
Carte(s) professionnelle(s) n° 1402 2018 000 027 814 délivré par CCI SeIne Estuaire
N° TVA intra-communautaire : FR66805209822
Activité(s) : Transaction immobilière, Location immobilière, Immobilier d'entreprise, Locaux commerciaux, Fonds de commerce
Ne peut percevoir d'autres fonds, effets ou valeurs que ceux représentatifs de sa rémunération.
Chaque agence est une entité juridiquement et financièrement indépendante.
Les informations que je consens transmettre à partir de ce formulaire
sont indispensables afin d'être recontacté. Elles sont destinées à
Laforêt France et sont conservées 3 ans. Je dispose du droit de demander
l'accès, la rectification, la portabilité ou l'effacement de mes données
mais également la limitation ou l'opposition au traitement de celles-ci,
ainsi que la liste de leurs destinataires, au délégué à la protection
des données (donneespersonnelles@laforet.com). Je peux introduire à tout
moment une réclamation auprès de la CNIL et définir le sort de mes
données après ma mort. Pour plus d'informations, je peux me reporter à
la politique de confidentialité.