Maison T6 Avrillé à vendre

1 / 16

395 290 €

A partir de ... € / mois

151 m² • 6 pièces • 5 chambres

Caractéristiques

Surface et espace de vie

6 pièces
Surface : 151 m²
Surf. terrain : 518 m²
5 chbres
1 salle de bain
2 salles d'eau

Intérieur

Cuisine Aménagée/équipée
Chauffage Gaz de ville
Terrasse

Extérieur

Extérieur

Description

Avrillé - Parc de la Haye
Environnement exceptionnel pour cette belle maison familiale !

Située dans un secteur privilégié, venez découvrir cette jolie maison parfaite pour accueillir une famille.
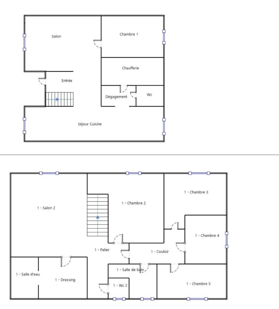
Elle est composée au rez de chaussée d'une entrée ouverte sur un salon cosy, d'une cuisine aménagée équipée ouverte sur le séjour parfaite pour passer des moments conviviaux. Une chambre, une chaufferie ainsi qu'un wc viennent compléter ce niveau.
À l'étage un second salon offre un bel espace détente, suivi d'un espace nuit composé de quatre chambres, une salle de bains avec douche et baignoire, un wc ainsi qu'un dressing attenant à une salle d'eau.
Véritable espace de vie extérieur, le jardin fera le bonheur de tous : les enfants s'y amuseront en toute liberté et les adultes apprécieront les repas conviviaux entre amis sur la terrasse !

Contactez-nous pour plus d'informations et réaliser la visite virtuelle de ce bien, nous serons ravis de vous accompagner dans ce projet.
Honoraires de rédaction d'acte de 490e inclus dans le prix de vente affiché.

Depuis 2010, notre enseigne élue n° 1 de la confiance des Français est votre agence immobilière référente pour la vente, l'achat, l'estimation, la location et la gestion locative de maisons, appartements, terrains et immeubles sur Angers et sa région.
Où intervenons-nous ?
Angers intra-muros : Centre-Ville, Lafayette-Éblé, Madeleine-Saint-Léonard, Roseraie, Deux-Croix Banchais, Montplaisir, Saint-Serge-Ney-Chalouère, Doutre, Hauts-de-Saint-Aubin, Camus, Belle-Beille, Saint-Jacques-Nazareth, Lac de Maine.
Première couronne : Beaucouzé, Bouchemaine, Saint-Léger-de-Linières, Avrillé, Montreuil-Juigné, Écouflant, Saint-Sylvain-d'Anjou, Saint-Barthélemy-d'Anjou, Trélazé, Les Ponts-de-Cé.
Communes voisines : Briollay, Feneu, Le Lion-d'Angers, Tiercé, Seiches-sur-le-Loir, Durtal, Le Plessis-Grammoire, Loire-Authion, Mûrs-Érigné, Sainte-Melaine-sur-Aubance, Brissac-Loire-Aubance, Saint-Martin-du-Fouilloux, Saint-Lambert-la-Potherie.
Pourquoi nous choisir ?
Réseau national de +700 agences, visibilité maximale sur plus de 50 portails immobiliers.
Outils exclusifs Favoriz, estimation en ligne, visites virtuelles 360°, home-staging virtuel, signature électronique et suivi en temps réel.
Une équipe locale formée en transaction, location et gestion, prête à booster votre projet immobilier et votre patrimoine locatif en toute sécurité et sérénité.
Contactez-nous dès aujourd'hui pour profiter de notre expertise locale et concrétiser votre projet immobilier sur l'Anjou !

Honoraires à la charge du vendeur

Référence web : 52373562
Référence Agence : 4112

Performance énergétique

DPE 2021

Les coûts sont estimés en fonction des caractéristiques de votre logement et pour une utilisation standard. Montant estimé des dépenses annuelles d'énergie pour un usage standard entre 2 650,00 € et 3 640,00 € indexées aux années 2021, 2022 et 2023 (abonnement compris).

Les informations sur les risques auxquels ce bien est exposé sont disponibles sur le site Géorisques : https://www.georisques.gouv.fr.

Simulateur de crédit immobilier

A propos de l'agence

Agence Laforêt ANGERS

1 rue du Haras, 49100 Angers

Téléphone

Horaires d'ouverture de l'agence

 Lundi 9:30 - 12:30 · 14:00 - 18:30
 Mardi 9:30 - 12:30 · 14:00 - 18:30
 Mercredi 9:30 - 12:30 · 14:00 - 18:30
 Jeudi 9:30 - 12:30 · 14:00 - 18:30
 Vendredi 9:30 - 12:30 · 14:00 - 18:30
 Samedi 10:00 - 12:30
 Dimanche Fermé

Aux alentours

Appeler