Appartement T4 Boulogne-Billancourt à vendre

Nouveauté
1 / 4

1 090 000 €

A partir de ... € / mois

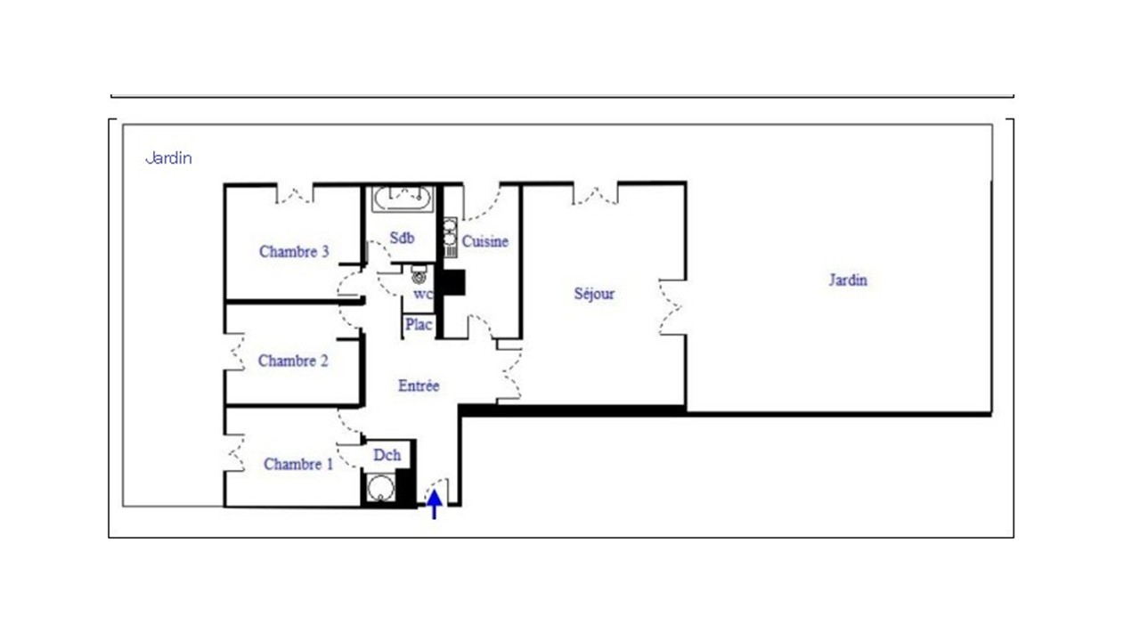
120 m² • 4 pièces • 3 chambres

Caractéristiques

Surface et espace de vie

4 pièces
Surface : 120 m²
Surf. séj : 30 m²
3 chbres
1 salle de bain
1 salle d'eau

Intérieur

Cuisine Indépendante
Chauffage Gaz
Ascenseur
Terrasse
1 cave

Extérieur

Parking

Autres

Ann. const. : 1990
Accès handicapé
Soumis à la copropriété
Nb lots copro : 80
Charges mensuelles copro : 457 €

Description

Boulogne Nord Marmottan - Escudier - Métro Jean Jaurès
Rare - Jardin 116m² - exposé Sud - au calme - sans vis à vis
Belle copropriété recherchée de 1990 avec gardien- appartement de 4 pièces de 91m² (loi carrez) avec un jardin et terrasse de 116 m² en jouissance privative.
Toutes les pièces donnent sur le jardin, l'appartement (plan étoile) comprenant : une galerie d'entrée avec placard, un séjour de 30m², une cuisine séparée, équipée, aménagée de 9m², 3 chambres (dont une chambre ayant sa propre salle de douche), une salle de bain avec WC, et un WC séparée.

Bien proposé par Maxence Andrieu (RSAC n° 538844002) - Agent Commercial

Honoraires à la charge de l'acquéreur inclus : 3,81% soit 1 050 000,00 € honoraires exclus.

Montant moyen des charges annuelles : 5 484,00 €

Référence web : 52543174
Référence Agence : 89

Performance énergétique

DPE 2021

Les coûts sont estimés en fonction des caractéristiques de votre logement et pour une utilisation standard. Montant estimé des dépenses annuelles d'énergie pour un usage standard entre 1 300,00 € et 1 770,00 € indexées aux années 2021, 2022 et 2023 (abonnement compris).

Les informations sur les risques auxquels ce bien est exposé sont disponibles sur le site Géorisques : https://www.georisques.gouv.fr.

Simulateur de crédit immobilier

A propos de l'agence

Agence Laforêt BOULOGNE NORD

54 Boulevard Jean Jaurès, 92100 BOULOGNE-BILLANCOURT

Téléphone

Horaires d'ouverture de l'agence

 Lundi 09:30 - 13:00 · 14:00 - 19:00
 Mardi 09:30 - 13:00 · 14:00 - 19:00
 Mercredi 09:30 - 13:00 · 14:00 - 19:00
 Jeudi 09:30 - 13:00 · 14:00 - 19:00
 Vendredi 09:30 - 13:00 · 14:00 - 19:00
 Samedi 10:00 - 18:00
 Dimanche Fermé

Aux alentours

Appeler