Maison T4 près de PONS à vendre

Favoriz
1 / 18

200 700 €

A partir de ... € / mois

103 m² • 4 pièces • 3 chambres

Caractéristiques

Surface et espace de vie

4 pièces
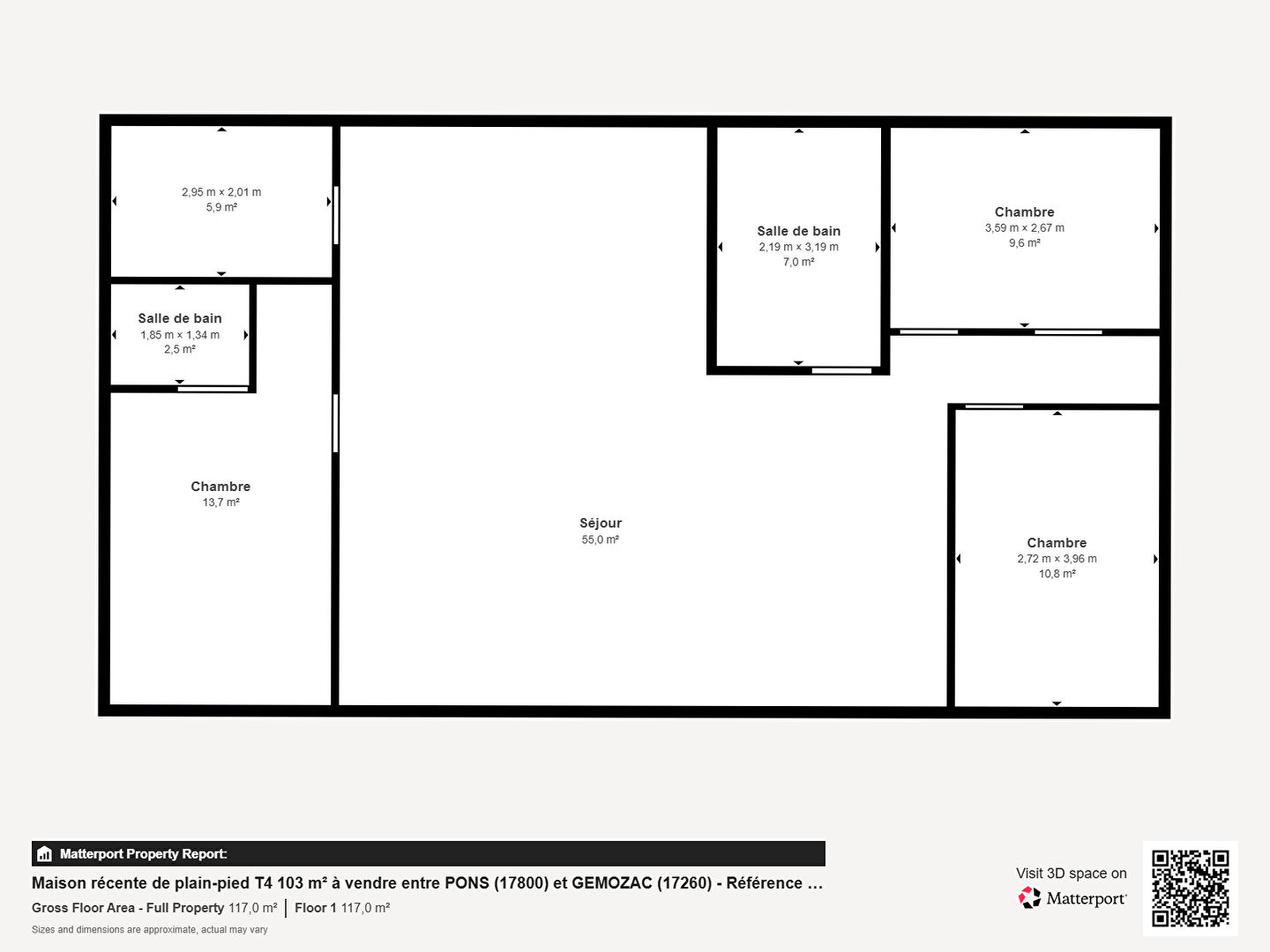
Surface : 103 m²
Surf. terrain : 679 m²
Surf. séj : 40 m²
3 chbres
2 salles d'eau

Intérieur

Chauffage Electrique

Autres

Ann. const. : 2024

Description

Maison récente de plain-pied T4 de 103 m² à vendre dans le triangle SAINTES (17100), PONS (17800) et de GEMOZAC (17260) - Réf. 4112

Visite immersive disponible pour une première découverte en 3D, une visite virtuelle immersive est proposée. Il suffit de contacter notre agence pour obtenir le mot de passe de connexion.

À vendre : maison individuelle de plain-pied construite en 2024, située à JAZENNES (17260), dans un environnement résidentiel calme, à seulement 5 km de PONS (17800), 8 km de GEMOZAC (17260), 20 km de SAINTES (17100) et à 3,5 km de l'accès autoroutier A10. Ce bien immobilier bénéficie d'une localisation stratégique, à proximité des commerces, écoles et services.

Caractéristiques principales :

Surface habitable : 103 m²

Terrain clos : 679 m² avec accès véhicules

Type : Maison T4 de plain-pied

Année de construction : 2024

Exposition : Sud-est, séjour lumineux

Agencement intérieur :

Pièce de vie spacieuse de 52 m² avec cuisine américaine aménagée et équipée

Trois chambres, dont une suite parentale avec salle d'eau privative et WC

Deux salles d'eau au total, avec possibilité d'installation d'une baignoire

Deux WC indépendants

Confort et équipements :

Chauffage électrique par radiateurs à inertie

Production d'eau chaude par ballon électrique

Menuiseries en PVC double vitrage

Volets roulants électriques

Assainissement individuel conforme (fosse toutes eaux)

Atouts supplémentaires :

Maison lumineuse et en excellent état général

Terrain entièrement clos, idéal pour stationner plusieurs véhicules

Environnement paisible entre SAINTES, PONS et GEMOZAC

Ce bien immobilier est proposé en exclusivité par l'agence Laforêt GEMOZAC, sous mandat FAVORIZ. Idéal pour une famille en quête de confort, de modernité et de tranquillité, à proximité des grands axes et des commodités.

Contactez-nous dès maintenant pour organiser une visite ou accéder à la visite virtuelle 3D.

Retrouvez toutes nos annonces sur : www.laforet.com/gemozac

Honoraires à la charge de l'acquéreur inclus : 5,63% soit 190 000,00 € honoraires exclus.

Référence web : 22647544
Référence Agence : 4112

Vidéo et 3D

Performance énergétique

DPE 2021

Les coûts sont estimés en fonction des caractéristiques de votre logement et pour une utilisation standard. Montant estimé des dépenses annuelles d'énergie pour un usage standard entre 1 440,00 € et 1 990,00 € indexées aux années 2021, 2022 et 2023 (abonnement compris).

Les informations sur les risques auxquels ce bien est exposé sont disponibles sur le site Géorisques : https://www.georisques.gouv.fr.

Simulateur de crédit immobilier

A propos de l'agence

Agence Laforêt GEMOZAC

Zone Artisanale Pied Sec, 17260 Gémozac

Téléphone

Horaires d'ouverture de l'agence

 Lundi 09:30 - 12:30 · 14:00 - 18:00
 Mardi 0930 - 12:30 · 14:00 - 18:00
 Mercredi 09:30 - 12:30 · 14:00 - 18:00
 Jeudi 09:30 - 12:30 · 14:00 - 18:00
 Vendredi 09:30 - 12:30 · 14:00 - 18:00
 Samedi 09:30 - 12:30
 Dimanche Fermé

Aux alentours

Appeler