Appartement T1 Paris 10 à vendre

Favoriz
1 / 8

328 600 €

A partir de ... € / mois

29 m² • 1 pièce • 1 chambre

Caractéristiques

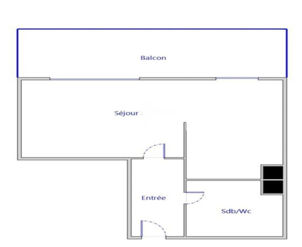
Surface et espace de vie

1 pièce
Surface : 29.13 m²
1 chbre
1 salle de bain

Intérieur

Cuisine Ouverte
Chauffage Electrique
Ascenseur
Balcon
1 cave

Autres

Soumis à la copropriété
Nb lots copro : 371

Description

Canal Saint Martin / quai de Jemappes - rue Bichat
Nous vous proposons dans la résidence Grancanal un studio en étage élevé ouvrant sur un grand balcon ensoleillé comprenant, entrée avec rangements, séjour exposé sud-ouest, cuisine ouverte, salle de bain WC. Une cave complète ce bien.
L'appartement est vendu loué.



vendu loué

Honoraires à la charge de l'acquéreur inclus : 6% soit 310 000,00 € honoraires exclus.

Montant moyen des charges annuelles : 1 360,00 €

Référence web : 52333440
Référence Agence : 1372

Performance énergétique

DPE 2021

Les coûts sont estimés en fonction des caractéristiques de votre logement et pour une utilisation standard. Montant estimé des dépenses annuelles d'énergie pour un usage standard entre 990,00 € et 1 380,00 € indexées aux années 2021, 2022 et 2023 (abonnement compris).

Les informations sur les risques auxquels ce bien est exposé sont disponibles sur le site Géorisques : https://www.georisques.gouv.fr.

Simulateur de crédit immobilier

A propos de l'agence

Agence Laforêt NEUILLY SUR SEINE

20 rue de Chartres, 92200 Neuilly-sur-Seine

Téléphone

Horaires d'ouverture de l'agence

 Lundi 09:30 - 19:00
 Mardi 09:30 - 19:00
 Mercredi 09:00 - 19:00
 Jeudi 09:30 - 19:00
 Vendredi 09:30 - 19:00
 Samedi 09:30 - 19:00
 Dimanche Fermé

Aux alentours

Appeler