599 000 €
A partir de ... € / mois
89 m² • 4 pièces • 3 chambres
Caractéristiques
Surface et espace de vie
4 pièces
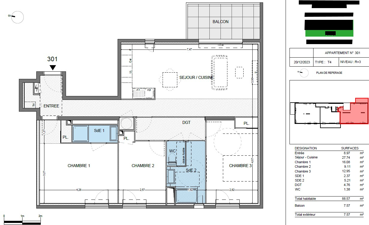
Surface : 88.57 m²
3 chbres
Autres
Nb lots copro : 15
Description
PROGRAMME NEUF-LIVRAISON MARS 2026
Corniche Sainte- Rosalie, à 10 minutes du centre-ville et à 15 minutes de la mer.
Au sein du quartier très calme Sainte-Rosalie-Arbre inférieur, nous vous proposons un T2 avec balcon dans une résidence intimiste de 15 appartements un emplacement privilégié à proximité des transports, des écoles, collège et lycée,
Au troisième et dernier étage avec ascenseur, appartement de quatre pièces composé d'un séjour avec cuisine de 27 M² donnant sur le balcon de 7,57 M², deux chambres de 9 et 12,95 M² avec une salle d'eau et WC indépendant et une suite parentale de 18 M² avec salle d'eau privative.
POSSIBILITE DE PARKING EN SUS (26 000 €)
Contactez le 0757176898 pour toute demande d'information
Vous pouvez consulter l'état des risques et pollution sur ce site : www.georisques.gouv.fr. Les informations sur les risques auxquels ce bien est exposé sont disponibles sur le site Géorisques
Siham BOUZERA, agent commercial, inscrit au Registre spécial des Agents commerciaux sous le numéro 932 791 445.
Corniche Sainte- Rosalie, à 10 minutes du centre-ville et à 15 minutes de la mer.
Au sein du quartier très calme Sainte-Rosalie-Arbre inférieur, nous vous proposons un T2 avec balcon dans une résidence intimiste de 15 appartements un emplacement privilégié à proximité des transports, des écoles, collège et lycée,
Au troisième et dernier étage avec ascenseur, appartement de quatre pièces composé d'un séjour avec cuisine de 27 M² donnant sur le balcon de 7,57 M², deux chambres de 9 et 12,95 M² avec une salle d'eau et WC indépendant et une suite parentale de 18 M² avec salle d'eau privative.
POSSIBILITE DE PARKING EN SUS (26 000 €)
Contactez le 0757176898 pour toute demande d'information
Vous pouvez consulter l'état des risques et pollution sur ce site : www.georisques.gouv.fr. Les informations sur les risques auxquels ce bien est exposé sont disponibles sur le site Géorisques
Siham BOUZERA, agent commercial, inscrit au Registre spécial des Agents commerciaux sous le numéro 932 791 445.
Honoraires à la charge du vendeur
Référence web : 52534549
Référence Agence : 1973
Référence Agence : 1973
Performance énergétique
DPE NON SOUMIS
Simulateur de crédit immobilier
A propos de l'agence
Horaires d'ouverture de l'agence
Lundi
09:00 -
12:00
·
14:00 -
19:00
Mardi
09:00 -
12:00
·
14:00 -
19:00
Mercredi
09:00 -
12:00
·
14:00 -
19:00
Jeudi
09:00 -
12:00
·
14:00 -
19:00
Vendredi
09:00 -
12:00
·
14:00 -
19:00
Samedi
09:00 -
12:00
·
14:00 -
19:00
Dimanche
Fermé