119 000 € HT HC
A partir de ... € / mois
107 m²
Caractéristiques
Surface et espace de vie
Surface : 107 m²
Autres
Soumis à la copropriété
Nb lots copro : 2
Description
- Nouvelle exclusivité -
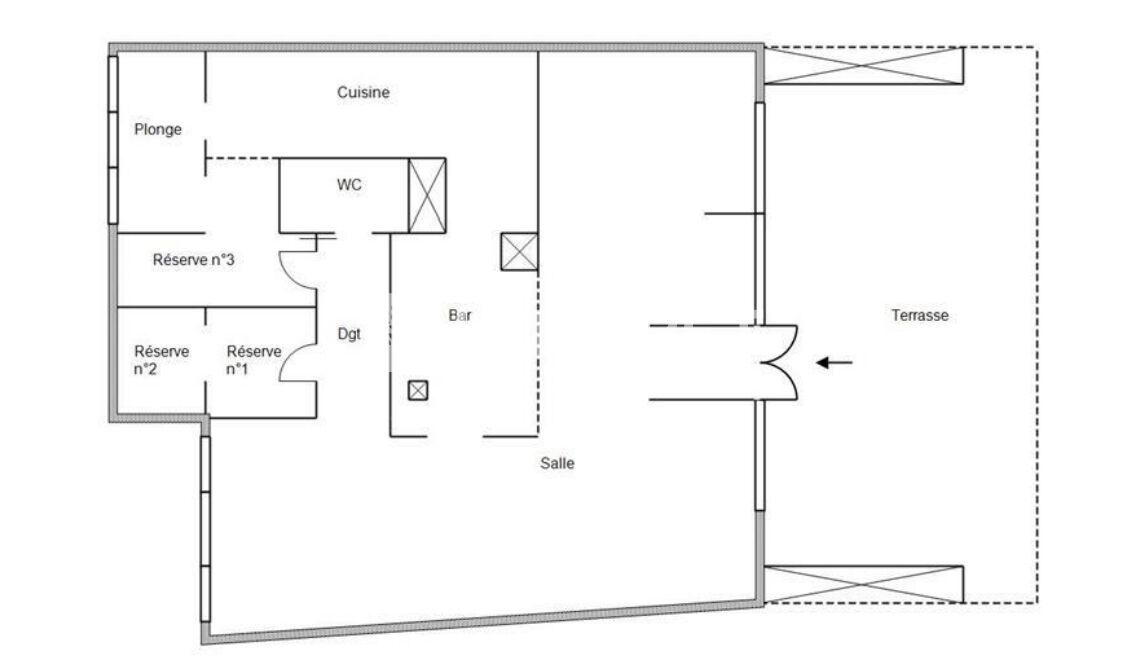
À découvrir, local commercial d'une surface totale de 107 m2 vendu loué.
Le bien se compose d'une salle spacieuse de 62 m² donnant sur une terrasse de 45 m2, d'un bar, d'une cuisine ainsi que d'un espace plonge.
Trois réserves viennent compléter l'ensemble, permettant un stockage optimisé, ainsi qu'un dégagement et un WC.
L'agencement est cohérent et pensé pour une exploitation efficace au quotidien.
Le loyer mensuel est fixé à 730€ /mois et offre une excellente rentabilité, avec un bail en cours jusqu'au 31 décembre 2032.
A visiter sans tarder.
À découvrir, local commercial d'une surface totale de 107 m2 vendu loué.
Le bien se compose d'une salle spacieuse de 62 m² donnant sur une terrasse de 45 m2, d'un bar, d'une cuisine ainsi que d'un espace plonge.
Trois réserves viennent compléter l'ensemble, permettant un stockage optimisé, ainsi qu'un dégagement et un WC.
L'agencement est cohérent et pensé pour une exploitation efficace au quotidien.
Le loyer mensuel est fixé à 730€ /mois et offre une excellente rentabilité, avec un bail en cours jusqu'au 31 décembre 2032.
A visiter sans tarder.
Honoraires à la charge du vendeur
Référence web : 52531386
Référence Agence : 1592
Référence Agence : 1592
Performance énergétique
Les coûts sont estimés en fonction des caractéristiques de votre logement et pour une utilisation standard. Montant estimé des dépenses annuelles d'énergie pour un usage standard entre - et - indexées aux années 2021, 2022 et 2023 (abonnement compris).
Les informations sur les risques auxquels ce bien est exposé sont disponibles sur le site Géorisques : https://www.georisques.gouv.fr.
Simulateur de crédit immobilier
A propos de l'agence
Horaires d'ouverture de l'agence
Lundi
09:30 -
12:30
·
14:00 -
18:00
Mardi
09:30 -
12:30
·
14:00 -
18:00
Mercredi
09:30 -
12:30
·
14:00 -
18:00
Jeudi
09:30 -
12:30
·
14:00 -
18:00
Vendredi
09:30 -
12:30
·
14:00 -
18:00
Samedi
Fermé
Dimanche
Fermé