Appartement T3 Bondy à vendre

Favoriz
1 / 12

130 000 €

A partir de ... € / mois

58 m² • 3 pièces • 2 chambres

Caractéristiques

Surface et espace de vie

3 pièces
Surface : 57.54 m²
2 chbres
1 salle de bain

Intérieur

Cuisine Aménagée

Autres

Ann. const. : 1960
Soumis à la copropriété
Charges mensuelles copro : 259 €

Description

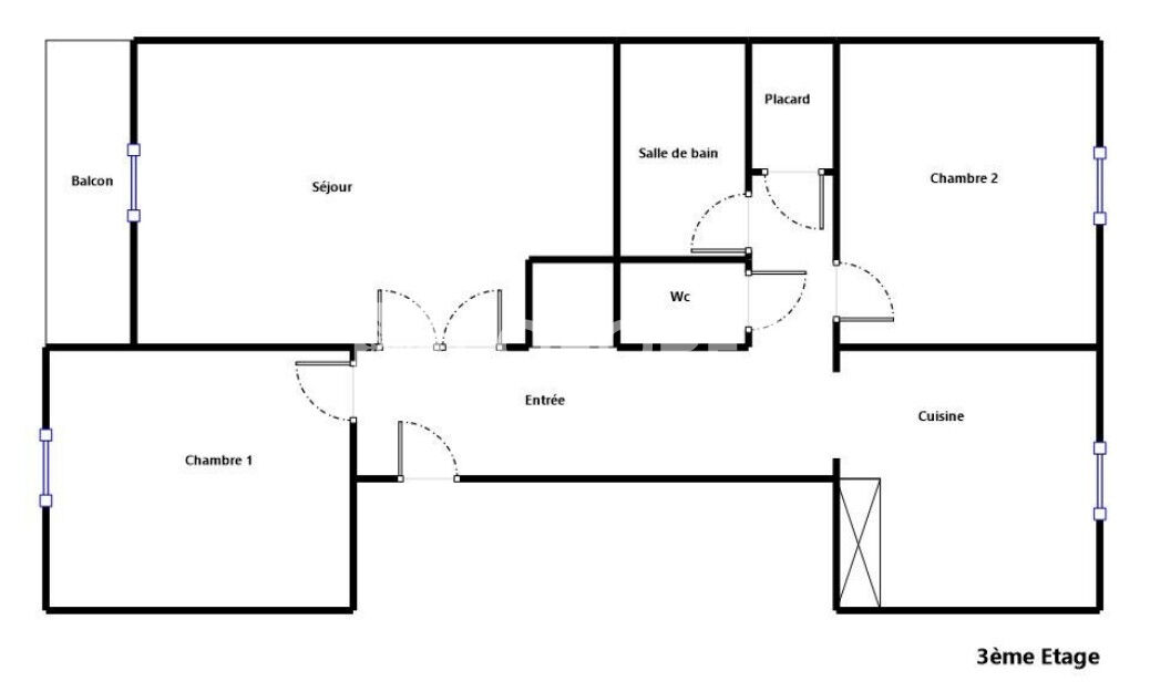
Au sein d'une résidence calme et arborée, appartement comprenant: entrée, séjour donnant sur balcon, deux chambres, cuisine aménagée, salle de bains, wc, placards.
Cave et parking.

Honoraires à la charge du vendeur

Montant moyen des charges annuelles : 3 200,00 €

Référence web : 22529277
Référence Agence : 5143

Performance énergétique

DPE 2021

Les coûts sont estimés en fonction des caractéristiques de votre logement et pour une utilisation standard. Montant estimé des dépenses annuelles d'énergie pour un usage standard entre 1 060,00 € et 1 470,00 € indexées aux années 2021, 2022 et 2023 (abonnement compris).

Les informations sur les risques auxquels ce bien est exposé sont disponibles sur le site Géorisques : https://www.georisques.gouv.fr.

Simulateur de crédit immobilier

A propos de l'agence

Agence Laforêt VILLEMOMBLE

31 avenue Outrebon, 93250 Villemomble

Téléphone

Horaires d'ouverture de l'agence

 Lundi 9:30 - 12:30 · 14: - 18:
 Mardi 9:30 - 12:30 · 14: - 18:30
 Mercredi 9:30 - 12:30 · 14: - 18:30
 Jeudi 9:30 - 12:30 · 14: - 18:30
 Vendredi 9:30 - 12:30 · 14: - 18:30
 Samedi 9:30 - 12:30 · 14: - 18:
 Dimanche Fermé

Aux alentours

Appeler