490 000 €
A partir de ... € / mois
220 m² • 8 pièces • 5 chambres
Caractéristiques
Surface et espace de vie
8 pièces
Surface : 220 m²
Surf. terrain : 585 m²
5 chbres
1 salle de bain
3 salles d'eau
Intérieur
Chauffage Gaz
Terrasse
Cheminée
1 cave
Garage
Extérieur
Parking
GarageFerme, Extérieur
Description
A LA LIMITE DU RAINCY sur le secteur du plateau/Les limites.
ENSEMBLE IMMOBILIER composé d'une MAISON principale d'environ 120 m2 et d'un IMMEUBLE abritant un GARAGE (33m2) et 2 APPARTEMENTS dont un à usage commercial (3P de 67 m2 et 2 pièces de 37m2). Le tout sur un terrain de 585 m2.
Chacun possède son propre compteur électrique, gaz et eau.
Dans un cadre verdoyant et paisible, la maison principale se compose au RDC d'une entrée, cuisine, double séjour, véranda, bureau et WC.
A l'étage, palier, 2 chambres dont une avec salle de bains privative, salle d'eau + WC.
Sous-sol total et 2 petites annexes côté jardin.
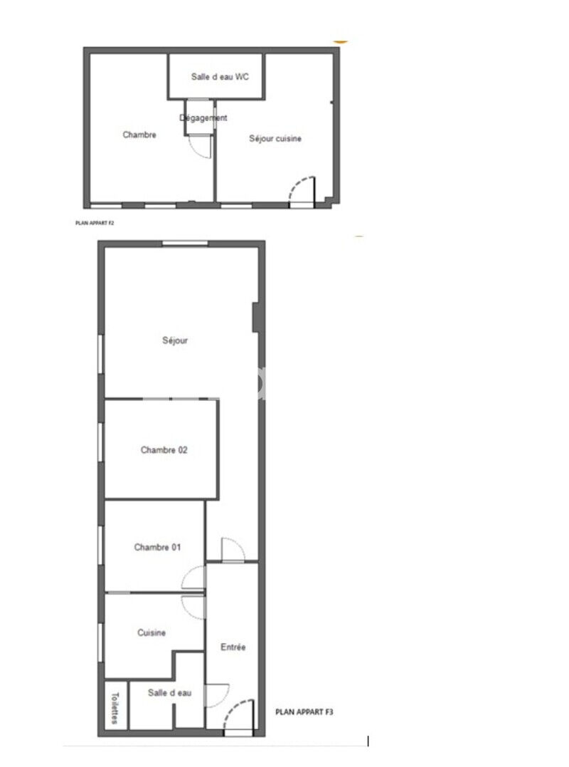
Dans l'immeuble sur le devant du terrain, un appartement de type F2 au rdc actuellement loué 665€ CC .
A l'étage, appartement de type F3 à usage commercial (bureau).
Tous les deux sont classés D dans le diagnostic de performance énergétique, idéal pour la location.
De nombreuses possibilités s'offrent à cet ensemble immobilier et différents types de profil acquéreurs: investisseurs, grande famille ou artisan qui souhaiterait installer ses bureaux et son stock à son domicile.
A proximité, commerces du rond-point de Montfermeil du Raincy.
ENSEMBLE IMMOBILIER composé d'une MAISON principale d'environ 120 m2 et d'un IMMEUBLE abritant un GARAGE (33m2) et 2 APPARTEMENTS dont un à usage commercial (3P de 67 m2 et 2 pièces de 37m2). Le tout sur un terrain de 585 m2.
Chacun possède son propre compteur électrique, gaz et eau.
Dans un cadre verdoyant et paisible, la maison principale se compose au RDC d'une entrée, cuisine, double séjour, véranda, bureau et WC.
A l'étage, palier, 2 chambres dont une avec salle de bains privative, salle d'eau + WC.
Sous-sol total et 2 petites annexes côté jardin.
Dans l'immeuble sur le devant du terrain, un appartement de type F2 au rdc actuellement loué 665€ CC .
A l'étage, appartement de type F3 à usage commercial (bureau).
Tous les deux sont classés D dans le diagnostic de performance énergétique, idéal pour la location.
De nombreuses possibilités s'offrent à cet ensemble immobilier et différents types de profil acquéreurs: investisseurs, grande famille ou artisan qui souhaiterait installer ses bureaux et son stock à son domicile.
A proximité, commerces du rond-point de Montfermeil du Raincy.
Honoraires à la charge du vendeur
Référence web : 52509125
Référence Agence : 5840
Référence Agence : 5840
Performance énergétique
Les coûts sont estimés en fonction des caractéristiques de votre logement et pour une utilisation standard. Montant estimé des dépenses annuelles d'énergie pour un usage standard entre 2 590,00 € et 3 510,00 € indexées aux années 2021, 2022 et 2023 (abonnement compris).
Les informations sur les risques auxquels ce bien est exposé sont disponibles sur le site Géorisques : https://www.georisques.gouv.fr.
Simulateur de crédit immobilier
A propos de l'agence
Horaires d'ouverture de l'agence
Lundi
09:30 -
12:30
·
14: -
18:
Mardi
09:30 -
12:30
·
14: -
18:30
Mercredi
09:30 -
12:30
·
14: -
18:30
Jeudi
09:30 -
12:30
·
14: -
18:30
Vendredi
09:30 -
12:30
·
14: -
18:30
Samedi
09:30 -
12:30
·
14: -
18:
Dimanche
Fermé