Terrain Le Raincy à vendre

1 / 11

384 000 €

A partir de ... € / mois

468 m² • 1 lot

Caractéristiques

Surface et espace de vie

Surf. terrain : 468 m²

Intérieur

Cuisine Indépendante
Chauffage Gaz
1 cave
Sous-sol
Garage

Extérieur

Parking
Extérieur, GarageFerme

Autres

1
Ann. const. : 1893

Description

LE RAINCY secteur St Clotilde
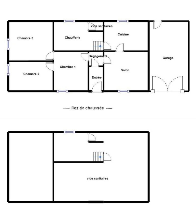
TERRAIN A BATIR sur une PARCELLE de 468m² avec une maison en bois à détruire comprenant une entrée, séjour, cuisine, 3chambres, chaufferie, wc, sous sol et GARAGE .
Façade d'environ 16.81m et une profondeur de 27.90m
Zone UC - Hauteur maximale de construction 9m
Viabilisé avec Electricité, gaz et eau
Proche écoles et commerces, à 19 minutes à pied de la gare RER du RAINCY

Honoraires à la charge du vendeur

Référence web : 52299548
Référence Agence : 5565

Performance énergétique

DPE 2021

Les coûts sont estimés en fonction des caractéristiques de votre logement et pour une utilisation standard. Montant estimé des dépenses annuelles d'énergie pour un usage standard entre 3 130,00 € et 4 290,00 € indexées aux années 2021, 2022 et 2023 (abonnement compris).

Logement à consommation énergétique excessive.

Les informations sur les risques auxquels ce bien est exposé sont disponibles sur le site Géorisques : https://www.georisques.gouv.fr.

Simulateur de crédit immobilier

A propos de l'agence

Agence Laforêt VILLEMOMBLE

31 avenue Outrebon, 93250 Villemomble

Téléphone

Horaires d'ouverture de l'agence

 Lundi 9:30 - 12:30 · 14: - 18:
 Mardi 9:30 - 12:30 · 14: - 18:30
 Mercredi 9:30 - 12:30 · 14: - 18:30
 Jeudi 9:30 - 12:30 · 14: - 18:30
 Vendredi 9:30 - 12:30 · 14: - 18:30
 Samedi 9:30 - 12:30 · 14: - 18:
 Dimanche Fermé

Aux alentours

Appeler