Appartement T2 Villemomble à vendre

Favoriz
1 / 8

197 000 €

A partir de ... € / mois

56 m² • 2 pièces • 1 chambre

Caractéristiques

Surface et espace de vie

2 pièces
Surface : 56.2 m²
1 chbre
1 salle de bain

Intérieur

Cuisine Aménagée/équipée
Chauffage Gaz
1 cave

Extérieur

Parking
SousSol

Autres

Ann. const. : 1970
Soumis à la copropriété
Nb lots copro : 72
Charges mensuelles copro : 210 €

Description

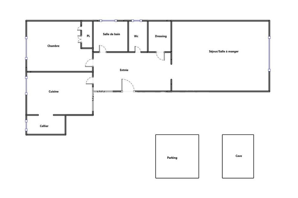
Bas du plateau d'Avron. Laforêt vous propose ce spacieux et bel appartement de 56 m² situé au 3eme étage d'une belle résidence arborée comprenant entrée, séjour, cuisine, arrière cuisine, chambre, dressing, salle de bains et WC séparés. Une place de parking en sous-sol et une cave complètent ce bien.

Honoraires à la charge du vendeur

Montant moyen des charges annuelles : 2 700,00 €

Référence web : 22465620
Référence Agence : 5099

Performance énergétique

DPE 2021

Les coûts sont estimés en fonction des caractéristiques de votre logement et pour une utilisation standard. Montant estimé des dépenses annuelles d'énergie pour un usage standard entre 1 830,00 € et 2 330,00 € indexées aux années 2021, 2022 et 2023 (abonnement compris).

Logement à consommation énergétique excessive.

Les informations sur les risques auxquels ce bien est exposé sont disponibles sur le site Géorisques : https://www.georisques.gouv.fr.

Simulateur de crédit immobilier

A propos de l'agence

Agence Laforêt VILLEMOMBLE

31 avenue Outrebon, 93250 VILLEMOMBLE

Téléphone

Horaires d'ouverture de l'agence

 Lundi 09:30 - 12:30 · 14: - 18:
 Mardi 09:30 - 12:30 · 14: - 18:30
 Mercredi 09:30 - 12:30 · 14: - 18:30
 Jeudi 09:30 - 12:30 · 14: - 18:30
 Vendredi 09:30 - 12:30 · 14: - 18:30
 Samedi 09:30 - 12:30 · 14: - 18:
 Dimanche Fermé

Aux alentours

Appeler