686 000 €
A partir de ... € / mois
160 m² • 6 pièces • 4 chambres
Caractéristiques
Surface et espace de vie
6 pièces
Surface : 160 m²
Surf. terrain : 500 m²
4 chbres
1 salle de bain
1 salle d'eau
Intérieur
Cuisine Indépendante
Chauffage Pompe à chaleur
Terrasse
Cheminée
1 cave
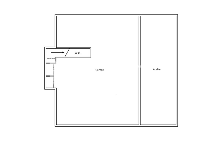
Sous-sol
Garage
Extérieur
GarageFerme
Autres
Ann. const. : 1992
Description
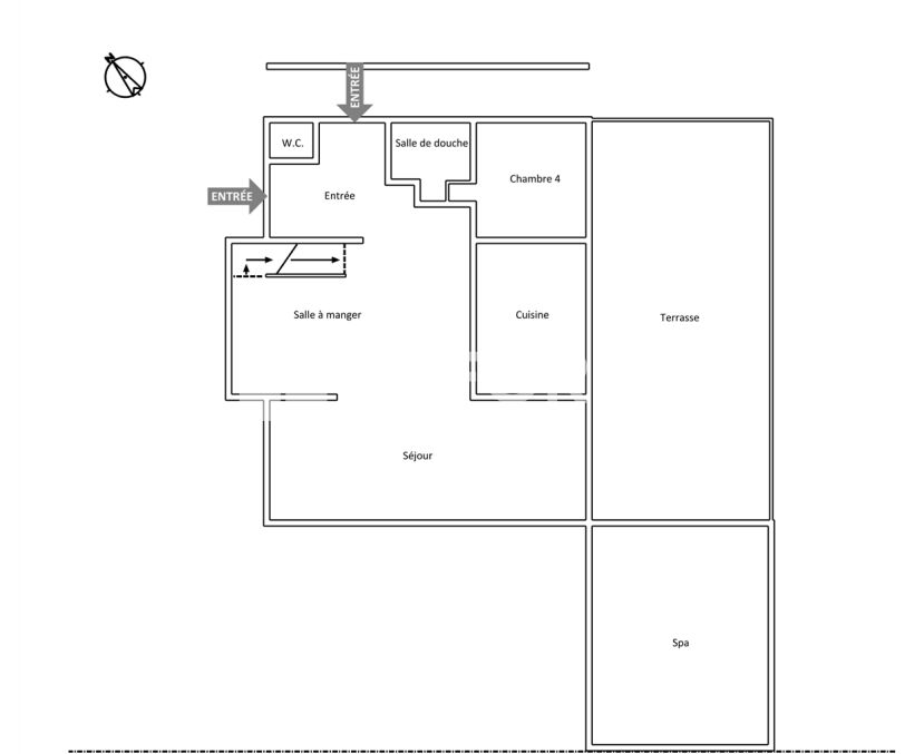
Votre agence LAFORÊT, leader à Vitry-sur-Seine depuis 25 ans et N°1 de la confiance depuis 15 ans, vous propose dans le quartier calme et pavillonnaire des Coteaux-Malassis, proche des écoles, des commerces et à seulement 3 minutes à pied du T9 et du futur métro 15, cette maison familiale qui propose une organisation pratique du quotidien. Au rez-de-chaussée, l'entrée mène à une cuisine aménagée et équipée avec verrière donnant sur la salle à manger et le séjour qui forment ensemble un bel espace de vie d'environ 51 m², lumineux et agréable à vivre. Une chambre avec sa salle d'eau et un WC se trouve également à ce niveau.
À l'étage, le palier en mezzanine sert de coin bureau ou d'espace détente et distribue trois chambres ainsi qu'une salle de bains avec baignoire et douche plus un w.c.
La maison est élevée sur un sous-sol total avec un grand garage, offrant de nombreuses possibilités de rangement ou d'aménagement, ainsi que d'une véranda d'environ 19 m² qui permet de profiter du jardin tout au long de l'année.
Ce bien fonctionnel et idéalement situé constitue un cadre parfait.
Contactez-nous!
À l'étage, le palier en mezzanine sert de coin bureau ou d'espace détente et distribue trois chambres ainsi qu'une salle de bains avec baignoire et douche plus un w.c.
La maison est élevée sur un sous-sol total avec un grand garage, offrant de nombreuses possibilités de rangement ou d'aménagement, ainsi que d'une véranda d'environ 19 m² qui permet de profiter du jardin tout au long de l'année.
Ce bien fonctionnel et idéalement situé constitue un cadre parfait.
Contactez-nous!
Honoraires à la charge du vendeur
Référence web : 52461841
Référence Agence : 4109
Référence Agence : 4109
Performance énergétique
Les coûts sont estimés en fonction des caractéristiques de votre logement et pour une utilisation standard. Montant estimé des dépenses annuelles d'énergie pour un usage standard entre 1 640,00 € et 2 260,00 € indexées aux années 2021, 2022 et 2023 (abonnement compris).
Les informations sur les risques auxquels ce bien est exposé sont disponibles sur le site Géorisques : https://www.georisques.gouv.fr.
Simulateur de crédit immobilier
A propos de l'agence
Horaires d'ouverture de l'agence
Lundi
14:00 -
18:00
Mardi
09:30 -
12:30
·
14:00 -
19:00
Mercredi
09:30 -
12:30
·
14:00 -
19:00
Jeudi
09:30 -
12:30
·
14:00 -
19:00
Vendredi
09:30 -
12:30
·
14:00 -
19:00
Samedi
09:30 -
12:30
·
14:00 -
18:00
Dimanche
Fermé