Appartement T4 Caluire-et-Cuire à vendre

1 / 15

400 000 €

A partir de ... € / mois

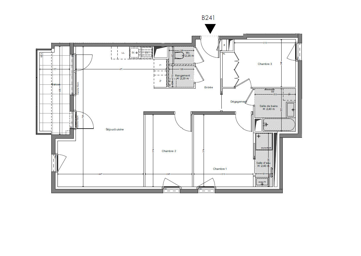
80 m² • 4 pièces • 3 chambres

Caractéristiques

Surface et espace de vie

4 pièces
Surface : 79.5 m²
Surf. séj : 33.3 m²
3 chbres
1 salle de bain
1 salle d'eau

Intérieur

Chauffage Gaz
Ascenseur
Balcon
Terrasse
Garage

Extérieur

GarageFerme

Autres

Ann. const. : 2021
Soumis à la copropriété
Nb lots copro : 76

Description

Construction de 2022, cet appartement T4 de 79,5 m² se situe au sein d'une résidence de standing, élégante et parfaitement entretenue. En retrait de la rue et niché en étage élevé, il offre un cadre de vie calme, lumineux et extrêmement confortable.
Il offre un séjour lumineux avec cuisine ouverte haut de gamme sur-mesure signée Les Cuisines d'Arnaud, donnant sur un balcon de 7 m² environ, trois chambres dont une suite parentale, une salle de bain, un WC séparé, une buanderie et de nombreux rangements.
Garage possible en sus.
Résidence récente, sécurisée, avec local à vélos, garantie décennale.
A visiter sans tarder !
Pour tout renseignement et contact Mélanie DAVRIL 07 87 35 73 27 LAFORET CROIX-ROUSSE.

Bien proposé par MELANIE DAVRIL (RSAC n° 795247626) - Agent Commercial

Honoraires à la charge du vendeur

Montant moyen des charges annuelles : 2 050,00 €

Référence web : 52349106
Référence Agence : 2637

Performance énergétique

DPE 2021

Les coûts sont estimés en fonction des caractéristiques de votre logement et pour une utilisation standard. Montant estimé des dépenses annuelles d'énergie pour un usage standard entre 518,00 € et 701,00 € indexées aux années 2021, 2022 et 2023 (abonnement compris).

Les informations sur les risques auxquels ce bien est exposé sont disponibles sur le site Géorisques : https://www.georisques.gouv.fr.

Simulateur de crédit immobilier

A propos de l'agence

Agence Laforêt LYON 4 CROIX-ROUSSE

37 Grande Rue de la Croix Rousse, 69004 Lyon 04

Téléphone

Horaires d'ouverture de l'agence

 Lundi 09:00 - 12:00 · 14:00 - 18:00
 Mardi 09:00 - 12:00 · 14:00 - 18:00
 Mercredi 09:00 - 12:00 · 14:00 - 18:00
 Jeudi 09:00 - 12:00 · 14:00 - 18:00
 Vendredi 09:00 - 12:00 · 14:00 - 18:00
 Samedi Fermé
 Dimanche Fermé

Aux alentours

Appeler