149 700 €
A partir de ... € / mois
61 m² • 3 pièces • 2 chambres
Caractéristiques
Surface et espace de vie
3 pièces
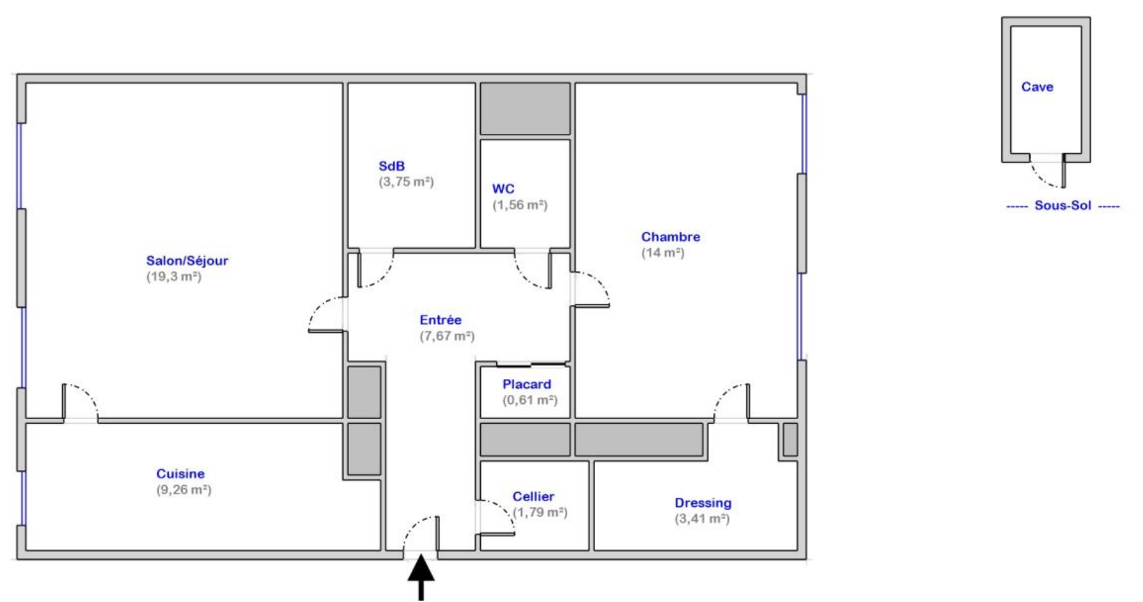
Surface : 61.35 m²
Surf. séj : 19.3 m²
2 chbres
1 salle de bain
Intérieur
Cuisine Indépendante
Chauffage Electrique
1 cave
Extérieur
1 place ext.
Extérieur
Autres
Soumis à la copropriété
Description
NANCY Centre -Quartier Gare : Au calme : Appartement traversant et lumineux en très bon état de 3 pièces -61.35 m2
ICI ET NULLE PART AILLEURS : Encore une exclusivité LAFORET Poincaré !
NANCY A Deux pas de la Gare !
Dans la très recherchée RESIDENCE DU GRAND VERGER rue Raymond Poincaré ,cet appartement en très bon état est lumineux et traversant : il est situé au 3ième et dernier étage et offre une vue dégagée .
Il dispose d'un bel espace jour avec parquet, d'une grande chambre lumineuse avec parquet également et d' une pièce dressing équipée, d'une cuisine indépendante équipée ainsi que d'une salle de bains équipée, d'un cellier aménagé, d'un WC séparé et de nombreux placards.
Il est à noter que le dressing et le cellier sont séparés d'une simple cloison et pourraient se transformer en une deuxième chambre au besoin.
Les murs de la copropriété sont en pierre de taille .
Les fenêtres en oscillo-battantes PVC ont été changées en 2020 : elles sont en double vitrages avec une lame d'argon de 16 mm à isolation renforcée et équipées de volets roulants en PVC.
Le chauffage individuel est électrique avec programmateur pièce par pièce et un ballon de 150 litres.
Le DPE est en D et B est passe facilement en C au besoin avec des travaux entre 2200 et 3400 euros.
Il n'y a pas d'amiante dans l'appartement.
Que demander de plus ?
Un parking privatif numéroté avec un portail télécommandé vous permettra de vous garer facilement
La résidence DU GRAND VERGER est très agréable avec ses espaces verts entretenus, elle est sécurisée et bénéficie des services d'un gardien.
Une cave saine privative vient compléter ce lot.
Pour de plus amples renseignements, merci de contacter sans tarder
votre agence LAFORET POINCARE au 03 83 25 02 00
ICI ET NULLE PART AILLEURS : Encore une exclusivité LAFORET Poincaré !
NANCY A Deux pas de la Gare !
Dans la très recherchée RESIDENCE DU GRAND VERGER rue Raymond Poincaré ,cet appartement en très bon état est lumineux et traversant : il est situé au 3ième et dernier étage et offre une vue dégagée .
Il dispose d'un bel espace jour avec parquet, d'une grande chambre lumineuse avec parquet également et d' une pièce dressing équipée, d'une cuisine indépendante équipée ainsi que d'une salle de bains équipée, d'un cellier aménagé, d'un WC séparé et de nombreux placards.
Il est à noter que le dressing et le cellier sont séparés d'une simple cloison et pourraient se transformer en une deuxième chambre au besoin.
Les murs de la copropriété sont en pierre de taille .
Les fenêtres en oscillo-battantes PVC ont été changées en 2020 : elles sont en double vitrages avec une lame d'argon de 16 mm à isolation renforcée et équipées de volets roulants en PVC.
Le chauffage individuel est électrique avec programmateur pièce par pièce et un ballon de 150 litres.
Le DPE est en D et B est passe facilement en C au besoin avec des travaux entre 2200 et 3400 euros.
Il n'y a pas d'amiante dans l'appartement.
Que demander de plus ?
Un parking privatif numéroté avec un portail télécommandé vous permettra de vous garer facilement
La résidence DU GRAND VERGER est très agréable avec ses espaces verts entretenus, elle est sécurisée et bénéficie des services d'un gardien.
Une cave saine privative vient compléter ce lot.
Pour de plus amples renseignements, merci de contacter sans tarder
votre agence LAFORET POINCARE au 03 83 25 02 00
Honoraires à la charge du vendeur
Référence web : 52414855
Référence Agence : 5491
Référence Agence : 5491
Performance énergétique
Les coûts sont estimés en fonction des caractéristiques de votre logement et pour une utilisation standard. Montant estimé des dépenses annuelles d'énergie pour un usage standard entre 1 260,00 € et 1 750,00 € indexées aux années 2021, 2022 et 2023 (abonnement compris).
Les informations sur les risques auxquels ce bien est exposé sont disponibles sur le site Géorisques : https://www.georisques.gouv.fr.
Simulateur de crédit immobilier
A propos de l'agence
Horaires d'ouverture de l'agence
Lundi
09:00 -
12:00
·
14:00 -
18:00
Mardi
09:00 -
12:00
·
14:00 -
18:00
Mercredi
09:00 -
12:00
·
14:00 -
18:00
Jeudi
09:00 -
12:00
·
14:00 -
18:00
Vendredi
09:00 -
12:00
·
14:00 -
18:00
Samedi
Fermé
Dimanche
Fermé