Appartement T3 Orléans à vendre

Favoriz
1 / 9

149 000 €

A partir de ... € / mois

70 m² • 3 pièces • 1 chambre

Caractéristiques

Surface et espace de vie

3 pièces
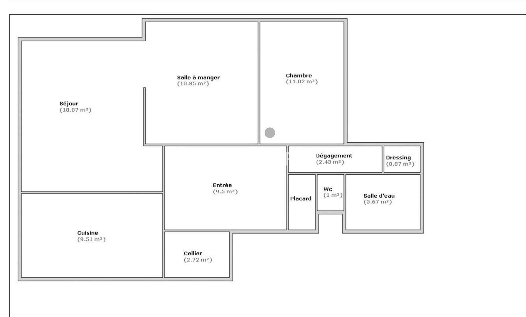
Surface : 70.44 m²
1 chbre

Intérieur

Ascenseur
Balcon
1 cave

Autres

Soumis à la copropriété
Nb lots copro : 488

Description

Situé dans une résidence sécurisée, avec gardien et interphone, cet appartement lumineux vous offre un cadre de vie agréable au 6ème étage.
Il se compose d'une entrée avec grands placards, d'un séjour ouvrant sur un balcon, d'une salle à manger pouvant facilement être transformée en deuxième chambre, d'une cuisine équipée avec cellier attenant, d'une chambre, de WC séparés et d'une salle d'eau.
Ce bien inclut également une cave, et le stationnement est libre au sein de la résidence.
Idéalement situé dans un environnement verdoyant et très recherché, à proximité du quai de Loire et de l'arrêt TRAM B.

Bien proposé par Emma LALANNE (RSAC n° 2032AC00234) - Agent Commercial

Honoraires à la charge du vendeur

Montant moyen des charges annuelles : 3 100,00 €

Référence web : 52314484
Référence Agence : 1193

Performance énergétique

DPE 2021

Les coûts sont estimés en fonction des caractéristiques de votre logement et pour une utilisation standard. Montant estimé des dépenses annuelles d'énergie pour un usage standard entre 1 390,00 € et 1 930,00 € indexées aux années 2021, 2022 et 2023 (abonnement compris).

Les informations sur les risques auxquels ce bien est exposé sont disponibles sur le site Géorisques : https://www.georisques.gouv.fr.

Simulateur de crédit immobilier

A propos de l'agence

Agence Laforêt ORLEANS BANNIER

107 Rue Bannier, 45000 Orléans

Téléphone

Horaires d'ouverture de l'agence

 Lundi 09:00 - 12:30 · 14:00 - 18:30
 Mardi 09:00 - 12:30 · 14:00 - 18:30
 Mercredi 09:00 - 12:30 · 14:00 - 18:30
 Jeudi 09:00 - 12:30 · 14:00 - 18:30
 Vendredi 09:00 - 12:30 · 14:00 - 18:30
 Samedi 09:00 - 12:30
 Dimanche Fermé

Aux alentours

Appeler