Appartement T2 Paris 04 à vendre

Favoriz
1 / 11

499 000 €

A partir de ... € / mois

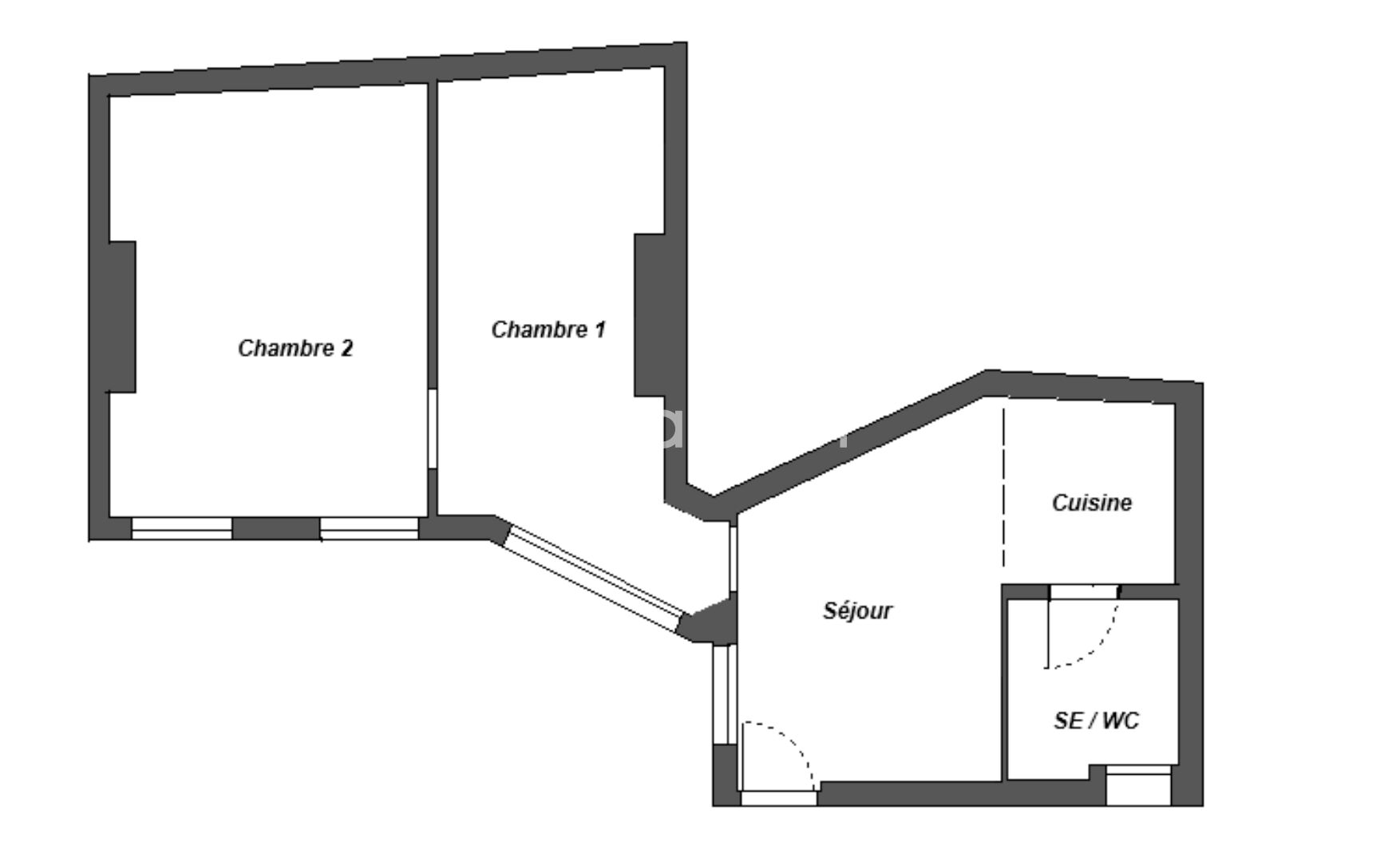
41 m² • 2 pièces • 1 chambre

Caractéristiques

Surface et espace de vie

2 pièces
Surface : 41 m²
1 chbre
1 salle d'eau

Intérieur

Chauffage Electrique
1 cave

Autres

Charges mensuelles copro : 105 €

Description

Laforêt Paris Marais vous propose rue du Temple à deux pas du BHV un deux/trois pièces entièrement rénové, situé au calme sur cour. Il dispose aujourd'hui de deux chambres, avec la possibilité de réunir l'ensemble pour créer une grande chambre ou une chambre + coin bureau selon les besoins. Pièce de vie lumineuse avec cuisine ouverte moderne.

L'immeuble bénéficie de travaux importants votés : ravalement rue et cour, réfection de la toiture, rénovation des caves et sol de cour.

DPE C à partir du 1er janvier 2026, un vrai atout pour le confort et la valorisation du bien.

Adresse recherchée dans le Marais, proche des commerces et des transports. Parfait pour un premier achat ou un pied-à-terre modulable.

Honoraires à la charge de l'acquéreur inclus : 5,05% soit 475 000,00 € honoraires exclus.

Référence web : 52393392
Référence Agence : 5672

Performance énergétique

DPE 2021

Les coûts sont estimés en fonction des caractéristiques de votre logement et pour une utilisation standard. Montant estimé des dépenses annuelles d'énergie pour un usage standard entre 640,00 € et 910,00 € indexées aux années 2021, 2022 et 2023 (abonnement compris).

Les informations sur les risques auxquels ce bien est exposé sont disponibles sur le site Géorisques : https://www.georisques.gouv.fr.

Simulateur de crédit immobilier

A propos de l'agence

Agence Laforêt PARIS 04

19 rue Rambuteau, 75004 Paris 04

Téléphone

Horaires d'ouverture de l'agence

 Lundi 09:30 - 19:00
 Mardi 09:30 - 19:00
 Mercredi 09:30 - 19:00
 Jeudi 09:30 - 19:00
 Vendredi 09:30 - 19:00
 Samedi 10:00 - 14:00
 Dimanche Fermé

Aux alentours

Appeler