Appartement T3 VITRY SUR SEINE à vendre

Favoriz
1 / 13

350 000 €

A partir de ... € / mois

64 m² • 3 pièces • 2 chambres

Caractéristiques

Surface et espace de vie

3 pièces
Surface : 64.3 m²
Surf. séj : 24.3 m²
2 chbres
1 salle de bain

Intérieur

Chauffage Géothermie
Ascenseur
Balcon

Extérieur

Parking
SousSol

Autres

Ann. const. : 2018
Accès handicapé
Soumis à la copropriété
Nb lots copro : 439
Charges mensuelles copro : 197 €

Description

Vitry-sur-Seine Port à l'Anglais
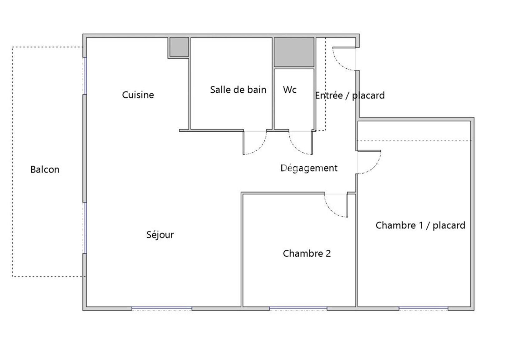
Appartement 3 pièces 64 m² avec balcon et parking Résidence récente 2018

Dans le quartier recherché du Port à l'Anglais à Vitry-sur-Seine, découvrez ce bel appartement 3 pièces de 64 m², situé au 1er étage sur 6 d'une résidence récente, sécurisée et avec ascenseur (2018).

Cet appartement se compose d'une entrée avec placard, d'un spacieux séjour avec cuisine ouverte de 24 m², offrant un accès direct à un agréable balcon de 7 m² exposé Est.

L'espace nuit comprend deux chambres, une salle de bains ainsi que des WC séparés.

Un parking en sous-sol sécurisé complète ce bien.

Idéalement situé, cet appartement à Vitry-sur-Seine bénéficie de la proximité immédiate des commerces, des écoles : crèche Édouard-Vaillant, maternelle Eva-Salmon, primaire Montesquieu, le tout à 5 minutes à pied, ainsi que des transports : RER C à 10 minutes à pied, bus 180, 25 et 217, et future ligne T Zen 5.

Résidence récente, aucun travaux à prévoir, appartement clé en main.
Faible charges comprenant eau chaude, eau froide et chauffage par géothermie.

Idéal pour un premier achat ou un investissement locatif à Vitry-sur-Seine

Honoraires à la charge du vendeur

Montant moyen des charges annuelles : 2 359,48 €

Référence web : 52585680
Référence Agence : 4241

Performance énergétique

DPE 2021

Les coûts sont estimés en fonction des caractéristiques de votre logement et pour une utilisation standard. Montant estimé des dépenses annuelles d'énergie pour un usage standard entre 640,00 € et 920,00 € indexées aux années 2021, 2022 et 2023 (abonnement compris).

Les informations sur les risques auxquels ce bien est exposé sont disponibles sur le site Géorisques : https://www.georisques.gouv.fr.

Simulateur de crédit immobilier

A propos de l'agence

Agence Laforêt VITRY SUR SEINE

47 avenue Paul-Vaillant-Couturier, 94400 VITRY-SUR-SEINE

Téléphone

Horaires d'ouverture de l'agence

 Lundi 14:00 - 18:00
 Mardi 09:30 - 12:30 · 14:00 - 19:00
 Mercredi 09:30 - 12:30 · 14:00 - 19:00
 Jeudi 09:30 - 12:30 · 14:00 - 19:00
 Vendredi 09:30 - 12:30 · 14:00 - 19:00
 Samedi 09:30 - 12:30 · 14:00 - 18:00
 Dimanche Fermé

Aux alentours

Appeler